Extension Rammetillatelse Leilighetsbygg

Tilbygg og fasadeendring på leilighetsbygg, Berse Terrasse 6

📍 Berse terrasse 6 , 4760 BIRKELAND

Nøkkelinfo

Sakstype
Tilbygg
Bygningstype
Leilighetsbygg
Bruksareal
232 m²
Kommune
Birkenes
Fylke
Agder
Gnr / Bnr
88 / 347
Saksnummer
2025/431
Fase
Rammetillatelse

Om byggesaken

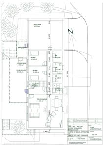
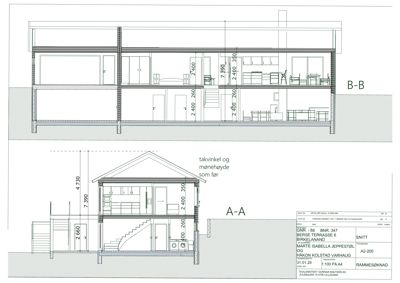
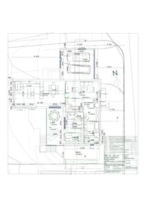
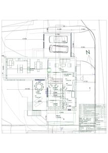
Tiltaket omfatter oppføring av et nytt tilbygg i to etasjer til eksisterende leilighetsbygg på Berse Terrasse 6, inkludert større stue, kjøkken, soverom og terrasse. Det bygges også en dobbelgarasje med treningsrom i underetasjen, og eksisterende garasje rives. Fasadeendringer inkluderer etterisolering, utskifting av kledning, vinduer og dører, med hovedmateriale i tre og saltak med takvinkel på 27 grader. Masseutskifting rundt bygget skal tilpasses terreng og grunnforhold. Byggets totale bebygde areal økes til ca. 232 m², noe som overskrider regulert utnyttelsesgrad med 2,8 %. Garasjen plasseres 1 meter fra nabogrense mot nord, med dispensasjon fra byggegrense. Tiltaket er tilpasset eksisterende bebyggelse og terreng, og det er gjennomført geotekniske vurderinger for grunnforhold.

Produkter og materialer

VVS Sanitæranlegg

Oppgradering av sanitæranlegg i tilbygg og eksisterende bolig

VVS-installasjoner for bad og vaskerom

Dører Ytterdører og terrassedører

🧱 Tre med isolasjon

Antall: 5

Utskifting av dører med bedre isolasjon og tilpasset fasadeendring

Nye isolerte ytterdører og terrassedører

Gulv Innvendige gulv

Nye gulv i tilbygget og oppgradering i eksisterende bolig

Gulvbelegg og underlag

Bad Bad og våtrom

Oppgradering av bad med flislegging og sanitærutstyr

Bad og våtromsarbeid

Fasade Stående trekledning

🧱 Tre, mørk farge

Etterisolering og utskifting av kledning med stående trekledning i mørk farge

Ny fasadekledning med isolasjon

Betong Fundamentering og kjellervegger

Betongarbeid for fundamentering av tilbygget og garasje med kjeller

Betongarbeid for fundament og kjeller

Maling Innvendig og utvendig maling

Maling av fasade og innvendige flater

Maling og overflatebehandling

Ventilasjon Ventilasjonsanlegg

Ventilasjonsanlegg med ansvarlig foretak smartvent as

Ventilasjon for nytt og eksisterende bygg

Garasjeport Dobbel garasjeport

Antall: 1

Garasjeport til dobbelgarasje

Port til ny dobbelgarasje

Vinduer Energivindu

🧱 3-lags isolerglass

Antall: 15

Vinduer med bedre varmeisolasjon, inkludert store vindusflater i tilbygget

Nye vinduer med forbedret isolasjon for hele bygget

Rekkverk Terrasserekkverk

Rekkverk på nye terrasser

Sikring av terrasser med rekkverk

Trapper Innvendig trapp

🧱 Tre

Antall: 1

Innvendig trapp mellom etasjer i tilbygg og eksisterende bolig

Trapp for intern kommunikasjon

Tak Saltak med teglstein

🧱 Teglstein

Saltak med takvinkel 27 grader, takmateriale teglstein

Nytt saltak på tilbygget og eksisterende bolig med teglstein

Elektro Elektriske installasjoner

Oppgradering av elektriske anlegg i tilbygg og eksisterende bolig

Elektriske installasjoner for belysning og strøm

Grunnarbeid Masseutskifting

Masseutskifting rundt bygget for tilpasning til terreng og grunnforhold

Grunnarbeid med masseutskifting

Tømrer Bygging av tilbygg og garasje

🧱 Tre

Tømrerarbeid for oppføring av tilbygg, garasje og fasadeendringer

Tømrerarbeid for ny bygningsmasse og fasade

Hendelser

20.04.2026 Søknad om igangssettingstillatelse - Berse Terrasse 6
12.03.2026 Underretning om matrikkelføring - retting
22.09.2025 Underretning om matrikkelføring og orientering om planlagt retting
08.07.2025 Gnr 88 bnr 347 - Berse Terrasse 6 - dispensasjon og rammetillatelse til tilbygg, fasadeendring og masseutskifting med vilkår
04.07.2025 Melding om endring av ansvarsrett - Ettersending
30.06.2025 Ettersendelse av dokumenter - ansvarlig søker
19.06.2025 Berse Terrasse 6 - opplysning om møne og gesimshøyde
11.06.2025 Nytt snitt garasje
30.05.2025 Søknad om tillatelse til tiltak - rammetillatelse
10.03.2025 Nabomerknad
10.03.2025 Innsigelser mot utbygging av Berse Terrasse 6
28.02.2025 Svar på - Nabovarsel ny oppdatert søknad gbnr. 88/347
14.02.2025 Nabovarseldokumenter fra Berse Terrasse 6
12.02.2025 Innspill til mottatt nabovarsel - signert kvittering trekkes tilbake
11.02.2025 Ber om redegjørelse vedrørende avstandserklæring og nabomerknader
10.02.2025 Innsigelser mot utbygging av Berse Terrasse 6
06.02.2025 Søknad om tillatelse til tiltak
05.02.2025 Merknad til planlagt tiltak