Section
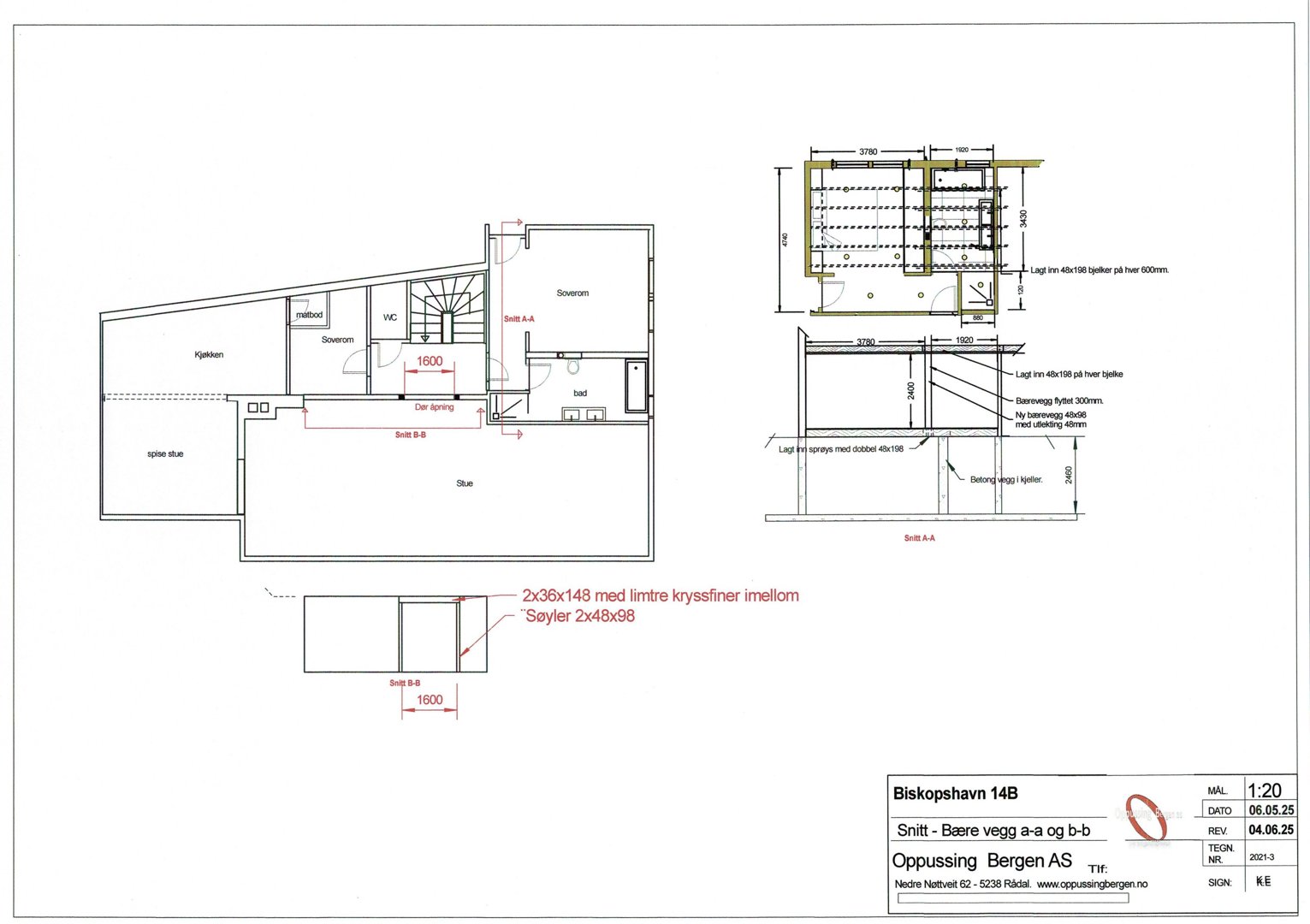
Snittegning som viser bærende veggkonstruksjon (a-a og b-b) med mål og detaljer.
1 / 2
Extension
Ferdigattest
Leilighetsbygg
Flytting av bærende vegg i leilighetsbygg, Biskopshavn 14B
📍 Biskopshavn 14B , 5043 BERGEN
Nøkkelinfo
- Sakstype
- Tilbygg
- Bygningstype
- Leilighetsbygg
- Boenheter
- 1
- Kommune
- Bergen
- Fylke
- Vestland
- Gnr / Bnr
- 168 / 1166
- Saksnummer
- BYGG-2025/14274
- Fase
- Ferdigattest
Om byggesaken
Flytting av en eksisterende bærende trevegg med 30 cm i 2. etasje i et leilighetsbygg på Biskopshavn 14B. Bygningen er en enebolig over to plan, opprinnelig bygget i 1972 med trekonstruksjoner over grunnmur i mur og betong. Tiltaket omfatter endring av bærekonstruksjon i forbindelse med ombygging av baderom i 2. etasje. Arbeidet inkluderer tømrerarbeid for flytting av bæreveggen og sikring av konstruksjonssikkerheten. Prosjektet er ferdigstilt med utstedt ferdigattest.
Produkter og materialer
Betong
Grunnmur
🧱 mur/betong
Eksisterende grunnmur i mur og betong som bygningen står på
Grunnmur som bærer trekonstruksjonen
Tømrer
Flytting av bærende vegg
🧱 tre
Flytting av eksisterende bærende trevegg med 30 cm i 2. etasje
Tømrerarbeid knyttet til flytting av bærende vegg i trekonstruksjon
Konstruksjon
Bærekonstruksjon
🧱 tre
Konstruksjonssikkerhet i forbindelse med flytting av eksisterende bærevegg av tre
Prosjektering og sikring av bærekonstruksjon ved flytting av vegg
Hendelser
14.08.2025
Ferdigattest. 168/116 Biskopshavn 14B
14.08.2025
Biskopshavn 14B Søknad om ferdigattest 168/1166
18.07.2025
Fakturagrunnlag
18.07.2025
Ubw ordre 20674046 Flytting av bærevegg.
07.07.2025
Tillatelse til tiltak med ansvarsrett. 168/1166. Biskopshavn 14B.
01.07.2025
Biskopshavn 14B Søknad om tillatelse i ett trinn 168/1166
—