Extension UnderBehandling Leilighetsbygg

Endring med heissjakt og fasade på leilighetsbygg, Bjørnhollo 21, Bodø

📍 Bjørnhollo 21A , 8020 BODØ

Nøkkelinfo

Sakstype
Tilbygg
Bygningstype
Leilighetsbygg
Bruksareal
411 m²
Boenheter
9
Kommune
Bodø
Fylke
Nordland - Nordlánnda
Gnr / Bnr
2024 / 1184
Saksnummer
2026/3023
Fase
Under behandling

Om byggesaken

Prosjektet omfatter endring av rammetillatelse for tre 3-mannsboliger og tilhørende garasjer på Bjørnhollo 21 i Bodø. Endringen inkluderer etablering av en heissjakt med løfteplattform i stedet for tidligere godkjente felles boder på bygg 2, samt mindre fasadeendringer med justering av vinduer på bygg 2 og 3. Heissjakten er utført som egen branncelle med brannmotstand klasse 2 og lydisolert. Bygget består av tre etasjer med leiligheter, balkonger og terrasser, og sportsboder er løst i garasjeanlegg. Prosjektet har fått midlertidig brukstillatelse for bygg 2, og det er gjennomført nødvendige brann- og sikkerhetsvurderinger. Det er også etablert ansvarsrett for prosjektering, utførelse og kontroll av tiltaket.

Produkter og materialer

Vinduer Fasadevindu i tre etasjer

🧱 Tre

Antall: 14

Vinduer i fasade øst og nord, inkludert endringer med flytting av 3 vinduer mellom bygg 2 og 3

Fasadevindu i tre etasjer med justeringer i antall og plassering som del av fasadeendring

Dører Ytterdører og balkongdører

Antall: 18

Dører til leiligheter, balkonger og terrasser i bygg 2 og 3

Ytterdører og balkongdører i leilighetsbygg, inkludert lydisolerte dører i heissjakt

Grunnarbeid Grunn- og terrengarbeider

Grunnarbeider for bygg og uteområder

Grunn- og terrengarbeider for bygg og tilhørende uteområder

Trapper Innvendig trapp i leiligheter

Antall: 1

Innvendig trapp i leilighetsbygg

Trapp i leilighetsbygg for intern adkomst mellom etasjer

Ventilasjon Boligventilasjon

Montering av boligventilasjon

Ventilasjonsanlegg for leilighetsbygg

Fasade Tre kledning og flatt tak

🧱 Tre

Tre kledning på fasader, flatt tak på bygg 2 og 3

Fasade med tre kledning og flatt tak, inkludert mindre fasadeendringer

Heis Hydraulisk løfteplattform i egen heissjakt

Antall: 1

Hydraulisk heis med drivverk i brønn under heissjakten, lydisolert rom, branncelle klasse 2

Heissjakt med løfteplattform som erstatter tidligere felles boder, etablert som egen konstruksjon og branncelle

Tømrer Tømrerarbeid inkl. våtrom

Tømrerarbeid for bygg og våtrom

Tømrerarbeid inkludert våtromsarbeider i leiligheter

Betong Betongarbeider inkl. radonsikring

🧱 Betong

Betongarbeid for grunn, fundamenter og konstruksjoner

Betongarbeider inkludert radonsikring for bygg og garasjer

VVS Innvendig sanitæranlegg

Sanitæranlegg for leiligheter

Innvendig sanitæranlegg for leilighetsbygg

Garasjeport Garasjeport til frittliggende garasjer

Antall: 2

Garasjer for 3 og 6 biler tilknyttet leilighetsbygg

Garasjeporter til frittliggende garasjer for beboere

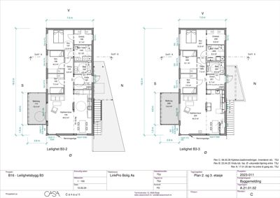
Plantegning

Leilighet 410.9 m²

Etasje 2 126.2 m²

Rom Areal Vinduer Dører
Entré 101 5.1 m² 0 1
Gang 102 5.1 m² 0 3
Kjøkken/stue 103 29.8 m² 1 1
WC 104 2.6 m² 0 1
Bad/vask 105 6.8 m² 0 1
Omkld. 106 4.8 m² 0 1
Sov 107 13.4 m² 1 1
Sov 108 7.0 m² 1 1
Sov 109 7.0 m² 1 1
Balkong 110 12.4 m² 0 1

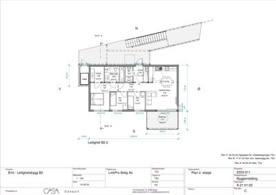
Etasje 1 120.3 m²

Rom Areal Vinduer Dører
Entre 001 5.7 m² 0 1
Bad 002 4.6 m² 0 1
Gang 003 6.9 m² 0 2
Kjøkken/stue 004 40.0 m² 1 1
Sov 005 7.0 m² 1 1
Sov 006 8.0 m² 1 1
Sov 007 12.3 m² 1 1
Omkld 008 5.1 m² 0 1
Bad/vask 009 5.7 m² 0 1
Terasse 010 12.6 m² 0 1

Etasje 3 164.4 m²

Rom Areal Vinduer Dører
Entre 201 5.7 m² 0 1
Bad 202 4.6 m² 0 0
Gang 203 7.0 m² 0 0
Kjøkken/stue 204 40.3 m² 1 0
Sov 205 7.0 m² 0 1
Sov 206 8.1 m² 0 1
Sov 207 12.9 m² 0 1
Bad/ Vask 208 6.2 m² 0 0
Omkld 209 5.8 m² 0 0
Balkong 209 13.0 m² 0 1

Fasader

Bygg B1

Nord
Materiale
Tre
Taktype
Flatt tak
Vinduer
1
Dører
1
Balkonger
1
Synlige etasjer
1
Øst
Materiale
Tre
Taktype
Flatt tak
Vinduer
1
Dører
1
Synlige etasjer
1

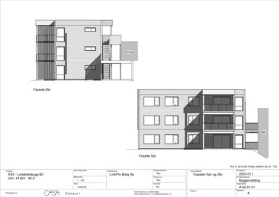
Leilighetsbygg B3

Øst
Materiale
Tre
Taktype
Flatt tak
Vinduer
4
Dører
1
Synlige etasjer
3
Sør
Materiale
Tre
Taktype
Flatt tak
Vinduer
10
Dører
2
Balkonger
2
Synlige etasjer
3

Hendelser

15.04.2026 Klagen avvises på grunnlag av manglende rettslig klageinteresse
07.04.2026 Haster
30.03.2026 Avklaring
30.03.2026 Redegjørelse
19.03.2026 Ber om en avklaring på status på deres kjøp av bolig i Bjørnhollo - Gnr. 41 Bnr. 1638 - Bodø kommune
19.03.2026 Tilsvar - spørsmål om faktura nr. 3039547
12.03.2026 Spørsmål om faktura - nr. 3039547
11.03.2026 Klage på tillatelse til endring datert 04.03.2026
05.03.2026 Tillatelse til endring - Bjørnhollo 21
03.03.2026 Supplering av søknad - Bjørnhollo 21B
20.02.2026 Ad eiendommen gnr 41 bnr 1615 - Sjøåsen Vest, B16 Leilighetsbygg - sak 2026/3023
18.02.2026 Redegjørelse
18.02.2026 Foreløpig svar - søknad om endring - Forhåndsvarsel om oppheving av midlertidig brukstillatelse
12.02.2026 Søknad om endring av gitt tillatelse - Bjørnhollo 21
11.02.2026 Angående eiendommen gnr 41 bnr 1615 - Sjøåsan Vest, B 16 Leilighetsbygg - lovlighetssak
26.01.2026 Midlertidig brukstillatelse - Bjørnhollo 21
14.01.2026 Søknad om midlertidig brukstillatelse