Extension UnderBehandling Leilighetsbygg

Tilbygg og oppdeling til to boenheter i Eikernveien 2, Vestfossen

📍 Eikernveien 2 , 3320 VESTFOSSEN

Nøkkelinfo

Sakstype
Tilbygg
Bygningstype
Leilighetsbygg
Bruksareal
215 m²
Boenheter
2
Kommune
Øvre Eiker
Fylke
Buskerud
Gnr / Bnr
39 / 97
Saksnummer
2025/12834
Fase
Under behandling

Om byggesaken

Eksisterende bolig i Eikernveien 2, Vestfossen, bygges om til to separate boenheter med et nytt tilbygg på ca. 8 m². Tilbygget har saltak og er i to etasjer, med utvendig trapp som gir egen adkomst til 2. etasje. Boligen har to balkonger og flere vinduer på alle fasader, med tre som fasademateriale. Innvendig er det etablert brannhemmende skille mellom boenhetene, og begge enheter har egne kjøkken, bad, stue og soverom. Uteoppholdsareal er vurdert med hensyn til støy, og det er planlagt støyskjerming for å oppfylle krav. Det er også gjennomført vurdering av avløpskapasitet og avkjøringstillatelse fra fylkesveg. Tiltaket inkluderer oppgradering av brann- og lydstandard mellom boenhetene, og varmepumper er installert i begge enheter.

Produkter og materialer

Terrasse Uteoppholdsareal på bakkeplan

Hageareal med støyskjerming for å oppfylle støykrav

Brukbart uteoppholdsareal for begge boenheter med støyskjerming

Grunnarbeid Drenering og grunnmur

Kjeller ringmur og grunnmur med drenering iht. eksisterende bygg

Grunnmur og drenering for tilbygg og eksisterende bolig

Dører Ytterdører

🧱 Tre/isolert

Antall: 9

Ytterdører i tre, inkludert dør til balkonger og innganger

Ytterdører for adkomst til boenheter og balkonger

Vinduer Fasadevindu

🧱 Tre/tre med isolerglass

Antall: 18

Vinduer i tre med isolerglass fordelt på alle fasader

Vinduer i fasader for lys og ventilasjon i begge boenheter

Kjøkken Kjøkkeninnredning

Antall: 2

Fullt utstyrte kjøkken i begge boenheter

Kjøkken for matlaging i begge boenheter

Grunnarbeid Avkjørsel

Utvidet bruk av eksisterende avkjørsel fra fylkesvei med tillatelse

Adkomst til eiendom for to boenheter med snuplass på egen tomt

Fasade Trepanel kledning

🧱 Tre

Tre som fasademateriale på alle fasader med saltak

Fasade med trepanel og saltak på tilbygg og eksisterende bolig

VVS Varmepumpe

Antall: 2

Varmepumper installert i begge boenheter

Oppvarming og kjøling av boenheter med varmepumper

Elektro Elektrisk anlegg

Elektrisk anlegg for belysning, varme og utstyr i begge boenheter

Elektrisk installasjon i bolig og tilbygg

Grunnarbeid Avløpssystem

Eksisterende slamavskiller 2,5 m³ med omkobling og inspeksjon

Avløpssystem tilpasset to boenheter med kapasitetsovervåkning

Bad Bad og toalett

Antall: 3

Bad med dusj, toalett og vask i begge boenheter, inkludert vaskerom

Sanitærrom for begge boenheter

Brannvern Brannhemmende gipsvegger

🧱 Gips

Dobbelt lag brannhemmende gips i etasjeskiller mellom boenheter

Brannskille mellom boenheter for å oppfylle brannsikkerhetskrav

Isolasjon Veggisolasjon

🧱 Glava isolasjon

Isolasjon i vegger med Glava 5-13 cm, diffusjonsåpen vindsperre

Isolasjon i yttervegger for varmeisolering og lydisolering

Ventilasjon Luftevinduer

Luftevinduer mot stille side i alle oppholds- og soverom

Ventilasjon og lufting i boenheter via luftevinduer

Tak Saltak

Saltak på eksisterende bolig og tilbygg

Tak med saltak på bolig og tilbygg

Trapper Utvendig trapp

🧱 Tre/stål

Antall: 1

Utvendig trapp med bredde 1,1 m, med håndløpere og rekkverk, tilfredsstiller TEK17 krav

Utvendig trapp som gir egen adkomst til 2. etasje boenhet

Terrasse Balkonger

🧱 Tre

Antall: 2

To balkonger på nord- og sørfasade, 5 m² og 12 m²

Uteoppholdsareal på balkonger for 2. etasje boenhet

Plantegning

Enebolig 215.2 m²

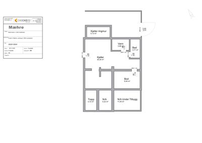
Etasje 0 68.1 m²

Rom Areal Vinduer Dører
Kjeller Kjeller 35.4 m² 0 1
Kjeller ringmur Kjeller ringmur 5.1 m² 0 0
Vann Vann 4.0 m² 0 1
Bad Bad 3.8 m² 0 1
Bod Bod 9.4 m² 0 1
Trapp Trapp 4.7 m² 0 0
N/A N/A 5.3 m² 0 0
N/A Under Tilbygg N/A Under Tilbygg 11.1 m² 0 0

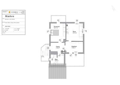
Etasje 1 60.1 m²

Rom Areal Vinduer Dører
Soverom 101 16.8 m² 1 1
Stue 102 18.1 m² 1 1
Kjøkken 103 11.9 m² 1 1
Gang 104 7.9 m² 0 0
Bad 105 5.0 m² 0 1
Stue Stue 22.8 m² 1 1
Soverom Soverom 18.2 m² 1 1
Kjøkken Kjøkken 12.0 m² 2 0
Gang Gang 10.1 m² 0 2
Vaskerom Vaskerom 4.3 m² 1 1
Bad Bad 4.3 m² 0 1

Etasje 2 87.0 m²

Rom Areal Vinduer Dører
Gang 7.9 m² 0 2
Toalett og bad 5.0 m² 0 1
Soverom 16.8 m² 1 1
Stue 18.1 m² 2 1
Kjøkken 11.9 m² 1 1

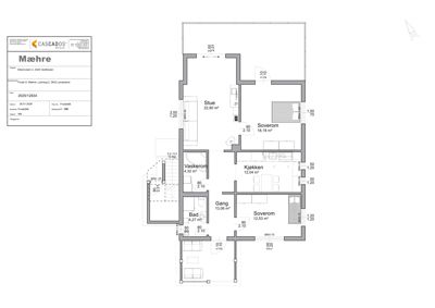
Leilighet 94.7 m²

Etasje 1 94.7 m²

Rom Areal Vinduer Dører
Gang 10.1 m² 0 2
Toalett og bad 4.0 m² 0 1
Vaskerom 4.3 m² 0 1
Stue 22.8 m² 1 1
Soverom 18.2 m² 0 1
Kjøkken 12.0 m² 0 1
Soverom 12.5 m² 0 1

Fasader

Enebolig

Sør
Materiale
Tre
Taktype
Saltak
Høyde
6.5 m
Vinduer
3
Dører
1
Balkonger
1
Synlige etasjer
2
Øst
Materiale
Tre
Taktype
Saltak
Høyde
6.5 m
Vinduer
4
Dører
1
Balkonger
2
Synlige etasjer
2
Vest
Materiale
Tre
Taktype
Saltak
Høyde
6.5 m
Vinduer
3
Dører
2
Balkonger
1
Synlige etasjer
2
Nord
Materiale
Tre
Taktype
Saltak
Høyde
6.5 m
Vinduer
3
Dører
3
Balkonger
2
Synlige etasjer
2

Tilbygg

Nord
Høyde
6.5 m
Vinduer
2
Dører
1
Synlige etasjer
2

Hendelser

14.04.2026 Søknad om frakobling av slamavskiller - Tilbygg og oppdeling av boenhet - Gbnr 39/97 - Eikernveien 2, Vestfossen
24.03.2026 Støyrapport og søknad om unntak fra TEK17 - Tilbygg og oppdeling av boenhet - gbnr 39/97 - Eikernveien 2
09.03.2026 Tilbakemelding på spørsmål til mangelbrev - Tilbygg og oppdeling av boenhet - gbnr 39/97 - Eikernveien 2
09.03.2026 Svar på mangelbrev - Oppdeling av bolig til to boenheter - Gbnr 39/97 - Eikernveien 2
05.03.2026 Mangelbrev - Oppdeling av bolig til to boenheter - Gbnr 39/97 - Eikernveien 2
24.02.2026 Svar på mangelbrev - Oppdeling av bolig til flere boenheter - gbnr 39/97
09.02.2026 Mangelbrev - Tilbygg og oppdeling av boenhet - Gbnr 39/97 - Eikernveien 2
30.01.2026 Svar på mangelbrev - Oppdeling av bolig til flere boenheter - gbnr 39/97
27.01.2026 Mangelbrev - Tilbygg og oppdeling av boenhet - gbnr 39/97 - Eikernveien 2
13.01.2026 Søknad uten ansvarsrett - tilbygg og bruksendring - gbnr 39/97 - Eikernveien 2, Vestfossen
29.12.2025 Henvendelse vedrørende søknad bruksendring og dispensasjon - oppdeling av bolig til flere boenheter - gbnr 39/97 - Eikernveien 2, Vestfossen