Extension UnderBehandling Leilighetsbygg

Bruksendring og tilbygg med pergola i Fritz Smiths gate 10, Tvedestrand

📍 Fritz Smiths gate 10 , 4900 TVEDESTRAND

Nøkkelinfo

Sakstype
Tilbygg
Bygningstype
Leilighetsbygg
Bruksareal
153 m²
Boenheter
2
Kommune
Tvedestrand
Fylke
Agder
Gnr / Bnr
74 / 129
Saksnummer
2026/616
Fase
Under behandling

Om byggesaken

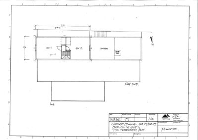
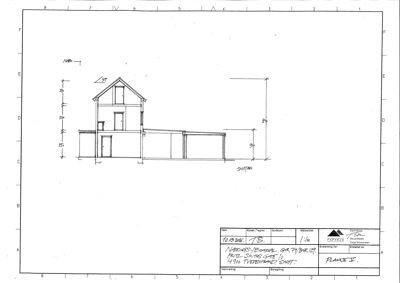
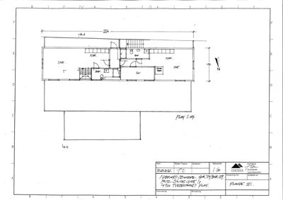
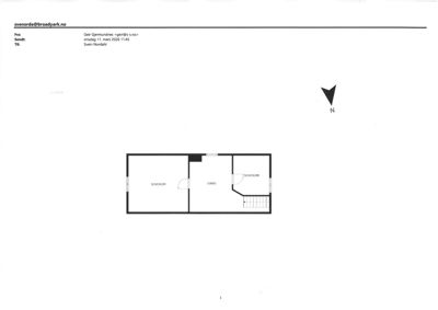
Eksisterende leilighetsbygg i Fritz Smiths gate 10 gjennomgår bruksendring av 1. etasje fra bolig til næring/restaurant, slik at hele 1. etasje blir næringsareal. Det bygges et tilbygg på ca. 94 m² på kommunal eiendom med tilhørende pergola på 49 m² med motorisert lamelltak og glassdører. I tillegg isoleres og bygges en utvendig bod på ca. 10 m² sammen med hovedbygget, samt en utvendig trapp mellom nr. 10 og 14 fra 1. til 2. etasje. Uteservering etableres utenfor tilbygg og pergola. Tilbygget er trukket inn 0,5 meter fra eksisterende fasade for å bevare den gamle fasaden. Bygget er dimensjonert for å tåle flom med betong- og stålkonstruksjoner i bærende deler. 2. og 3. etasje forblir bolig. Tiltaket ligger i et vernet kulturmiljø og krever dispensasjon fra byggeforbud nær strandsonen og byggegrense mot fylkesvei.

Produkter og materialer

Elektro Næringsbygg elektroinstallasjoner

Elektroinstallasjoner tilpasset restaurantbruk

Elektriske anlegg for næringsareal i 1. etasje

VVS Næringsbygg VVS installasjoner

Tilpasning av VVS for bruksendring til restaurant

VVS installasjoner tilpasset ny næringsbruk i 1. etasje

Isolasjon Isolering av utvendig bod

Isolering av utvendig bod på ca. 10 m² som bygges sammen med hovedbygget

Isolasjon for utvendig bod for integrering med hovedbygg

Trapper Utvendig trapp mellom 1. og 2. etasje

Antall: 1

Trapp mellom Fritz Smiths gate 10 og 14 utvendig

Ny utvendig trapp for adkomst mellom etasjer

Fasade Pergola med motorisert lamelltak

🧱 Glass, metall

Pergola på 49 m² med motorisert lamelltak og glassdører

Uteserveringsareal med pergola for værbeskyttelse

Fasade Tilbygg fasade

🧱 Tre, glassdører

Tilbygg på ca. 94 m² trukket 0,5 m inn fra eksisterende fasade, glassdører til pergola

Bygningsmessig tilbygg på kommunal eiendom med tilpasning til eksisterende fasade

Stål Bærende stålkonstruksjoner

🧱 Stål

Bærende konstruksjoner i betong og stål for flomsikring

Bæresystem for tilbygg dimensjonert for flom

Maling Innvendig og utvendig maling

Maling av tilbygg og fasadeendringer

Overflatebehandling av nye og eksisterende bygningsdeler

Grunnarbeid Betongfundamenter

🧱 Betong

Fundamentering av tilbygg på betongfundamenter for flomsikring

Grunnarbeid for tilbygg med betongfundamenter

Tømrer Bygningsmessige arbeider

🧱 Tre

Bygging av tilbygg, pergola, bod og trapp

Tømrerarbeid for tilbygg og tilhørende konstruksjoner

Rekkverk Gjerde for uteservering

Gjerde for skjerming av uteservering mot fylkesvei

Sikkerhetsrekkverk for uteserveringsområdet

Fasader

Enebolig

Nord
Materiale
Tre
Taktype
Saltak
Vinduer
3
Dører
0
Synlige etasjer
3
Sør
Materiale
Tre
Taktype
Saltak
Vinduer
2
Dører
0
Synlige etasjer
2
Vest
Materiale
Tre
Taktype
Saltak
Vinduer
6
Dører
2
Synlige etasjer
2
Øst
Taktype
Saltak
Vinduer
3
Dører
1
Synlige etasjer
2
Sørøst
Taktype
Flatt tak
Vinduer
4
Dører
1
Synlige etasjer
2

Garasje

Øst
Materiale
Tre
Taktype
Flatt tak
Vinduer
0
Dører
0
Synlige etasjer
1

Hendelser

24.03.2026 Byggegrense mot Fylkesvei - sak BYGG-26/00061 - 74/129 - oversender uttalelse
17.03.2026 Søknad om rammetillatelse
16.03.2026 Kulturminnefaglig uttalelse
16.03.2026 Uttalelse - Søknad om bruksendring, tilbygg m.m
11.02.2026 Søknad om rammetillatelse
11.02.2026 Oversendes for uttalelse til Kulturminnevern og Veiforvaltning - søknad om delvis bruksendring, tilbygg og uteservering