Facade
Fasadetegning av en toetasjes bygning sett fra nord-øst.
1 / 18
Extension
Soeknad
Leilighetsbygg
Etablering av døråpning i bærende vegg, Hagtornveien 5
📍 Hagtornveien 5 , 3024 DRAMMEN
Nøkkelinfo
- Sakstype
- Tilbygg
- Bygningstype
- Leilighetsbygg
- Boenheter
- 2
- Kommune
- Drammen
- Fylke
- Buskerud
- Gnr / Bnr
- 116 / 773
- Saksnummer
- 26/10329
- Fase
- Søknad
Om byggesaken
Det etableres en ny døråpning i en innvendig bærende teglvegg i 1. etasje i et leilighetsbygg på Hagtornveien 5. Åpningen får overdekning for å ivareta konstruksjonssikkerheten. Endringen inkluderer også opprettelse av en liten gang i eksisterende soverom som gir tilgang til to soverom. Arbeidet omfatter montering av overdekning og tilpasning av bærende konstruksjon. Bygget er et toetasjes leilighetsbygg med flere boenheter, og tiltaket skjer i en boligseksjon.
Produkter og materialer
Mur
Teglvegg
🧱 Tegl
Eksisterende bærende teglvegg som åpnes opp
Arbeid med eksisterende teglvegg for etablering av åpning
Tømrer
Montering og tilpasning
Utførelse av tømrerarbeid knyttet til etablering av døråpning og gang
Utførende tømrerarbeid for montering av overdekning og tilpasning av vegg og rom
Stål
Overdekning i bærende vegg
🧱 Stålbjelke eller tilsvarende
Antall: 1
Overdekning for å sikre bærekonstruksjonen ved åpning i teglvegg
Montering av overdekning over døråpning i bærende vegg
Dører
Innvendig dør
Antall: 1
Døråpning i bærende teglvegg med overdekning
Ny døråpning i innvendig bærende vegg med tilhørende dør for adkomst mellom rom
Grunnarbeid
Ingen nye grunnarbeider
Ingen nye grunnarbeider da tiltaket er innvendig i eksisterende bygg
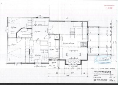
Plantegning
Enebolig 240.0 m²
Etasje 1 132.0 m²
| Rom | Areal | Vinduer | Dører |
|---|---|---|---|
| Stue 101 | 38.0 m² | 2 | 1 |
| Kjøkken 102 | 12.0 m² | 0 | 2 |
| Bad 103 | 6.0 m² | 0 | 1 |
| Vaskerom 104 | 4.0 m² | 0 | 1 |
| Sov. 1 105 | 12.0 m² | 1 | 1 |
| Sov. 2 106 | 12.0 m² | 1 | 1 |
| Gang 107 | 10.0 m² | 0 | 4 |
| STUE-SPISESTUE 108 | 35.0 m² | 3 | 1 |
| WC 109 | 3.0 m² | 0 | 1 |
Etasje 2 108.0 m²
| Rom | Areal | Vinduer | Dører |
|---|---|---|---|
| Gang 201 | 12.0 m² | 0 | 3 |
| Gang 202 | 8.0 m² | 0 | 2 |
| Sov 203 | 14.0 m² | 1 | 1 |
| Sov 204 | 16.0 m² | 1 | 1 |
| Kjøkken 205 | 12.0 m² | 1 | 1 |
| Bad 206 | 6.0 m² | 0 | 1 |
| Stue-spisestue 207 | 35.0 m² | 2 | 1 |
Hovedbygg 0.0 m²
Etasje 0 0.0 m²
| Rom | Areal | Vinduer | Dører |
|---|
Fasader
Enebolig
Syd-Vest
- Materiale
- Tre
- Taktype
- Saltak
- Høyde
- 2.5 m
- Mønehøyde
- 4.8 m
- Vinduer
- 3
- Dører
- 0
- Synlige etasjer
- 2
Nord
- Materiale
- Tre
- Taktype
- Saltak
- Vinduer
- 3
- Dører
- 1
- Balkonger
- 1
- Synlige etasjer
- 2
Nordvest
- Materiale
- Tre
- Taktype
- Saltak
- Vinduer
- 1
- Dører
- 0
- Synlige etasjer
- 2
Nordøst
- Materiale
- Tre
- Taktype
- Saltak
- Vinduer
- 3
- Dører
- 1
- Balkonger
- 1
- Synlige etasjer
- 2
Nord-Øst
- Materiale
- Tre
- Taktype
- Saltak
- Høyde
- 2.5 m
- Vinduer
- 9
- Dører
- 1
- Balkonger
- 1
- Synlige etasjer
- 2
Hovedbygg
Nord-Øst
- Materiale
- Tre
- Taktype
- Saltak
- Vinduer
- 9
- Dører
- 2
- Balkonger
- 1
- Synlige etasjer
- 2
Tilbygg
Nord
- Materiale
- Tre
- Taktype
- Flatt tak
- Vinduer
- 2
- Dører
- 1
- Balkonger
- 1
- Synlige etasjer
- 2
Nord-Vest
- Materiale
- Tre
- Taktype
- Saltak
- Vinduer
- 3
- Dører
- 1
- Synlige etasjer
- 2
Hendelser
10.04.2026
Hagtornveien 5, søknad om tillatelse i ett trinn