Extension UnderBehandling Leilighetsbygg

Tilbygg og sammenslåing av boenheter i leilighetsbygg, Idrettsveien 27

📍 Idrettsveien 27 , 5052 BERGEN

Nøkkelinfo

Sakstype
Tilbygg
Bygningstype
Leilighetsbygg
Bruksareal
243 m²
Boenheter
1
Kommune
Bergen
Fylke
Vestland
Gnr / Bnr
162 / 840
Saksnummer
BYGG-2026/12301
Fase
Under behandling

Om byggesaken

Ny tilbygg på 24,9 m² fordelt over to etasjer med balkong/terrasse på toppen, plassert mot vest på bakgårdssiden av en eksisterende leilighetsbygning. Tilbygget består av kjeller på 12,7 m², 1. etasje på 12,2 m² og balkong/terrasse på 12,9 m². Eksisterende to separate boenheter i bygget skal slås sammen til én boenhet ved etablering av intern trappeforbindelse. Bygningen er et trehus med saltak, og fasadeendringer skjer mot bakgården uten å endre byggets hovedform eller gatefasade. Prosjektet er tilpasset bevaringsverdig kulturmiljø og har minimal visuell påvirkning på området. Totalt areal etter tilbygg blir ca. 243 m² med to trapper og to balkonger.

Produkter og materialer

Vinduer Fasadevindu i tre

🧱 Tre med glass

Antall: 6

Eksisterende vinduer i fasade vest

Vinduer i eksisterende bygg

Isolasjon Isolasjon for vegger, tak og gulv

Isolasjon i ny bygningsdel for varme og lyd

Isolasjon i tilbygg og ved sammenslåing av boenheter

Grunnarbeid Fundamentering og grunnarbeid for tilbygg

Grunnarbeid for tilbygg på 24,9 m² over to etasjer

Fundamentering og grunnarbeid for nytt tilbygg

Elektro Elektrisk anlegg for tilbygg og bolig

Elektrisk installasjon i tilbygg og sammenslått bolig

Elektroarbeid for belysning, strøm og sikkerhet

VVS VVS-installasjoner for tilbygg og bolig

VVS for bad, kjøkken og vaskerom i tilbygg og bolig

Rørleggerarbeid for sanitær og varme

Fasade Trefasade med saltak

🧱 Tre

Fasadeendringer mot bakgård, tilpasset eksisterende arkitektur og fargepalett

Materialer og utførelse for tilbyggets fasader i tre, med saltak som eksisterende bygg

Balkong Balkong med rekkverk

🧱 Tre og metall

Antall: 2

To balkonger på fasade vest og sør, inkludert ny balkong/terrasse på tilbygg

Balkonger med rekkverk til eksisterende bygg og tilbygg

Maling Innvendig og utvendig maling

Maling av fasade, innvendige vegger og tak i tilbygg og eksisterende bygg

Overflatebehandling for estetikk og beskyttelse

Rekkverk Balkongrekkverk

🧱 Tre/metall

Antall: 2

Rekkverk på balkonger og terrasse på tilbygg

Sikring av balkonger og terrasse

Dører Ytterdør i tre

🧱 Tre

Antall: 2

Eksisterende ytterdører i fasade øst og sør

Ytterdører til eksisterende bygg og tilbygg

Vinduer Fasadevindu i tre

🧱 Tre med glass

Antall: 3

Eksisterende vinduer i fasade nord

Vinduer i eksisterende bygg

Betong Betongkonstruksjoner for kjeller og fundament

🧱 Betong

Betongkonstruksjoner i kjeller og fundament for tilbygg

Betongarbeid for kjeller og fundament

Vinduer Fasadevindu i tre

🧱 Tre med glass

Antall: 5

Eksisterende vinduer i fasade øst, tilbygg antatt tilsvarende

Vinduer til tilbygg og eksisterende fasade, tilpasset arkitektur

Vinduer Fasadevindu i tre

🧱 Tre med glass

Antall: 4

Eksisterende vinduer i fasade sør

Vinduer i eksisterende bygg

Trapper Innvendig trapp

Antall: 2

Eksisterende trapper, samt ny intern trappeforbindelse mellom boenheter

Trapper for intern forbindelse mellom etasjer og boenheter

Tak Saltak med taktekking

Saltak på tilbygg tilpasset eksisterende bygg

Taktekking og konstruksjon for saltak på tilbygg

Gulv Gulvbelegg og parkett

Gulvbelegg i tilbygg og sammenslått bolig

Gulvbelegg for oppholdsrom og våtrom

Tømrer Tømrerarbeid for tilbygg og fasadeendringer

🧱 Tre

Tømrerarbeid for oppføring av tilbygg og fasadeendringer i tre

Tømrerarbeid for ny bygningsdel og tilpasning av eksisterende bygg

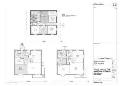
Plantegning

Bustadhus 242.9 m²

Etasje 0 43.5 m²

Rom Areal Vinduer Dører
Trapprom DK01 6.2 m² 0 0
Bod DK02 2.4 m² 0 0
Bod DK03 2.3 m² 0 0
Bod DK04 5.1 m² 0 0
Vaskerom DK05 3.5 m² 0 0
Bod DK06 4.6 m² 0 0
WC S1-K05 1.5 m² 0 0
Gang S1-K01 7.2 m² 0 3
Stue S1-K04 8.1 m² 1 1
Kjøkken S1-K03 7.5 m² 0 1
Soverom S1-K02 7.8 m² 1 1

Etasje 1 100.8 m²

Rom Areal Vinduer Dører
Hall S1-101 5.3 m² 0 2
Bad S1-102 3.2 m² 0 0
Soverom S1-103 14.2 m² 1 1
Stue S1-104 19.1 m² 1 1
Kjøkken S1-105 13.8 m² 0 1
Soverom S1-106 6.4 m² 1 1
Balkong S1-07 5.9 m² 0 0

Etasje 2 98.6 m²

Rom Areal Vinduer Dører
Trapprom S2-201 1.1 m² 0 0
Entre S2-202 5.8 m² 0 2
Bad S2-203 3.1 m² 0 0
Soverom S2-204 13.5 m² 1 1
Stue S2-205 19.3 m² 1 1
Spisestue S2-206 13.4 m² 0 1
Kjøkken S2-207 6.9 m² 0 1
Balkong S2-208 5.9 m² 0 0

Fasader

Eksisterende bustadhus

Øst
Materiale
Tre
Taktype
Saltak
Vinduer
5
Dører
1
Synlige etasjer
2
Nord
Materiale
Tre
Taktype
Saltak
Vinduer
3
Dører
0
Synlige etasjer
2
Vest
Materiale
Tre
Taktype
Saltak
Vinduer
6
Dører
0
Balkonger
2
Synlige etasjer
3
Sør
Materiale
Tre
Taktype
Saltak
Vinduer
4
Dører
1
Balkonger
2
Synlige etasjer
3

Hendelser

14.04.2026 Intern høring. BYGG-2026/12301. 162/840/0/0 Idrettsveien 27, tilbygg
10.04.2026 Bekreftelse på mottatt søknad
07.04.2026 Idrettsveien 27 Søknad om rammetillatelse 162/840