Extension Soeknad Leilighetsbygg

Ny heisinstallasjon i leilighetsbygg, Jernbanegata 4, Bryne

📍 Jernbanegata 4 , 4340 BRYNE

Nøkkelinfo

Sakstype
Tilbygg
Bygningstype
Leilighetsbygg
Kommune
Time
Fylke
Rogaland
Gnr / Bnr
1 / 5
Saksnummer
2026/1894
Fase
Søknad

Om byggesaken

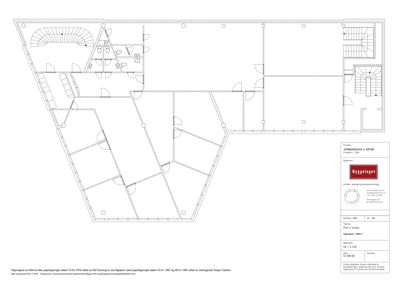
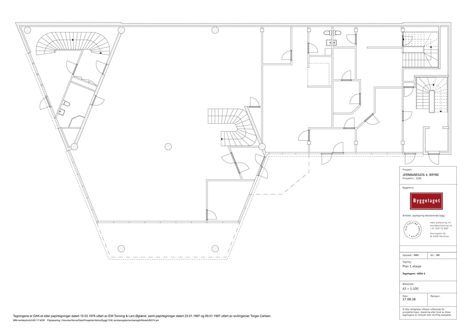
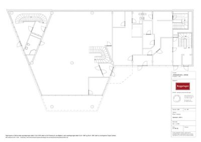
Prosjektet omfatter utskifting og oppgradering av personheis i et eksisterende leilighetsbygg fra 1976 i Jernbanegata 4, Bryne. Den nye heisen vil ha større bredde enn dagens krav, men noe kortere lengde enn standard, for å unngå omfattende ombygging av heishuset. Heisen er tilpasset sporadisk bruk av rullestolbrukere, men ikke for båretransport. Arbeidet inkluderer prosjektering, demontering av gammel heis og montering av ny heis med tilhørende tekniske installasjoner i byggets kjeller og etasjer. Tiltaket innebærer ikke endring av byggets areal eller fasade, men tekniske og konstruksjonsmessige tilpasninger internt i heishuset.

Produkter og materialer

Tømrer Ombygging heishus

Konstruksjonsmessige tiltak for å trekke fast etasjedør inn i veggliv for å øke heisdybde.

Ombygging av heishus for å tilpasse ny heis uten stor utvidelse av byggets fasade.

Heis Personheis

Antall: 1

Heis med innvendige mål ca. 1,4 x 1,6 meter, bredere enn dagens krav, tilpasset rullestolbrukere, men ikke båreheis. Ombygging av heishus for optimal dybde uten stor utvidelse.

Ny personheis med tilpasset størrelse for eksisterende heishus i leilighetsbygg, oppgradert til dagens sikkerhetskrav.

VVS Heis tekniske installasjoner

Tekniske installasjoner for heis, inkludert hydraulikk eller elektrisk løftemekanisme.

Tekniske VVS-installasjoner for ny heis.

Grunnarbeid Heissjakt og fundament

Arbeid i heissjakt og fundament for montering av ny heis.

Grunnarbeid og tilpasning i eksisterende heissjakt for ny heis.

Elektro Heisinstallasjon elektro

Elektriske installasjoner knyttet til ny heis, inkludert styringssystemer og sikkerhetsutstyr.

Elektroarbeid for ny heisinstallasjon i eksisterende bygg.

Hendelser

21.04.2026 Jernbanegata 4 Søknad om tillatelse i ett trinn 1/5