Extension UnderBehandling Leilighetsbygg

Ombygging, tilbygg og utleieenheter på Østheia 2, Arendal

📍 Østheia 2 , 4842 ARENDAL

Nøkkelinfo

Sakstype
Tilbygg
Bygningstype
Leilighetsbygg
Bruksareal
325 m²
Boenheter
3
Kommune
Arendal
Fylke
Agder
Gnr / Bnr
508 / 344
Saksnummer
2025/13941
Fase
Under behandling

Om byggesaken

Prosjektet omfatter omfattende ombygging av en eksisterende bolig på Østheia 2 i Arendal, inkludert tilbygg og etablering av to nye utleieenheter i 1. etasje. Boligen får endret takform fra saltak til flatt tak, og fasadene moderniseres. Tilbygget inkluderer nye inngangspartier til utleieenhetene og utvidelse av stueareal i 2. etasje. Det oppgraderes og heves eksisterende mur mot vei, og det etableres nye parkeringsplasser for utleieenhetene. Totalt areal for boligen etter tiltaket er 325 m² BRA. Prosjektet inkluderer også tekniske oppgraderinger som ventilasjon, sanitærinstallasjoner, brann- og lydskiller, samt landskapsutforming og uteoppholdsarealer for hver boenhet. Garasje med flatt tak og flere vinduer inngår i prosjektet. Det er gitt dispensasjon for byggegrense mot vei, og det foreligger godkjenninger for utvidet avkjøring og kapasitet på vann og avløp.

Produkter og materialer

Dører Ytterdører i tre og glass

🧱 Tre og glass

Antall: 9

Nye inngangsdører til utleieenheter og hovedbolig, inkludert dører på fasader og garasje

Nye ytterdører til bolig og utleieenheter, samt dør til garasje

Grunnarbeid Utgraving og fundamentering for tilbygg og mur

Graving for nytt tilbygg og parkeringsplass, fundamentering for mur

Grunnarbeider for tilbygg, mur og utearealer

Gulv Innvendige gulvflater

Nye gulv i tilbygg og ombygde arealer, inkludert bad og kjøkken

Gulvbelegg og overflater i bolig og utleieenheter

Mur Forstøtningsmur og oppgradering av eksisterende mur

🧱 Stein

Oppgradering og heving av mur mot vei, flytting av mur utenfor frisiktsonen

Oppgradering og nybygging av murer for utearealer og parkeringsplass

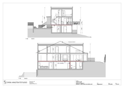
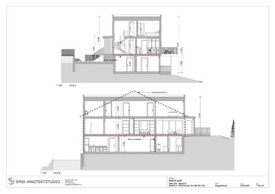
Tak Flatt tak

Endring fra saltak til flatt tak på bolig og garasje

Ombygging av takform fra saltak til flatt tak for bedre utnyttelse av 3. etasje

VVS Sanitærinstallasjoner og vann/avløp

Oppgradering av sanitærinstallasjoner, bekreftet kapasitet på vann, avløp og slokkevann

Sanitærinstallasjoner for nye boenheter og oppgraderinger i eksisterende bolig

Ventilasjon Ventilasjon og klimainstallasjoner

Prosjektering og utførelse av ventilasjon og klimainstallasjoner

Ventilasjonssystemer for bolig og utleieenheter

Bad Bad og våtrom

Antall: 4

Nye bad i 1., 2. og 3. etasje, med våtromsstandard

Bad og våtrom for hovedbolig og utleieenheter

Kjøkken Kjøkkeninnredning

Antall: 3

Kjøkken i hovedbolig og to utleieenheter

Kjøkkeninnredninger i bolig og utleieenheter

Terrasse Uteoppholdsareal

Antall: 3

Private uteoppholdsarealer for hver boenhet, minimum 20 m² per utleieenhet, samt mulig fellesareal

Uteplasser og felles uteareal for bolig og utleieenheter

Elektro Elektriske installasjoner

Oppgradering av elektriske anlegg i forbindelse med ombygging og tilbygg

Elektriske installasjoner for bolig og utleieenheter

Vinduer Fasadevindu i tre med 3-lags glass

🧱 Tre

Antall: 27

Vinduer fordelt på bolig og garasje, inkludert 3 vinduer i stue, 1 i kjøkken/spisestue, 1 i TV-stue, og flere på fasader

Nye og eksisterende vinduer i bolig og garasje, tilpasset ombygging og fasadeendringer

Garasjeport Garasjeport i tre

🧱 Tre

Antall: 2

Garasje med to porter, flatt tak og trepanel

Eksisterende garasje oppgradert med flatt tak og to garasjeporter

Rekkverk Rekkverk på balkonger og uteplasser

Antall: 3

Rekkverk på balkonger og uteoppholdsarealer for sikkerhet

Rekkverk for balkonger og uteplasser til boenhetene

Trapper Innvendig trapp

Antall: 1

Trapp mellom 2. og 3. etasje beholdes, trapp mellom 1. og 2. etasje fjernes

Innvendig trapp i bolig, tilpasset ny romdisponering

Fasade Trepanel fasade med flatt tak

🧱 Tre, svart farge

Modernisering av fasader med trepanel og flatt tak, inkludert fasader mot sør, øst, nord og vest

Oppgradering og modernisering av fasader med trepanel og flatt tak på bolig og garasje

Parkeringsplass Biloppstillingsplasser

Antall: 2

Parkeringsplasser for to utleieenheter, inkludert ny plassering ved garasje

Parkeringsplasser på egen tomt for utleieenhetene

Tømrer Tømrerarbeid og montering av trekonstruksjoner

🧱 Tre

Ombygging, tilbygg og fasadeendringer med trekonstruksjoner

Tømrerarbeid for tilbygg, fasadeendringer og innvendige ombygginger

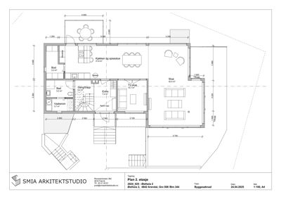
Plantegning

Enebolig 130.9 m²

Etasje 2 130.9 m²

Rom Areal Vinduer Dører
Stue 201 42.4 m² 3 1
Kjøkken og spisestue 202 31.8 m² 1 1
TV-stue 203 10.1 m² 1 1
Entre 204 7.4 m² 0 1
Gang/trapp 205 6.4 m² 0 1
Bad 206 5.2 m² 0 1
Vaskerom 207 3.7 m² 0 1
Bod 208 5.3 m² 0 1

Fasader

Garasje

Nord-Øst
Materiale
Tre
Taktype
Flatt tak
Vinduer
4
Dører
0
Synlige etasjer
1
Sør-Øst
Materiale
Tre
Taktype
Flatt tak
Vinduer
0
Dører
1
Synlige etasjer
1
Sør-Vest
Materiale
Tre
Taktype
Flatt tak
Vinduer
0
Dører
0
Synlige etasjer
1
Nord-Vest
Materiale
Tre
Taktype
Flatt tak
Vinduer
0
Dører
1
Synlige etasjer
1

Enebolig

Vest
Materiale
Tre
Taktype
Flatt tak
Vinduer
4
Dører
1
Synlige etasjer
2
Nord
Materiale
Tre
Taktype
Flatt tak
Vinduer
2
Dører
0
Balkonger
1
Synlige etasjer
2
Øst
Materiale
Tre
Taktype
Flatt tak
Vinduer
6
Dører
2
Balkonger
1
Synlige etasjer
2
Sør
Materiale
Tre
Taktype
Flatt tak
Vinduer
4
Dører
1
Balkonger
1
Synlige etasjer
2

Hendelser

21.04.2026 Østheia 2 Gjennomføringsplan 508/344
16.04.2026 BYGG-25/00871 - Østheia 2
16.04.2026 508/344 - Ber om bekreftelse
10.04.2026 508/344 - Ber instendig om avklaring på byggesak
27.03.2026 BYGG-25/00871 - Østheia 2
03.03.2026 508/344 - Ber om snarlig tilbakemelding
30.01.2026 508/344 - Tilbakemelding på mangelbrev
18.12.2025 Vedrørende søknad - 508/344 - Østheia 2 - Ombygging av eksisterende bolig, tilbygg og etalering av utleieenhet - Saeed Arezou
18.12.2025 Vedrørende gjennomføringsplanen - 508/344 - Østheia 2 - Ombygging av eksisterende bolig, tilbygg og etalering av utleieenhet - Saeed Arezou
04.11.2025 508/344 - Purring - Anmodning om tildeling av ny saksbehandler
24.10.2025 508/344 - Purring - Anmodning om snarlig tilbakemelding
13.10.2025 508/344 - Ber om status i saken
17.09.2025 508/344 - Ber om status i saken
09.09.2025 508/344 - Etterspør statusoppdatering - Purring
26.08.2025 508/344 - Etterspør tilbakemelding i saken
13.05.2025 Østheia 2 Søknad om tillatelse i ett trinn 508/344