Extension Soeknad Leilighetsbygg

Tilbygg og ny boenhet i leilighetsbygg, Rådalslien 26, Bergen

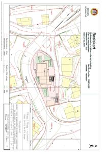
📍 Rådalslien 26 , 5239 RÅDAL

Nøkkelinfo

Sakstype
Tilbygg
Bygningstype
Leilighetsbygg
Bruksareal
368 m²
Boenheter
3
Kommune
Bergen
Fylke
Vestland
Gnr / Bnr
5239 / 874
Saksnummer
BYGG-2026/12261
Fase
Søknad

Om byggesaken

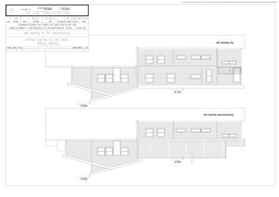
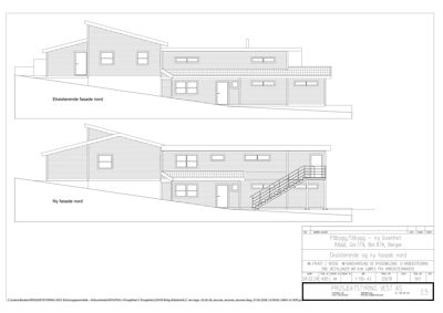
Ny påbygg og tilbygg til eksisterende leilighetsbygg i Rådalslien 26, Bergen, med etablering av en tredje boenhet. Påbygget består av en ny etasje over eksisterende bolig med flatt tak, inkludert utvendig trapp, bod og terrasse på ca. 12,5 m². Tilbygg mot øst og nord utvider leilighet 2 med stue, bad, vaskerom, soverom og bod. Totalt areal etter tiltaket blir 368,3 m² BRA, fordelt på tre boenheter. Bygget tilpasses eksisterende bebyggelse med hensyn til høyde, volum, materialbruk og arkitektonisk uttrykk. Uteoppholdsareal og parkering ivaretas i henhold til gjeldende krav. Tiltaket inkluderer også en frittstående sportsbod på ca. 5 m². Alle nye rom oppfyller TEK17-krav til lys, ventilasjon og rømningsveier.

Produkter og materialer

Vinduer Fasadevindu

Nye vinduer i påbygg og tilbygg tilpasset eksisterende fasade

Vinduer for nye rom i påbygg og tilbygg

Gulv Innvendige gulv

Gulv i nye boenheter og tilbygg i henhold til TEK17

Innvendige gulv i påbygg og tilbygg

Maling Utvendig og innvendig maling

Maling og overflatebehandling tilpasset eksisterende bygg

Overflatebehandling av nye fasader og innvendige flater

VVS Sanitær og rørinstallasjoner

Sanitærarbeid utført av VVS EKSPERTEN ASKØY AS

VVS-installasjoner for nye boenheter og tilbygg

Dører Ytterdør og boddør

Dør til sportsbod ca. 5 m² og ytterdør til ny boenhet

Dører for sportsbod og ny boenhet

Garasjeport Garasjeport til sportsbod

🧱 Tre

Antall: 1

Garasjeport på sportsbod i tre med saltak

Garasjeport til sportsbod på ca. 5 m²

Terrasse Terrasse på påbygg

Antall: 1

Terrasse på ca. 12,5 m² tilknyttet ny boenhet

Utendørs terrasseareal for ny boenhet

Tømrer Påbygg og tilbygg konstruksjon

Påbygg over eksisterende bolig med utvendig trapp, tilbygg mot øst og nord

Bygningskonstruksjon for påbygg og tilbygg med rom for ny boenhet og utvidelse av eksisterende leilighet

Fasade Fasadeendring med flatt tak

🧱 Materialer tilpasset eksisterende bolig

Endring av takform fra pulttak til flatt tak på påbygg, med økning av takhøyde på 0,6 m

Materialer og konstruksjon for nytt flatt tak og fasadeendring på påbygg

Bad Bad og vaskerom

Nytt bad og vaskerom i tilbygg til leilighet 2, samt bad i ny boenhet

Sanitærinstallasjoner og flisarbeid i nye bad og vaskerom

Grunnarbeid Fundament og grunnarbeid

Fundament for påbygg og tilbygg, samt sportsbod

Grunnarbeid og fundamentering for nye konstruksjoner

Ventilasjon Ventilasjonsanlegg

Ventilasjonsarbeid utført av VESTVENT AS

Ventilasjonsløsninger i nye boenheter og tilbygg

Fasader

Bod

Sør
Materiale
Tre
Taktype
Saltak
Høyde
2.5 m
Mønehøyde
3.1 m
Vinduer
0
Dører
1
Synlige etasjer
1
Øst
Materiale
Tre
Taktype
Saltak
Høyde
2.5 m
Mønehøyde
3.1 m
Vinduer
0
Dører
0
Synlige etasjer
1
Nord
Materiale
Tre
Taktype
Saltak
Høyde
2.5 m
Mønehøyde
3.1 m
Vinduer
0
Dører
0
Synlige etasjer
1
Vest
Materiale
Tre
Taktype
Saltak
Høyde
2.5 m
Mønehøyde
3.1 m
Vinduer
0
Dører
0
Synlige etasjer
1

Hendelser

16.04.2026 Rådalslien 26 Supplering av søknad 119/874
08.04.2026 Bekreftelse på mottatt søknad
31.03.2026 Rådalslien 26 Søknad om tillatelse i ett trinn 119/874