Unknown Soeknad Leilighetsbygg

Oppdeling og brannskille i leilighetsbygg, Gudes gate 2 A, Moss

📍 Gudes gate 2A , 1530 MOSS

Nøkkelinfo

Sakstype
Unknown
Bygningstype
Leilighetsbygg
Bruksareal
456 m²
Boenheter
15
Kommune
Moss
Fylke
Østfold
Gnr / Bnr
2 / 1041
Saksnummer
2026/3098
Fase
Søknad

Om byggesaken

Oppdeling av eksisterende leilighetsbygg fra 1903 i Moss med formell godkjenning av ny leilighetsinndeling på plan 2 og 4, inkludert etablering av ny intern trapp i leilighet B402/seksjon 12 og utbedring av brannskillevegger mellom seksjoner 5/6 og 11/12/13. Bygget er en fireetasjes murgård i jugendstil med næringslokaler i 1. etasje og boliger i øvrige etasjer. Tiltaket omfatter også utbedring av brannmotstand og branntetting av leilighetsskillevegger, samt dispensasjon fra krav til parkering og uteoppholdsareal. Det gjøres ingen ytre endringer på fasaden, og tiltaket inkluderer oppgradering av tekniske forhold innenfor eksisterende konstruksjoner.

Produkter og materialer

Tømrer Innvendige vegger og dører

Oppføring og utbedring av innvendige vegger for brann- og lydskille, samt nye dører i leiligheter

Tømrerarbeid knyttet til oppdeling og brannskille

Grunnarbeid Ingen nye grunnarbeider

Tiltaket medfører ikke gravearbeider eller endringer i grunnforhold

Ingen grunnarbeider nødvendig for oppdeling og brannskille

Mur Brannskillevegger mellom seksjoner 5/6 og 11/12/13

🧱 Brannmotstand og branntetting i vegger

Utbedring av brannmotstand og branntetting i leilighetsskillevegger i henhold til gjeldende krav

Utbedring av brannskillevegger for å oppfylle dagens brannkrav

Fasade Bevaring av eksisterende fasade

Ingen ytre endringer på fasaden, bevaring av opprinnelig jugendstil murgård

Fasaden beholdes uendret for å ivareta byggets historiske verdi

Isolasjon Etterisolering på innsiden av yttervegger

🧱 Ca. 5 cm isolasjon

Etterisolering begrenset til ca. 5 cm på innsiden for å bevare fasade og unngå fuktproblematikk

Isolasjon for energieffektivitet i eksisterende yttervegger

Trapper Ny intern trappeløp i leilighet B402/seksjon 12

Antall: 1

Ny intern trapp i eksisterende leilighet, tilpasset eksisterende konstruksjoner

Etablering av ny intern trapp i leilighet B402/seksjon 12

VVS Ventilasjon

Eksisterende naturlig ventilasjon beholdes, ingen mekanisk ventilasjon installeres

Ventilasjon tilpasses eldre bygg uten mekanisk anlegg

Elektro Oppgradering elektro sannsynlig

Oppgradering av elektriske installasjoner kan være nødvendig i forbindelse med oppdeling og brannskille

Elektriske arbeider for å oppfylle krav ved oppdeling og brannsikring

Vinduer Takvinduer 110x110 cm

Antall: 5

Takvinduer i loftsetasje, størrelse 110x110 cm

Eksisterende takvinduer i loftsetasje, ingen endring

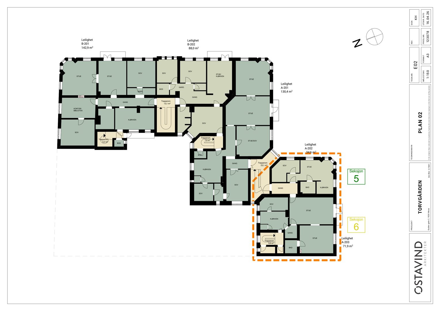
Plantegning

Leilighet 455.8 m²

Etasje 1 455.8 m²

Rom Areal Vinduer Dører
Trapperom A-201 13.1 m² 0 0
Trapperom A-202 23.1 m² 0 0
Trapperom A-203 9.9 m² 0 0
Trapperom B-201 6.2 m² 0 0
Trapperom B-202 7.0 m² 0 0
Gang A-201 0.0 m² 0 0
Stue A-201 0.0 m² 0 0
Sov A-201 0.0 m² 0 0
Kjøkken A-201 0.0 m² 0 0
Bad A-201 0.0 m² 0 0
Bod A-201 0.0 m² 0 0
Gang A-202 0.0 m² 0 0
Stue A-202 0.0 m² 0 0
Sov A-202 0.0 m² 0 0
Kjøkken A-202 0.0 m² 0 0
Bad A-202 0.0 m² 0 0
Gang A-203 0.0 m² 0 0
Stue A-203 0.0 m² 0 0
Sov A-203 0.0 m² 0 0
Kjøkken A-203 0.0 m² 0 0
Bad A-203 0.0 m² 0 0
Gang B-201 0.0 m² 0 0
Stue B-201 0.0 m² 0 0
Sov B-201 0.0 m² 0 0
Kontor/Bibliotek B-201 0.0 m² 0 0
Kjøkken B-201 0.0 m² 0 0
Bod B-201 0.0 m² 0 0
Gang B-202 0.0 m² 0 0
Stue B-202 0.0 m² 0 0
Sov B-202 0.0 m² 0 0
Stue/Kjøkken B-202 0.0 m² 0 0
Bod B-202 0.0 m² 0 0
Gard B-202 0.0 m² 0 0
STUE A-401 24.1 m² 2 1
STUE/KJØKKEN A-402 24.0 m² 2 1
STUE A-403 22.0 m² 2 1
STUE B-401 26.0 m² 2 1
STUE B-402 25.0 m² 2 1
Fellesareal Felles 0.0 m² 0 0
Seksjon 11 11 0.0 m² 0 0
Seksjon 12 12 0.0 m² 0 0
Seksjon 13 13 0.0 m² 0 0
Seksjon 14 14 0.0 m² 0 0
Seksjon 15 15 0.0 m² 0 0

Enebolig 0.0 m²

Etasje 0 0.0 m²

Rom Areal Vinduer Dører

Etasje 1 0.0 m²

Rom Areal Vinduer Dører

Etasje 2 0.0 m²

Rom Areal Vinduer Dører

Etasje 3 0.0 m²

Rom Areal Vinduer Dører

Hendelser

17.04.2026 Gudes gate 2 A - 2/1041 - ett-trinns søknad - endring av bygg - innvendig - brannskille