ChangeOfUse UnderBehandling Naeringsbygg

Oppføring og bruksendring til rusinstitusjon på Fjeldberg 9A-E, Fredrikstad

📍 Cicignongata 1 , 1606 FREDRIKSTAD

Nøkkelinfo

Sakstype
Bruksendring
Bygningstype
Naeringsbygg
Bruksareal
1,240 m²
Boenheter
9
Kommune
Fredrikstad
Fylke
Østfold
Gnr / Bnr
300 / 284
Saksnummer
2023/15684
Fase
Under behandling

Om byggesaken

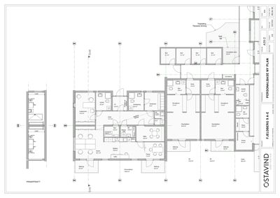
Prosjektet omfatter etablering av Fjeldberg kvinnesenter, en rusinstitusjon for voldsutsatte kvinner i aktiv rusmiddelbruk, lokalisert på Fjeldberg 9A-E i Fredrikstad. Bygget består av tidligere kommunale boliger som ombygges og tilpasses institusjonsbruk, inkludert sammenslåing av to boenheter til en ny personalbase på ca. 130,8 m². Institusjonen får 9 plasser, hvorav 3 reserveres til akuttplasser, med fellesarealer, personalbase, og uteområder tilrettelagt for rekreasjon. Bygget er i risikoklasse 6 og brannklasse 1, med installasjon av nytt sprinkleranlegg og oppgradering av brannsikkerhet. Det planlegges også sikkerhetstiltak som kameraovervåking, adgangskontroll og gjerder. Prosjektet inkluderer både oppussing og bruksendring, med samspillsentreprise inngått med Park & Anlegg AS som entreprenør. Medvirkning fra ansatte, verneombud og bedriftshelsetjeneste er dokumentert, og det foreligger ferdigattest for deler av bygget. Prosjektet er under behandling med forventet ferdigstillelse sommer/høst 2026.

Produkter og materialer

Ventilasjon Ventilasjonssystem

Eget ventilasjonssystem for personalbase, øvrige boenheter med egne aggregat

Ventilasjon med materialer klasse A2-s1,d0, fettfilter på kjøkkenavtrekk

Kontor Personalbase kontorer

Antall: 1

Ny personalbase på ca. 130,8 m² med kontorer, garderober, møterom, pauseareal

Personalbase for ansatte med kontorer og fasiliteter

Fasade Ytterkledning

Overflate på ytterkledning D-s3,d0, kledning K210 D-s2,d0

Brannsikre yttervegger og kledning

Brannvern Brannalarmanlegg

Eksisterende brannalarmanlegg kategori 2, tilpasses ny situasjon

Brannalarmanlegg med optisk og akustisk varsling, batteribackup og alarmoverføring til 110-sentral

Brannvern Brannceller og brannskiller

🧱 EI30 [B30]

Branncellebegrensende vegger og dører med EI30 brannmotstand

Brannteknisk oppdeling i brannceller med brannmotstand EI30

Dører Brannklassifiserte dører

Dører i branncelleskiller med EI2 30-Sa brannmotstand, panikkbeslag NS-EN 1125

Brann- og røykbestandige dører med panikkbeslag i rømningsveier

Elektro Brannalarm og nødlys

Brannalarmanlegg med optisk og akustisk varsling, nødlys i rømningsveier iht NS-EN 1838

Brannalarm og nødlys for sikker evakuering

Gulv Gulvbelegg

Gulvbelegg i rømningsvei med klasse Dfl-s1

Brannsikre gulvbelegg i rømningsveier

VVS Vannforsyning sprinkler

Vannforsyning til sprinkleranlegg med varighet 60 minutter

Sikret vannforsyning til sprinkleranlegg

Fasade Kameraovervåking og adgangskontroll

Kamera på fasader, port med adgangskontroll mellom bygg

Sikkerhetstiltak for overvåkning og adgangskontroll

Vinduer Brannvindu

Vindu i branncellebegrensende vegg med brannmotstand EW30 eller EI30

Brannmotstandsdyktige vinduer i brannceller

Grunnarbeid Terrengtilpasning

Treplatting tilpasses terreng, utvendige trapper til terreng for bedre rømningsforhold

Terrengtilpasning med treplatting og trapper

Terrasse Felles uteareal

Utemiljø tilrettelagt for rekreasjon med gjerder og belysning

Felles uteareal for beboere og ansatte

Bad Bad og toalettrom

Antall: 9

Bad/toalett i hver leilighet, universelt utformet HCWC

Bad og toalettrom tilpasset brukere og ansatte

Brannvern Sprinkleranlegg

Automatisk slokkeanlegg i hele bygget, i henhold til NS-EN 12845

Nytt sprinkleranlegg for brannsikkerhet i hele bygningsmassen

Tømrer Innvendige vegger og himlinger

🧱 A2-s1,d0, K210 B-s1,d0

Nedforet himling med brannmotstand, vegg- og himlingsflater med brannklasse B-s1,d0

Brannsikre innvendige overflater og himlinger

Hendelser

21.04.2026 Saksprotokoll KAMU Helse sak 6/26 - Fjeldberg kvinnesenter, Livsmestring RUS og ROP
20.04.2026 KAMU Helse Fjeldberg kvinnesenter, Livsmestring RUS og ROP
08.04.2026 Signert: Bekreftelse på at verneombud har bistått i planlegging- Til signering
08.04.2026 Bekreftelse på at verneombud har bistått i planlegging- Til signering
07.04.2026 Signert: Bekreftelse på at BHT har bistått i planleggingen - Til signering
07.04.2026 Signert: Bekreftelse på at ansattrepresentant har deltatt i planlegging- Til signeringen
07.04.2026 Bekreftelse på at BHT har bistått i planleggingen - Til signering
07.04.2026 Bekreftelse på at ansattrepresentant har deltatt i planlegging- Til signeringen
18.03.2026 Saksprotokoll bystyresak 139/25 - Rusinstitusjon for kvinner - mulig etablering
18.02.2026 Svar - Fjeldberg - Søknad
10.02.2026 Spørsmål om navn på rusinstitusjon for kvinner
05.02.2026 IN1376 Rusinstitusjon - Prosjekteringsmøte 02 - Referat
02.02.2026 IN1376 Rusinstitusjon - Prosjekteringsmøte 01 - Referat
02.02.2026 IN1376 Rusinstitusjon - Referat fra BH-møte 01
02.02.2026 IN1376 Rusinstitusjon - Møte kamera og sikring - Referat
02.02.2026 IN1376 Rusinstitusjon - Byggherremøte 02 - Referat
30.01.2026 Anmodning om gjenopptakelse av vedtak om lokalisering av rusinstitusjon på Fjeldbergtoppen (Fjeldberg 9 A–C)
13.01.2026 Omadressering av Fjeldberg 9A-E, omgjøring av tidligere vedtak om omadresssering av Fjeldberg 11
23.12.2025 Svar på innsynsbegjæring - Tildelingsinformasjon for \"Samspillsentreprise - F9 rusinstitusjon - IN1376
22.12.2025 Kopi: Svar på anmodning om lovlighetskontroll - Fredrikstad - vedtak om etablering av rusinstitusjon (Kattis hus) i boligområde
19.12.2025 Innsynsbegjæring - Tildelingsinformasjon for Samspillsentreprise - F9 rusinstitusjon - IN1376
12.12.2025 Melding fra leverandør - Signeringsfil
12.12.2025 Signert kontrakt - Park & Anlegg AS signing
11.12.2025 Melding til leverandør - Re: Signeringsfil
10.12.2025 Melding fra leverandør (etter tildeling) - Re: Re: Re: Re: Innsyn - Samspillsentreprise rusinstitusjon
10.12.2025 Kontrakt - Samspillsentreprise - F9 rusinstitusjon - IN1376