ChangeOfUse UnderBehandling Naeringsbygg

Bruksendring og ombygging til 3 leiligheter i Ferjestedsveien 2, Fredrikstad

📍 Ferjestedsveien 2 , 1606 FREDRIKSTAD

Nøkkelinfo

Sakstype
Bruksendring
Bygningstype
Naeringsbygg
Bruksareal
203 m²
Boenheter
3
Kommune
Fredrikstad
Fylke
Østfold
Gnr / Bnr
300 / 1525
Saksnummer
2026/1393
Fase
Under behandling

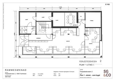
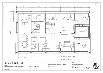
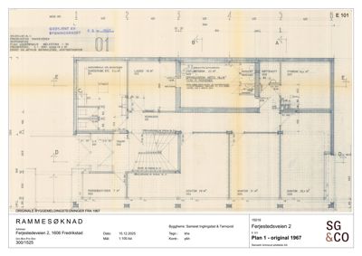
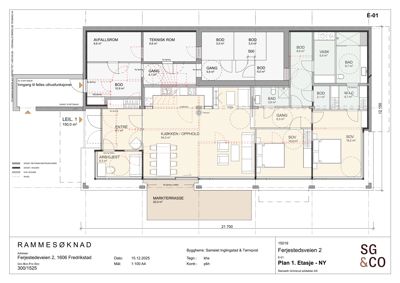
Om byggesaken

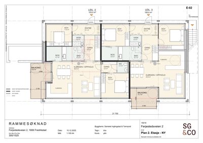
Eksisterende kontorbygg fra 1967 i Ferjestedsveien 2 transformeres til boligformål med oppdeling i 3 leiligheter. Bygget har et samlet areal på ca. 203 m² for boligdelen, med to balkonger, en markterrasse på 20 m² og en felles takterrasse på 80 m². Fasaden består av en ytre betongramme med frilagt betong og store glassfelt med trekledning. Det legges til nye balkonger med trekledde rekkverk, en inntrukket takterrasse med galvanisert stålrekkverk, og en utvendig trapp til takterrassen. Innvendig etableres brann- og lydskiller mellom leilighetene. Utearealene oppgraderes med private hageflekker og felles grøntarealer. Bygget ligger i et verneverdig kulturmiljø og det søkes dispensasjon fra plankravet og unntak fra TEK17 energikrav for å bevare arkitektoniske kvaliteter.

Produkter og materialer

Fasade Takterrasse

🧱 Galvanisert stål rekkverk

Antall: 1

Inntrukket takterrasse med lett og transparent rekkverk i slanke spiler av galvanisert stål, rekkverkshøyde 1 m

Felles takterrasse med stålrekkverk

Grunnarbeid Markterrasse og hageflekker

🧱 Terrassegulv og beplantning

Markterrasse på 20 m² og private hageflekker for uteopphold

Privat uteoppholdsareal på bakkeplan

Brannvern Brannskille

Innvendige brann- og lydskiller mellom leilighetene

Brann- og lydskille i bygget

Maling Innvendige overflater

Maling og overflatebehandling av vegger og tak

Innvendig maling og overflatebehandling

VVS Sanitærinstallasjoner

Nye bad og vaskerom i leilighetene

VVS-installasjoner for boligformål

Gulv Innvendige gulvflater

Oppgradering av gulv til boligstandard

Nye gulv i leilighetene

Tak Takterrasse

🧱 Betong og membran

Antall: 1

Takterrasse på ca. 80 m² med rekkverk

Felles takterrasse på taket

Fasade Utvendig trapp

🧱 Betong og stål

Antall: 1

Ny utvendig trapp til takterrasse med betong trappegavl

Utvendig trapp til takterrasse

Vinduer Store fasadevinduer

🧱 Glassfelt med trekledning brystning

Store glassfelt i bindingsverk med liggende smal trekledning som brystning

Vinduer i fasaden med trekledde brystninger

Tømrer Innvendige vegger og himlinger

🧱 Bindingsverk og gips

Oppføring av nye innvendige vegger og himlinger for leiligheter og brannskiller

Innvendig tømrerarbeid

Dører Ytterdører til leiligheter

🧱 Tre og glass

Antall: 3

Ny døråpning til felles uthusfunksjoner i 1. etasje, nye dører til leiligheter i 2. etasje fra oversiden

Nye ytterdører til leiligheter og fellesrom

Elektro Ny elektrisk installasjon

Oppgradering av elektrisk anlegg til boligstandard

Elektrisk installasjon tilpasset boligbruk

Ventilasjon Eksisterende ventilasjonsanlegg

Eksisterende ventilasjonsanlegg på tak fjernes ved ombygging

Fjerning av eksisterende ventilasjonsanlegg på tak

Fasade Balkonger

🧱 Trekledning på rekkverk

Antall: 2

Balkongrekkverk med samme trekledning som brystning under vinduene, i samme høyde

To nye balkonger med trekledde rekkverk

Fasader

Enebolig

Sør
Materiale
Betong
Taktype
Flatt tak
Vinduer
6
Dører
1
Balkonger
1
Synlige etasjer
2
Vest
Materiale
Betong
Taktype
Flatt tak
Vinduer
2
Dører
1
Balkonger
1
Synlige etasjer
2
Sydøst
Materiale
Betong
Vinduer
10
Dører
0
Synlige etasjer
2
Sydvest
Materiale
Betong
Vinduer
3
Dører
2
Synlige etasjer
1
Nord
Materiale
Pusset
Taktype
Flatt tak
Vinduer
5
Dører
0
Synlige etasjer
1
Øst
Materiale
Pusset
Taktype
Flatt tak
Vinduer
2
Dører
0
Synlige etasjer
1

Kontorbygg

Nord
Materiale
Betong
Taktype
Flatt tak
Vinduer
5
Dører
0
Synlige etasjer
1
Øst
Materiale
Betong
Taktype
Flatt tak
Vinduer
2
Dører
1
Synlige etasjer
2
Syd
Materiale
Betong
Vinduer
10
Dører
0
Synlige etasjer
2
Vest
Materiale
Betong
Vinduer
2
Dører
1
Synlige etasjer
2

Hendelser

17.04.2026 Uttalelse - bruksendring - eiendom 300/1525 - Ferjestedsveien 2 - fra kontor til boligformål - verneverdig kulturmiljø
07.04.2026 Ferjestedsveien 2 - Eiendom 300/1525 - Kommentarer til anmodning om uttalelse til søknad om bruksendring
18.03.2026 Anmodning om uttalelse - Bruksendring fra kontor til boligformål - oppdelt i 3 leiligheter - Ferjestedsveien 2 - Eiendom 300/1525
18.03.2026 Tilbakemelding - Ferjestedsveien 2 - Eiendom 300/1525
09.03.2026 Ber om ny vurdering - Ferjestedsveien 2 - Eiendom 300/1525
02.03.2026 Foreløpig vurdering - Bruksendring fra kontor til boligformål - oppdelt i 3 leiligheter - Ferjestedsveien 2 - Eiendom 300/1525
13.01.2026 Bekreftelse på mottatt søknad - Bruksendring andre bygg, Endring av bygg - annet, Endring - brannskille, Endring - lydskille, Fasadeendring, Påbygg, Tilbygg inntil 50 m² - Ferjestedsveien 2 - Eiendom 300/1525
13.01.2026 Rammesøknad - Ferjestedsveien 2 - Eiendom 300/1525 - Bruksendring andre bygg, Endring av bygg - annet, Endring - brannskille, Endring - lydskille, Fasadeendring, Påbygg, Tilbygg inntil 50 m²