ChangeOfUse Igangsettingstillatelse Naeringsbygg

Bruksendring til to serveringslokaler i Fjøsangerveien 39, Bergen

📍 Fjøsangerveien 39 , 5054 BERGEN

Nøkkelinfo

Sakstype
Bruksendring
Bygningstype
Naeringsbygg
Bruksareal
266 m²
Kommune
Bergen
Fylke
Vestland
Gnr / Bnr
158 / 10
Saksnummer
BYGG-2025/15787
Fase
Igangsettingstillatelse

Om byggesaken

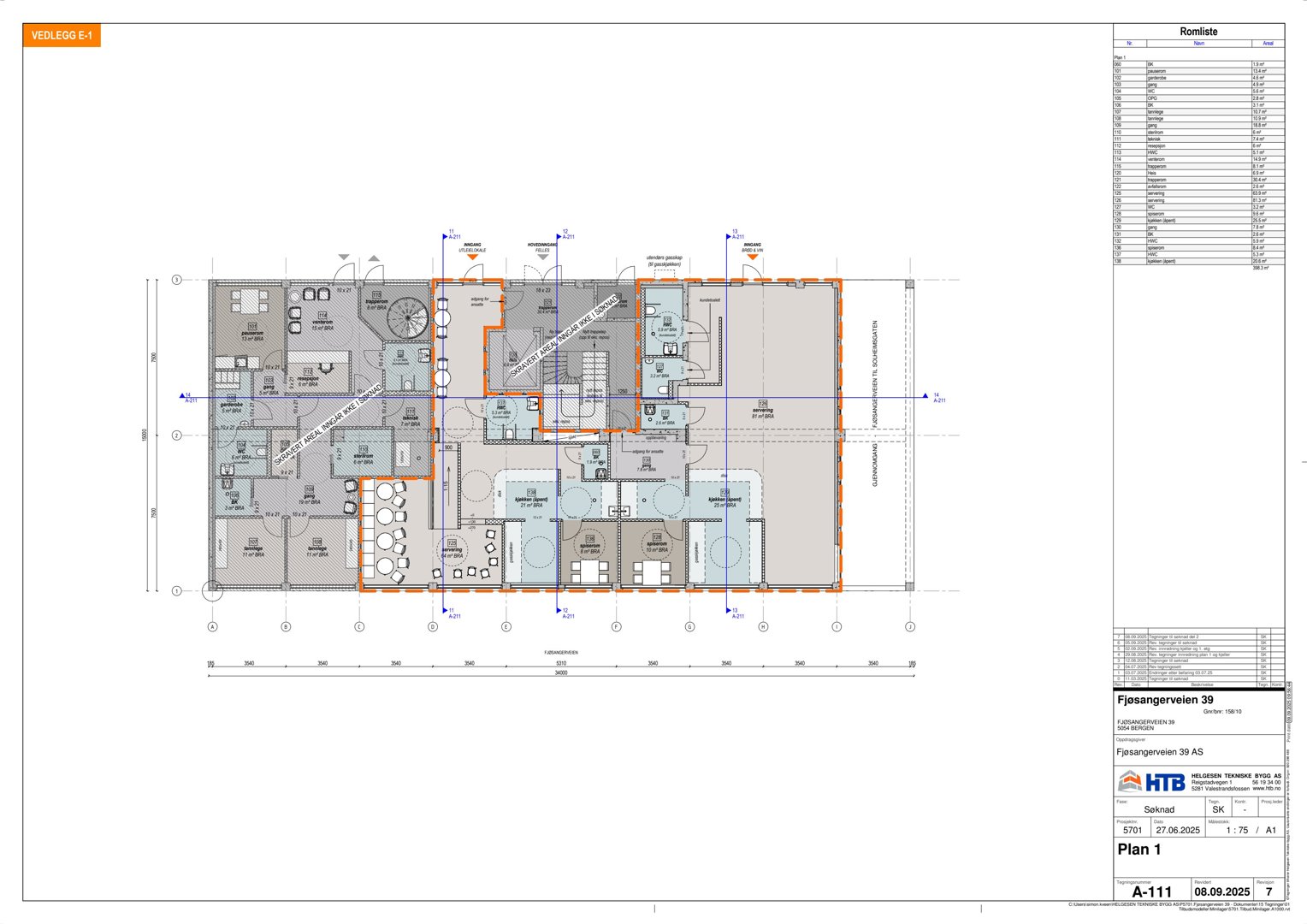
Bruksendring av ca. 266-300 m² bruksareal i eksisterende næringsbygg i Fjøsangerveien 39, Bergen, fra tidligere fargehandel/bank/frisør til to separate restaurant/serveringslokaler. Prosjektet omfatter innvendige ombygginger med etablering av kjøkken, serveringsarealer, spiserom, garderober, toaletter inkludert HC-toalett, ventilasjonsanlegg med gjenbruk av eksisterende avtrekkshette, samt installasjon av fettutskiller for avløpsvann. Det er planlagt varelevering via Solheimsgaten med avsatt lasteplass, og det er etablert avtale om leie av parkeringsplasser for ansatte og kunder. Bygget har flere trapperom og heis for tilgjengelighet, og det er gjennomført nødvendige dispensasjonssøknader for parkeringsplass og byggegrense mot Bybanen. Arbeidstilsynet har gitt samtykke etter arbeidsmiljøloven, og ventilasjons- og inneklimakrav er dokumentert og godkjent etter etterkontroll. Prosjektet er i igangsettingsfase med ansvarlige prosjekterende og utførende innen arkitektur, ventilasjon, sanitær, elektro og brann.

Produkter og materialer

Fasade Eksisterende fasade beholdes

Ingen utvendige endringer planlagt

Fasaden forblir uendret i forbindelse med bruksendringen

Elektro Brannalarm, nød- og ledelys

Brannalarm og nødlys installeres i henhold til brannkonsept

Elektriske installasjoner for brannsikkerhet og rømningsbelysning

VVS Sanitærinstallasjoner

HC-toalett, kundetoalett, dusj, garderober og spiserom for ansatte

Sanitærutstyr og installasjoner tilpasset restaurantbruk og arbeidsmiljøkrav

VVS Innvendig fettutskiller

Antall: 1

Fettutskiller for fettholdig avløpsvann fra restaurantdrift, separat søknad for påslipp kreves

Fettutskiller installeres for å behandle avløpsvann før tilknytning til offentlig nett

Grunnarbeid Varelevering og parkeringsplass

Varelevering via Solheimsgaten med avsatt lasteplass, leieavtale for parkeringsplasser

Tilrettelegging for varelevering og parkering i henhold til reguleringsplan og dispensasjoner

Ventilasjon Mekanisk ventilasjon med gjenbruk av avtrekkshette

Dokumentert luftmengdeberegning og inneklima i henhold til Arbeidstilsynets krav

Mekanisk ventilasjon for restaurantlokalene med balansert luftskifte og prosesstilpasset avsug

Tømrer Innvendige ombygginger og trapper

Nye trapper, nytt trappeløp til kjeller, nytt repos koblet til eksisterende repos

Innvendige konstruksjoner og trapper for tilpasning til ny bruk og rømningsveier

Hendelser

16.02.2026 Kopi - Etterkontroll – planene oppfyller nå kravene i regelverket - 158/10/0/0 Fjøsangerveien 39, bruksendring til 2 serveringslokaler
04.02.2026 Kopi: Vi har foretatt etterkontroll av planene for tiltaket
03.02.2026 Igangsettingstillatelse (1), 158/10, Fjøsangerveien 39
28.01.2026 Fjøsangerveien 39 Søknad om igangsettingstillatelse 158/10
14.01.2026 Kopi. Vi innvilger søknaden om samtykke etter automatisk saksbehandling - 158/10/0/0 Fjøsangerveien 39, bruksendring til 2 serveringslokaler
29.12.2025 Fakturagrunnlag
29.12.2025 ubw ordre 20684892
12.12.2025 Rammetillatelse, 158/10, Fjøsangerveien 39
23.10.2025 Tilleggsopplysninger- 158/10/0/0 Fjøsangerveien 39, bruksendring til 2 serveringslokaler
08.10.2025 Behov for tilleggsopplysninger
07.10.2025 Fjøsangerveien 39, anmodning om uttalelse
19.09.2025 Uttalelse fra Bergen Vann
15.09.2025 Bekreftelse på mottatt søknad
10.09.2025 Fjøsangerveien 39 Søknad om rammetillatelse 158/10