ChangeOfUse Rammetillatelse Naeringsbygg

Bruksendring og fasadeendring på næringsbygg, Fløvegen 124, Ulstein

📍 Fløvegen 124 , 6065 ULSTEINVIK

Nøkkelinfo

Sakstype
Bruksendring
Bygningstype
Naeringsbygg
Bruksareal
468 m²
Kommune
Ulstein
Fylke
Møre og Romsdal
Gnr / Bnr
6 / 43
Saksnummer
2025/2667
Fase
Rammetillatelse

Om byggesaken

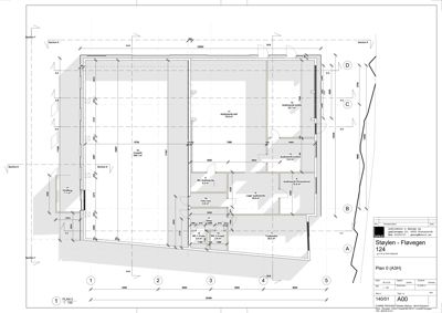
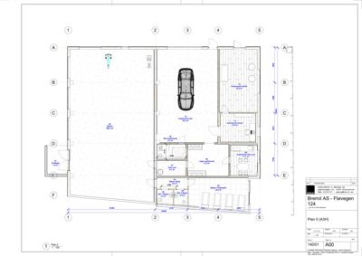
Eksisterende næringsbygg på 468 m² i Fløvegen 124, tidligere bilverksted, rehabiliteres med ny platekledning, utskifting av vinduer og dører, samt 10 cm utvendig isolasjon. Det bygges et lite tilbygg på 7,8 m² som vindfang mot vest. Bygget deles i to utleiedeler: en for bilstereomontasje (AudioNerds) og en for treningsstudio (Crossfit). Det etableres nye parkeringsplasser på tomten, inkludert handikapplasser og sykkelparkering. Fasadeendringer og bruksendring krever dispensasjon fra reguleringsplanens formål industri/bilservice, byggegrense og utnyttingsgrad. Tiltaket inkluderer også oppgradering av tekniske installasjoner som ventilasjon, vann og avløp. Områdestabilitet og grunnforhold er vurdert og funnet tilfredsstillende. Det stilles vilkår om evaluering av støy og trafikk etter ett år, samt krav til fysisk skilje mot fylkesveg.

Produkter og materialer

Tilbygg Vindfang

🧱 Byggematerialer for tilbygg

Antall: 1

Tilbygg på 7,8 m² som vindfang mot vest

Lite tilbygg som inngangsparti til treningsstudio

Fasade Platekledning

🧱 Platekledning

Platekledning rundt nesten hele bygget

Oppgradering av fasade med platekledning

VVS Sanitærinstallasjoner

Nye vann- og avløpsledninger, tilkobling til offentlig nett, brannslangeinstallasjon i hver seksjon

Oppgradering av sanitærinstallasjoner

Maling Innvendig overflatebehandling

🧱 Maling og overflatebehandling

Innvendig maling og overflatebehandling

Oppgradering av innvendige overflater

Tømrer Tre- og glasskonstruksjoner, fasadekledning, taktekking

🧱 Tre, glass, platekledning

Utførelse i henhold til brannkonsept og krav

Tømrerarbeid for fasade og tak

Grunnarbeid Parkering og avkjørsel

🧱 Grus, asfalt, kantstein, rabatt

Opparbeiding av parkeringsplasser for 19 biler inkl. 2 handikapplasser, sykkelparkering, fysisk skilje mot fylkesveg med rabatt

Opparbeiding av parkeringsareal og avkjørsel i henhold til krav

Dører Utskifting av dører

🧱 Nye dører i eksisterende bygg

Antall: 10

Nye dører i fasader og innvendig

Utskifting av dører for bedre funksjon og estetikk

Brannvern Brannslange og brannkonsept

Antall: 2

Brannslange i hver seksjon, brannvegg REI120M, brannklasse 1

Brannsikring i henhold til brannkonsept

Tak Etterisolering og taktekking

🧱 10 cm isolasjon, taktekking

Påforing med 10 cm isolasjon rundt bygget, taktekking iht. eksisterende

Etterisolering og vedlikehold av tak

Vinduer Utskifting av vinduer

🧱 Utskifting av vinduer i eksisterende bygg

Antall: 8

Nye vinduer i fasader nord, sør, øst og vest

Utskifting av vinduer for bedre lys og isolasjon

Ventilasjon Varmegjenvinning og varmepumper

Installasjon av varmegjenvinning og varmepumper

Oppgradering av ventilasjons- og klimainstallasjoner

Fasader

Enebolig

Nord
Materiale
Betong
Taktype
Saltak
Høyde
2.9 m
Mønehøyde
5.5 m
Vinduer
2
Dører
2
Synlige etasjer
1
Sør
Materiale
Betong
Taktype
Saltak
Høyde
2.9 m
Mønehøyde
5.5 m
Vinduer
0
Dører
0
Synlige etasjer
1
Vest
Materiale
Tre
Taktype
Flatt tak
Høyde
2.6 m
Vinduer
3
Dører
1
Synlige etasjer
1
Øst
Materiale
Tre
Taktype
Flatt tak
Høyde
2.6 m
Vinduer
3
Dører
1
Synlige etasjer
1

Hendelser

21.04.2026 Sjekkliste - søknad om tiltak
21.04.2026 Melding om vedtak - Dispensasjon og rammeløyve for bruksendring og fasadeendringar - Fløvegen 124 - Gnr 6 bnr 43
08.04.2026 Dispensasjon og bruksendring - Fløvegen 124 - Gnr. 6, bnr. 43
26.03.2026 Kommentar til uttalane
20.03.2026 Høyringssvar Ulstein kommune - bruksendring - gbnr 6/43 - Fløvegen 124 - dispensasjon
12.03.2026 Til uttale - dispensasjon - Ulstein 6/43 - Fløvegen 124 - bruksendring
25.02.2026 Oversending av søknad til uttale - Dispensasjon for bruksendring - Fløvegen 124 - gnr 6 bnr 43
20.02.2026 Søknad om rammeløyve
14.11.2025 Referat frå førehandskonferanse - Bruksendring og fasadeendringar - Fløvegen 124 - Gnr 6 bnr 43
06.11.2025 Førespurnad om førhandskonferanse