ChangeOfUse Soeknad Naeringsbygg

Bruksendring og hovedombygging av tre bygninger i Gamleveien 479, Nittedal

📍 Gamleveien 477 , 1484 HAKADAL

Nøkkelinfo

Sakstype
Bruksendring
Bygningstype
Naeringsbygg
Bruksareal
1,002 m²
Boenheter
3
Kommune
Nittedal
Fylke
Akershus
Gnr / Bnr
60 / 12
Saksnummer
25/04150
Fase
Søknad

Om byggesaken

Prosjektet omfatter bruksendring av tre eksisterende bygninger på eiendommen Gamleveien 479 i Nittedal. Villa Breidablikk, et sveitserstil våningshus på ca. 589 m² BRA, rehabiliteres og omgjøres fra tidligere barnehage til bolig med sekundærleilighet i kjeller og hybel på loft. Rødvillaen på ca. 100 m² BRA endres fra boligbrakker til enebolig. Låven på ca. 313 m² BRA ombygges til kontor-, lager- og verkstedlokaler med tilbygg av garasje og boder. Totalt blir det tre boenheter og næringslokaler på eiendommen. Bygningene gjennomgår hovedombygging med tekniske oppgraderinger som isolasjon, ventilasjon, brannsikring og universell utforming tilpasset eksisterende bygningsstruktur. Det foreligger dispensasjon fra LNF-formålet for tiltaket, og prosjektet inkluderer også riving av to uthus og etablering av ny uteplass. Eiendommen har et samlet bebygd areal på ca. 1002 m² BRA, fordelt på de tre bygningene.

Produkter og materialer

VVS Radon tiltak

Radonbrønn og radonsperre i kjeller, ventilert krypkjeller

Tiltak for å begrense radoninnstrømming i bolig

VVS Ventilasjon

Mekanisk avtrekk fra kjøkken, bad og vaskerom, tilluft via ventiler i vinduer

Ventilasjonssystem for bolig og næringslokaler, sikrer luftutskifting og inneklima

Vinduer Isolerglassvinduer

🧱 Tre med isolerglass, U-verdi < 1,1 W/m²K

Restaurerte og nye vinduer med varevinduer, kopiert med dobbelt isolerende glass

Vinduer til rehabilitering av Villa Breidablikk og øvrige bygninger

Kontor Kontorlokaler i låve

Kontor, lager og lett verksted i låve, med areal ca. 220 m² fordelt på to etasjer

Næringslokaler for mindre virksomheter med begrenset trafikk og støy

Elektro Brannalarmanlegg

🧱 Honeywell system

Brannalarmanlegg installert i hele Villa Breidablikk

Brannsikkerhet for bolig

Tak Taktekking leppeskifer

🧱 Leppeskifer

Taktekking skiftet til leppeskifer på Villa Breidablikk og låve

Taktekking for bevaring av byggets opprinnelige uttrykk

Mur Grunnmur i betong

🧱 Betong

Grunnmur i betong, krypkjeller ventilert

Fundamentering og fuktsikring

Ventilasjon Mekanisk avtrekk med varmegjenvinning

Ventilasjonsaggregat Flexit med varmegjenvinning i bolig

Sikrer luftkvalitet og energieffektivitet

Dører Ytterdører og innvendige dører

🧱 Tre, noen originale restaurert, nye tilpasset byggets karakter

Nye dører og trapp av originale materialer, enkelte flyttinger av dører

Dører til bolig og næringsbygg, inkludert brannklassifiserte dører i låve

Gulv Etterisolering gulv på grunn

🧱 EPS/XPS isolasjon

Planlagt etterisolering med 100-150 mm EPS/XPS, ny fuktsperre og nytt gulv

Energitiltak for gulv mot grunn for å oppnå U-verdi < 0,18 W/m²K

Tømrer Rehabilitering og forsterkning av bjelkelag og bærende konstruksjoner

🧱 Treverk

Forsterkning og utskifting ved råteskader, oppgradering til TEK17

Strukturell oppgradering av eksisterende bygningsmasse

Fasade Trepanel kledning

🧱 Tre, stående plank med not og fjær

Original kledning bevart der mulig, ny kledning tilpasset eksisterende

Fasadeoppgradering og vedlikehold av eksisterende bygningsmasse

Terrasse Ny terrasse

Ny terrasse mot nord på kårbolig, under 50 cm høyde over terreng

Uteplass til bolig

Garasje Dobbeltgarasje i låve

Antall: 1

Garasje på ca. 50,7 m² tilknyttet våningshus og næringsdel

Garasje for bolig og næringsbruk

Isolasjon Mineralull isolasjon

🧱 Mineralull med λ-verdi 0,032 W/mK

Tilleggsisolering av vegger, tak og gulv, ca. 22,5 cm i vegger, 30 cm i tak

Isolasjon for energieffektivisering og oppgradering til TEK17-nivå

Bad Våtrom med membran og fliser

🧱 Vanntett membran og fliser

Nye våtrom med sluk, fall ca. 1:100, membran klemt og avsluttet korrekt

Bad og våtrom oppgradert til TEK17 krav

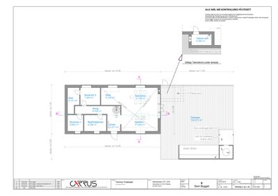
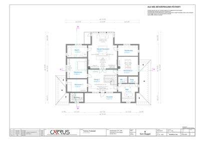
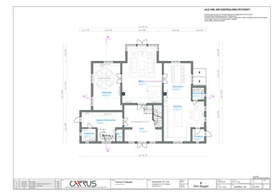
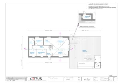
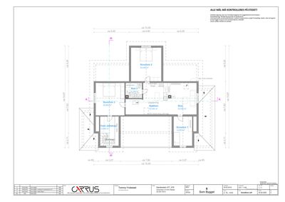
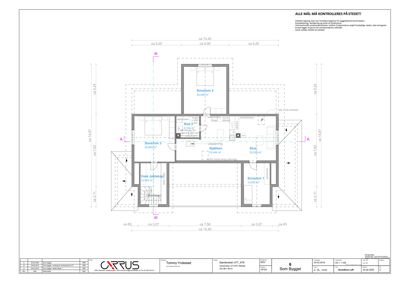
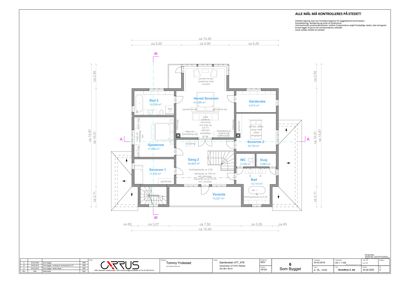
Plantegning

Hovedhus 395.9 m²

Etasje 2 172.5 m²

Rom Areal Vinduer Dører
Gang 2 201 28.8 m² 0 4
Veranda 202 15.2 m² 0 1
Soverom 1 203 11.2 m² 1 1
Gjesterom 204 17.6 m² 1 2
Bad 2 205 10.7 m² 0 1
Hoved Soverom 206 41.4 m² 1 2
Garderobe 207 9.5 m² 0 1
Soverom 2 208 16.7 m² 1 2
WC 209 2.7 m² 0 1
Dusj 210 2.9 m² 0 1
Bad 211 13.1 m² 0 1

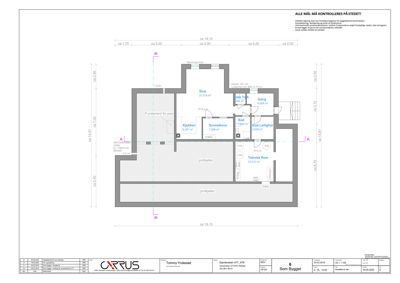
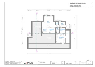
Etasje 0 53.8 m²

Rom Areal Vinduer Dører
Stue 001 27.0 m² 1 2
Kjøkken 002 6.3 m² 0 1
Sovealkove 003 7.3 m² 0 1
Bad 004 3.8 m² 0 1
Gang 005 6.1 m² 0 3
Teknisk Rom 006 27.5 m² 0 1
Vask Jøttskap 007 13.5 m² 0 1

Etasje 1 169.6 m²

Rom Areal Vinduer Dører
Stue 101 49.0 m² 1 2
Spisestue 102 24.4 m² 1 2
Kjøkken 103 33.8 m² 1 2
Spiskammer 104 3.4 m² 0 1
Hall 105 31.3 m² 2 4
Bibliotek 106 30.6 m² 1 2
Ingang Garderobe 107 16.6 m² 0 2
Vaskerom 108 4.9 m² 0 2
WC 109 1.9 m² 0 1
Forgang 110 3.6 m² 1 1

Låven 220.4 m²

Etasje 1 113.4 m²

Rom Areal Vinduer Dører
Apent kontorlandskap 1 113.4 m² 0 1
Kjøkken 2 9.5 m² 1 1
Vaskerom 3 6.5 m² 0 1
Gang 4 0.0 m² 0 1
Gang 5 0.0 m² 0 1
Gang 6 0.0 m² 0 1
Gang 7 0.0 m² 0 1

Etasje 2 107.0 m²

Rom Areal Vinduer Dører
Stue 101 19.6 m² 1 1
Spiseplass 102 17.8 m² 1 1
Kjøkken 103 11.0 m² 1 1
Lager 104 10.7 m² 1 1
Teknisk rom 105 3.0 m² 0 1
WC 106 2.7 m² 0 1
Dusj 107 3.0 m² 0 1
Inngang 108 24.3 m² 0 1
Garderobe 109 0.0 m² 0 1
Kontor 110 15.3 m² 1 1
Kontor 111 16.1 m² 1 1
Garasje 112 50.7 m² 2 1
Bod 113 8.8 m² 1 1
Bod 114 8.8 m² 1 1

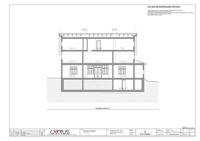
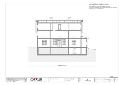
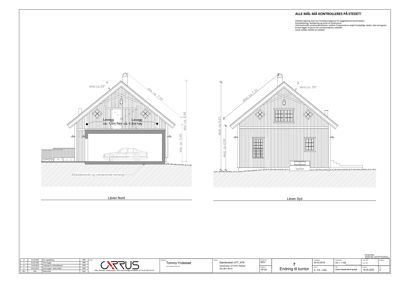
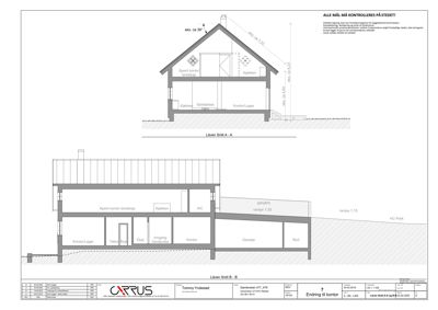
Fasader

Kårbolig

Øst
Materiale
Tre
Taktype
Saltak
Høyde
2.9 m
Mønehøyde
5.8 m
Vinduer
3
Dører
1
Synlige etasjer
1
Vest
Materiale
Tre
Taktype
Saltak
Høyde
2.9 m
Mønehøyde
5.8 m
Vinduer
2
Dører
0
Synlige etasjer
1
Nord
Materiale
Tre
Taktype
Saltak
Høyde
3.9 m
Mønehøyde
8.5 m
Vinduer
5
Dører
0
Synlige etasjer
2
Sør
Materiale
Tre
Taktype
Saltak
Høyde
4.6 m
Mønehøyde
9.2 m
Vinduer
4
Dører
1
Synlige etasjer
2

Hendelser

10.04.2026 25/04150-8 Anmodning om supplerende dokumentasjon av 17.03.2026 for behandling av dispensasjonssøknaden - 60/12 - Gamleveien 477 og 479
17.03.2026 25/04150-7 Anmodning om supplerende dokumentasjon for behandling av dispensasjonssøknaden - 60/12 - Gamleveien 477 og 479 - Bruksendring
06.03.2026 25/04150-5 Akershus fylkeskommunes vurdering og anbefaling - 60/12 - Gamleveien 477 og 479 - Bruksendring av tre bygninger i LNF-område
27.02.2026 25/04150-4 Uttalelse til søknad om dispensasjon for bruksendring av tre bygninger - 60/12 - Gamleveien 477 og 479
05.02.2026 25/04150-3 Oversendelse av sak til uttalelse - 60/12 - Gamleveien 477 og 479 - Bruksendring av tre bygninger med dispensasjon fra LNF-formål
27.01.2026 25/04150-2 Politisk behandling - 60/12 - Gamleveien 477 og 479 - Bruksendring av tre bygninger med dispensasjon fra kommuneplanen
23.12.2025 25/04150-1 Søknad om rammetillatelse - 60/12 - Gamleveien 479 - Bruksendring av 3 eiendommer med dispensasjon