ChangeOfUse
Ferdigattest
Naeringsbygg
Bruksendring fra bedehus til næringslokale, Høievegen 661
📍
Høievegen 661
, 5563 FØRRESFJORDEN
Nøkkelinfo
- Sakstype
- Bruksendring
- Bygningstype
- Naeringsbygg
- Bruksareal
- 95 m²
- Kommune
- Tysvær
- Fylke
- Rogaland
- Gnr / Bnr
- 66 / 18
- Saksnummer
- 2024/3260
- Fase
- Ferdigattest
Om byggesaken
Bruksendring av et tidligere bedehus på ca. 95 m² til næringslokale med lager for nettbutikk og sporadiske pop-up utstillinger. Bygningen beholdes uten bygningsmessige endringer, med eksisterende parkeringsplass for 6-8 biler og tilknytning til offentlig vann og privat avløpsanlegg. Det er montert brannvarslingsutstyr og utarbeidet rømningsplan. Næringsaktiviteten innebærer småskala kundekontakt med 5-25 besøkende pr. åpningsdag, hovedsakelig på lørdager. Det er gitt dispensasjon fra LNF-formålet i kommuneplanen for en tidsbegrenset periode på 5 år. Avkjørsel til fylkesvei er godkjent med vilkår om trafikksikkerhet. Arbeidstilsynet har gitt samtykke med vilkår om ventilasjon. Det er søkt om ferdigattest for tiltaket.
Produkter og materialer
Eksisterende betonggulv i lager og øvrige rom
Gulv i lager og øvrige rom i bygningen
Tilknytning til offentlig vann, privat avløpsanlegg med tett tank og nivåalarm, årlig tømming
Vannforsyning og avløpsløsning for næringslokalet
🧱 Tre
Antall: 8
Dører til lager, bod, WC, garderobe og gang i eksisterende bygg
Innvendige dører i eksisterende bygning
🧱 Logo og enkel tekst
Antall: 1
Oppføring av virksomhetsvisningsskilt på fasade mot fylkesvei, med tillatelse fra Rogaland fylkeskommune
Reklameskilt for virksomheten på byggets fasade
Endret bruk av eksisterende avkjørsel til fylkesvei med krav om frisikt 4x45 m, snu- og manøvreringsareal på egen grunn, stikkrenne mm
Oppgradering og tilpasning av avkjørsel for næringsbruk i henhold til vegmyndighetenes krav
Seriekoblede brannmeldere og slokkeutstyr montert
Brannvarslings- og slokkeutstyr for sikker bruk av næringslokalet
Ventilasjonsløsning må dokumenteres å sikre tilfredsstillende inneklima i henhold til Arbeidstilsynets krav
Ventilasjon for å sikre godt inneklima i næringslokalet
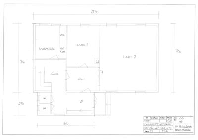
Plantegning
Forsamlingshus 0.0 m²
Etasje 1 0.0 m²
| Rom |
Areal |
Vinduer |
Dører |
| Kjøkken 101 |
0.0 m² |
0 |
1 |
| Småsalen 102 |
0.0 m² |
0 |
1 |
| Forsamlingsal 103 |
0.0 m² |
0 |
1 |
| Uendret 104 |
0.0 m² |
0 |
1 |
| Gard 105 |
0.0 m² |
0 |
0 |
| W.C 106 |
0.0 m² |
0 |
1 |
| W.C 107 |
0.0 m² |
0 |
1 |
| Garderobe 108 |
0.0 m² |
0 |
1 |
Hovedbygg 100.0 m²
Etasje 1 100.0 m²
| Rom |
Areal |
Vinduer |
Dører |
| Låsbare bod LÅSBAR BOD |
18.0 m² |
0 |
1 |
| Vask VASK |
2.0 m² |
0 |
0 |
| Mini kjøkken MINI KJØKK |
2.0 m² |
0 |
0 |
| Lager 1 LAGER 1 |
25.0 m² |
0 |
1 |
| Lager 2 LAGER 2 |
45.0 m² |
0 |
1 |
| Gang GANG |
10.0 m² |
0 |
2 |
| WC WC |
2.5 m² |
0 |
1 |
| Vaskerom VF |
8.0 m² |
0 |
1 |
Fasader
Enebolig
Sør
- Materiale
- Tre
- Taktype
- Saltak
- Vinduer
- 2
- Dører
- 1
- Synlige etasjer
- 1
Vest
- Materiale
- Tre
- Taktype
- Saltak
- Vinduer
- 5
- Dører
- 1
- Synlige etasjer
- 2
Nord
- Materiale
- Tre
- Taktype
- Saltak
- Vinduer
- 2
- Dører
- 0
- Synlige etasjer
- 1
Hendelser
16.04.2026
Gbnr 66/18 - Søknad om ferdigattest - bruksendring fra bedehus til næringsaktivitet - Høievegen 661
23.01.2026
Gbnr 66/18 - Vedtak - Godkjent søknad - Bruksendring fra bedehus til næringsaktivitet - Dispensasjon - Høievegen 661
21.01.2026
Gbnr 66/18 - Supplering av søknad - samtykke med vilkår
19.01.2026
Gbnr 66/18 - Vi innvilger søknaden om samtykke, med vilkår
12.01.2026
Gbnr 66/18 - Supplering av søknad - bruksendring fra bedehus til næringsaktivitet - Høievegen 661
27.11.2025
Gbnr 66/18 - Ytterligere mangler ved søknaden - Bruksendring fra bedehus til næringsaktivitet - Høievegen 661
27.11.2025
Gbnr 66/18 - Informasjon om rett tiltakshaver - søknad om bruksendring - Høievegen 661
20.11.2025
Gbnr 66/18 - Uttalelse - dispensasjon - bruksendring fra bedehus til næringsaktivitet - Høievegen 661
20.11.2025
Gbnr 66/18 - Supplering til søknad om bruksendring fra bedehus til næringsaktivitet - Høievegen 661
20.11.2025
Gbnr 66/18 - Vedtak - bruksendring av avkjørsel - Fv 4794 - Høievegen 661
10.11.2025
Gbnr 66/18 - Uttalelse - dispensasjon - bruksendring fra bedehus til næringsaktivitet- Høievegen 661
22.10.2025
Gbnr 66/18 - Ber om uttale - Bruksendring fra bedehus til næringsaktivitet - Høievegen 661
16.10.2025
Gbnr 66/18 - Supplering av søknad - bruksendring fra bedehus til næringsaktivitet - Høievegen 661
03.09.2025
Gbnr 66/18 - Mangler ved søknad - Bruksendring fra bedehus til næringsaktivitet - Høievegen 661
18.08.2025
Gbnr 66/18 - Søknad om bruksendring fra bedehus til næringsaktivitet - Høievegen 661
31.10.2024
Avløpsanlegg - Gnr. 66 bnr. 18 - Høievegen 661 - Gamle Stegaberg Bedehus
15.08.2024
Vedrørende bruk av Stegaberg bedehus - gnr. 66 bnr. 18 - Høievegen 661
13.08.2024
Stegaberg Bedehus - Bruk av lokaler til lager for nettbutikk - gnr. 66 bnr. 18 - Høievegen 661