ChangeOfUse Rammetillatelse Naeringsbygg

Bruks- og fasadeendring på McDonald's, Kompveien 2668

📍 Kompveien 2664 , 1940 BJØRKELANGEN

Nøkkelinfo

Sakstype
Bruksendring
Bygningstype
Naeringsbygg
Kommune
Aurskog-Høland
Fylke
Akershus
Gnr / Bnr
75 / 62
Saksnummer
25/02780
Fase
Rammetillatelse

Om byggesaken

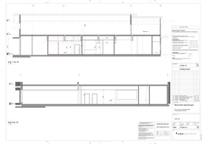
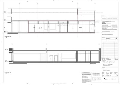
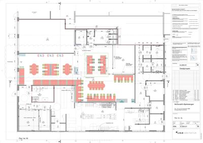
Prosjektet omfatter bruksendring, fasadeendring og innvendige endringer på McDonald's restaurant i Kompveien 2668, Bjørkelangen. Bygget har to etasjer med tekniske rom i 2. etasje og publikums- og kjøkkenarealer i 1. etasje. Fasaden består av trekledning med saltak og flatt tak, og det er flere vinduer og dører i fasadene. Endringene inkluderer justering av planløsning med redusert publikumsområde, flytting av hovedinngang, oppdatering av fasade med ventilasjonsrister og dører til tekniske rom, samt oppdatert utomhusplan med parkeringsplasser, uteservering og skiltplan for drive-thru. Det er også prosjektert innsnevring av avkjørsel og opparbeidelse av støttemur med rekkverk. Bygget skal oppfylle branntekniske krav med ubrennbare materialer og tilfredsstillende rømningsveier. Prosjektet inkluderer også oppgradering av ventilasjon, sanitærinstallasjoner, brannalarmanlegg og miljøsanering.

Produkter og materialer

Riving Miljøsanering og forberedende riving

Miljøkartlegging, ombrukskartlegging og miljøsanering i tiltaksklasse 1 og 2

Forberedende riving og miljøsanering i forbindelse med ombygging

Utendørs Støttemur med rekkverk

🧱 Betong og metallrekkverk

Støttemur med rekkverk på sørsiden av kjørearealet, granittblokker langs eiendomsgrense

Opparbeidelse av støttemur med rekkverk og granittblokker for å hindre overkjøring mellom eiendommer

Utendørs Parkeringsplasser

🧱 Asfalt og betongheller

Parkeringsplasser tilpasset terreng, inkludert HC-plasser og sykkelparkering

Opparbeidelse av parkeringsplasser nord og sør for vaskehall, tilpasset terreng

Tømrer Innvendige vegger og montering av trekonstruksjoner

🧱 Tre

Endringer i planløsning med nye vegger og montering av trekonstruksjoner

Innvendige endringer med justert planløsning, lager og publikumsareal

Utendørs Drive-thru bane og skilt

Skiltplan med gateway, pre-sell board, menu board, directional sign i drive-thru bane

Oppdatering av drive-thru bane med enkel kjørebane og oppdatert skiltplan

Sanitær Sanitærinstallasjoner og fettutskiller

Montering av sanitæranlegg og fettutskiller, søknad til kommunen om fettutskiller

Oppgradering av sanitærinstallasjoner med fettutskiller for restaurantdrift

Fasade Trekledning

🧱 Tre

Fasade med trekledning, saltak og flatt tak, brannteknisk klasse B-s3,d0 [Ut 1]

Fasadeendringer med trekledning og oppdaterte farger og skilt i henhold til virksomhetens designkonsept

Fasade Ventilasjonsrister og dører til tekniske rom

🧱 Tre, fargede plater

Ventilasjonsrister 1250x1500mm og 1500x1500mm, dør 2500x1500mm

Oppdatering av fasade med ventilasjonsrister og ny transportdør til teknisk rom i 2. etasje

Brannvern Brannalarmanlegg og brannkonsept

Brannalarmanlegg og ledesystem, brannkonsept i tiltaksklasse 2 og 3

Prosjektering og installasjon av brannalarmanlegg og brannkonsept i henhold til gjeldende krav

Ventilasjon Ventilasjonsanlegg

Ventilasjonsanlegg plassert i teknisk rom, med avtrekksvifte uten støyproblem

Oppgradering av ventilasjons- og klimainstallasjoner i bygget

Veg- og grunnarbeid Veg, grunnarbeider og landskapsutforming

Innsnevring av avkjørsel, opparbeidelse av kjøreareal, gangveier og parkeringsareal

Opparbeidelse av utearealer med kjøreareal, gangveier, parkeringsplasser og støttemur

Plantegning

McDonald's Bjørkelangen 0.0 m²

Etasje 2 0.0 m²

Rom Areal Vinduer Dører
Ventilasjonsrom 201 6.9 m² 0 1
Teknisk rom 202 81.2 m² 0 1

Fasader

McDonald's Bjørkelangen

Sør
Materiale
Tre
Høyde
4.2 m
Vinduer
5
Dører
1
Synlige etasjer
1
Øst
Materiale
Tre
Taktype
Saltak
Høyde
4.2 m
Vinduer
6
Dører
1
Synlige etasjer
2
Nord
Materiale
Tre
Taktype
Flatt tak
Høyde
4.2 m
Vinduer
2
Dører
3
Synlige etasjer
1

Hendelser

09.04.2026 25/02780-27 75/62 Endringstillatelse - endringer på fasade, skiltplan og planløsning
07.04.2026 25/02780-26 75/62 Søknad om endring av gitt tillatelse
24.03.2026 25/02780-25 75/65 Fylkeskommunal godkjenning av byggeplan
10.03.2026 25/02780-22 75/62 Uttalelse til klage på vedtak
10.03.2026 25/02780-24 75/62 Orientering om trukket klage
10.03.2026 25/02780-23 75/62 Tilbaketrekking av merknader, innsigelser og klager
24.02.2026 25/02780-21 75/62 Mottatt klage på vedtak - Anmodning om uttalelse
23.02.2026 25/02780-20 75/62 Klage over vedtak om tillatelse til bruksendring, fasadeendring og innvendige endringer
06.02.2026 25/02780-19 75/62 Supplering av søknad
02.02.2026 25/02780-18 75/62 Tillatelse til tiltak
30.01.2026 25/02780-17 75/62 Supplering av søknad