ChangeOfUse Rammetillatelse Naeringsbygg

Bruksendring og fasadeendring til utleieenheter i Kongsgata 7, Ålgård

📍 Kongsgata 10 , 4331 ÅLGÅRD

Nøkkelinfo

Sakstype
Bruksendring
Bygningstype
Naeringsbygg
Bruksareal
200 m²
Boenheter
4
Kommune
Gjesdal
Fylke
Rogaland
Gnr / Bnr
7 / 575
Saksnummer
25/02417
Fase
Rammetillatelse

Om byggesaken

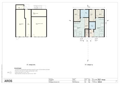
Eksisterende forretningslokale i Kongsgata 7 og 9 ombygges til fire utleieenheter fordelt på to etasjer. Bygget får nye vinduer og dører i vest- og østfasade, samt en ny innvendig felles trapp i andre etasje. Leilighetene varierer i størrelse fra ca. 44 til 57 m² og inneholder bad, soverom og kjøkken/stue. Fasadeendringene innebærer utskifting og flytting av vinduer og dører for å oppnå dagslys- og rømningskrav. Tiltaket inkluderer også tekniske installasjoner, brannskille, bærekonstruksjoner, fundamenter og lydskille. Bygget ligger i et område med middels skredfare (S2), og det foreligger vurderinger og anbefalinger for skredsikring av nærliggende områder. Parkeringsløsning for utleieenhetene er avklart med fire reserverte plasser og sykkelparkering. Det søkes om unntak fra krav om heis og deler av energikravene, men tiltakshaver har besluttet å gjennomføre energitiltak for å oppnå energirammer i TEK17.

Produkter og materialer

Elektro Elektrisk anlegg

Oppgradering av elektrisk anlegg tilpasset nye leiligheter

Elektriske installasjoner tilpasses ny bruk og leilighetsinndeling

Grunnarbeid Parkeringsplass

Antall: 4

Fire parkeringsplasser reservert for utleieenhetene på baksiden av bygget

Parkeringsplasser disponeres for beboere i utleieenhetene

Ventilasjon Balansert ventilasjon

Oppgradering av ventilasjonssystem med varmegjenvinning

Ventilasjon tilpasses ny bruk og energikrav

Trapper Innvendig felles trapp

🧱 Tre/stål

Antall: 1

Ny innvendig felles trapp i andre etasje for adkomst til utleieenheter

Ny trapp etableres for felles adkomst til leiligheter i andre etasje

Terrasse Sykkelparkering

Sykkelparkering etablert på eiendommen for utleieenhetene

Sykkelparkering tilrettelegges som del av uteareal

Fasade Fasadeendring

🧱 Tre

Endring av fasade med nye vinduer og dører, mindre endringer i fasadens utforming

Fasaden endres for å tilpasse nye vinduer og dører i tråd med bruksendringen

Grunnarbeid Fundamenter

Endringer i fundamenter som følge av innvendige konstruksjonsendringer

Fundamenter tilpasses nye konstruksjoner ved ombygging

VVS Sanitærinstallasjoner

Nye bad med våtromsinstallasjoner i hver leilighet

Oppgradering og nyinstallasjon av sanitær i forbindelse med ombygging til utleieenheter

Gulv Gulvbelegg

Nye gulv i leiligheter, inkludert varmekabler

Gulv oppgraderes med nye overflater og varmekabler i våtrom

Tømrer Innvendige konstruksjoner

🧱 Tre

Nye vegger, lydskiller og bærende konstruksjoner innvendig

Innvendige konstruksjoner bygges om for å tilpasse nye leiligheter

Brannvern Brannskille

Nye brannskiller i bygget i henhold til brannkonsept

Brannskiller etableres innvendig som del av ombyggingen

Vinduer Fasadevindu

🧱 Tre/isolerglass

Antall: 8

Nye vinduer i vest- og østfasade for dagslys, utsyn og rømningskrav

Nye vinduer skal settes inn i fasadene for å oppnå dagslys- og rømningskrav i utleieenhetene

Isolasjon Bygningsisolasjon

🧱 Mineralull

Isolasjon oppgraderes i vegger, tak og gulv for å møte energikrav

Isolasjon forbedres i forbindelse med ombygging og energitiltak

Dører Ytterdør og balkongdør

🧱 Tre/isolerglass

Antall: 4

Nye dører i vestfasade, fjerning av dører og innsetting av vinduer i østfasade

Dører skal byttes ut eller fjernes i fasadene som del av fasadeendringen

Fasader

Enebolig

Vest
Materiale
Tre
Taktype
Saltak
Vinduer
6
Dører
2
Balkonger
1
Synlige etasjer
2
Øst
Materiale
Tre
Taktype
Saltak
Vinduer
6
Dører
2
Synlige etasjer
2

Hendelser

20.04.2026 25/02417-8 GODKJENT - søknad fra Kongsgata Eiendom AS om rammetillatelse for bruksendring av forretningslokale til utleieenheter, gnr. 7, bnr. 575, Kongsgata 7 og 9, Ålgård
30.03.2026 25/02417-6 Spørsmål til nabomerknad om parkeringsløsning for utleieenheter, gnr. 7, bnr. 757, Kongsgata 7 og 9, Ålgård
25.03.2026 25/02417-7 Svar på spørsmål til nabomerknad om parkeringsløsning for utleieenheter, gnr. 7, bnr. 757, Kongsgata 7 og 9, Ålgård
16.03.2026 25/02417-5 Supplering av søknad fra Kongsgata Eiendom AS om rammetillatelse for fasadeendring, fravik fra TEK17 og bruksendring av forretningslokale til utleievirksomhet, Kongsgata Apartments, gnr. 7, bnr. 575, Kongsgata 7 og 9, Ålgård
16.02.2026 25/02417-4 Svar på spørsmål om frist for innsendelse av dokumentasjon, bruksendring, gnr. 7, bnr. 575, Kongsgata 7 og 9, Ålgård
30.01.2026 25/02417-3 Behov for mer informasjon for behandling av søknad om bruksendring til utleieenheter, gnr. 7, bnr. 575, Kongsgata 7 og 9, Ålgård
15.01.2026 25/02417-2 Søknad fra Kongsgata Eiendom AS om rammetillatelse og avvik fra byggteknisk forskrift for fasadeendring og bruksendring av kontor- og forretningslokaler til utleieenheter, gnr. 7, bnr. 575, Kongsgata 7 og 9, Ålgård
16.12.2025 25/02417-1 Spørsmål og svar om søknadsprosess for bruksendring av kontor- og forretningslokaler til utleieenheter, gnr. 7, bnr. 575, Kongsgata 7 og 9, Ålgård