ChangeOfUse Rammetillatelse Naeringsbygg

Bruksendring og ombygging til kafedrift i Nedre Enggate 14

📍 Øvre Enggate 14 , 6509 KRISTIANSUND N

Nøkkelinfo

Sakstype
Bruksendring
Bygningstype
Naeringsbygg
Bruksareal
432 m²
Kommune
Kristiansund
Fylke
Møre og Romsdal
Gnr / Bnr
6 / 255
Saksnummer
25/08174
Fase
Rammetillatelse

Om byggesaken

Bygget er et eksisterende næringsbygg med totalt ca. 432 m² fordelt på kjeller, 1. og 2. etasje. Prosjektet omfatter bruksendring av 1. etasje fra kontor til kafedrift med hovedsal/kafé på ca. 116 m², anretningskjøkken, WC og kasseområde. Kjeller og 2. etasje bygges om med nye funksjoner som kjøl/frys i kjeller, møterom, kontorer, garderober og kjøkken/spiserom i 2. etasje. Det etableres nytt brannskille og brannvarsling, samt riving av eksisterende interntrapp. Det installeres ny ventilasjon, sanitærinstallasjoner, slukkeanlegg, brannalarmanlegg og ledesystem. Det monteres Odin fettutskiller NS3 (3 m³) for behandling av fettholdig avløpsvann. Bygget får heis og trapperom, og det gjennomføres miljøsanering og tømrerarbeid. Arealene har minimum 2,7 m takhøyde etter ombygging. Prosjektet inkluderer også fasadeendring med røykluke på tak. Parkeringsplass i kjeller disponeres av ny leietaker.

Produkter og materialer

Ventilasjon Ventilasjons- og klimainstallasjoner

Prosjektert og utført av CAVERION NORGE AS, inkludert ventilasjon for kafé og kontorområder

Ventilasjonsanlegg for ny kafévirksomhet og ombygde kontor- og møteromsarealer

Grunnarbeid Miljøsanering og riving

Utført av NV-MILJØ NORDMØRE AS, miljøsanering i forbindelse med riving

Miljøsanering og riving av deler av eksisterende bygg for ombygging

Heis Heisinstallasjon

Antall: 1

Eksisterende heis opprettholdes i bygget, tilpasset ny bruk

Heis for tilgjengelighet mellom etasjer

Sanitærinstallasjoner Sanitærinstallasjoner og slukkeinstallasjoner

Utført av RØRLEGGER 1 KRISTIANSUND AS, inkludert WC, HCWC, og slukkeanlegg

Sanitær- og brannslukkingsinstallasjoner tilpasset ny bruk og ombygging

Tømrer Riving og montering av trekonstruksjoner

🧱 Trekonstruksjoner

Riving av interntrapp, montering av nye trekonstruksjoner i ombygging

Tømrerarbeid knyttet til ombygging og tilpasning av lokaler

Brannvern Brannskille og brannvarsling

Nytt brannskille mellom kjeller, 1. og 2. etasje, brannvarsling i trapperom, brannkonsept av FIRESAFE AS

Brannsikringstiltak i henhold til gjeldende forskrifter for bruksendring til kafé

Vinduer Fasadevindu og vinduer i kafé og kontor

Antall: 3

Vinduer i hovedsal/kafé og anretningskjøkken i 1. etasje

Vinduer for dagslys og utsyn i kafé og kjøkken

Fettutskiller Odin fettutskiller NS3, 3 m3, innvendig montering

🧱 Rustfritt stål

Antall: 1

NS-EN 1825-1 sertifisert, med slamfang, alarm GA-1 for fettlag tykkelse, spyle- og tømmeinstruksjoner inkludert

Fettutskiller for behandling av fettholdig avløpsvann fra kafé/kjøkken, med tilhørende alarm og vedlikeholdssystem

Elektro Brannalarmanlegg og ledesystem

Installert av ELEKTROSERVICE KRISTIANSUND AS, inkludert brannalarmanlegg og ledesystem

Elektriske installasjoner for brannsikkerhet og ledelys

Dører Innvendige dører

Antall: 12

Dører til kontorer, møterom, WC, garderober og kjøkken/spiserom i 1. og 2. etasje

Innvendige dører i ombygde lokaler

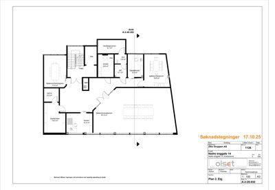
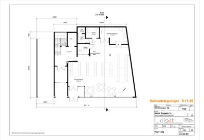
Plantegning

Enebolig 431.8 m²

Etasje 1 175.0 m²

Rom Areal Vinduer Dører
Hovedsal/Kafe 101 115.8 m² 3 2
Anretningskjøkken 102 17.4 m² 1 1
HCWC 103 6.1 m² 0 1
WC 104 2.9 m² 0 1
B.K 105 2.0 m² 0 1
Kasse 106 5.2 m² 0 1
Trapperom 107 0.0 m² 0 0
Heis 108 0.0 m² 0 0

Etasje 2 256.8 m²

Rom Areal Vinduer Dører
Møterom/Gamingrom 201 17.4 m² 0 1
DATA 202 4.9 m² 0 1
Garderobe 203 14.0 m² 0 1
Kontor 204 12.4 m² 0 1
Møterom/øvelserom 205 81.0 m² 0 1
Ventilasjonsrom 206 9.1 m² 0 0
Heis 207 0.0 m² 0 0
Trapp 208 0.0 m² 0 0
HCWC 209 8.6 m² 0 0
B.K 210 2.8 m² 0 0
WC 211 3.7 m² 0 0
Gjestekontor 212 8.5 m² 0 1
Kjøkken/Spiserom 213 18.8 m² 0 1

Etasje 0 0.0 m²

Rom Areal Vinduer Dører
Kjøleskap og Fryser 001 0.0 m² 0 0
Tørrelager 002 6.3 m² 0 0
WC 003 0.0 m² 0 0
Heis 004 0.0 m² 0 0

Hendelser

22.04.2026 25/08174-6 Nedre Enggate 14 Søknad om midlertidigbrukstillatelse 1/41
30.12.2025 25/08174-5 Nedre Enggate 14 Supplering av søknad 1/41
22.12.2025 25/08174-3 Nedre Enggate 14 - Supplerende informasjon, tillatelse fettutskiller
22.12.2025 25/08174-4 Nedre Enggate 14, tillatelse til bruksendring til kafedrift og ombygging kjeller, 1. og 2. etg.
12.11.2025 25/08174-2 Nedre Enggate 14, tillatelse til påslipp fettholdig vann må innhentes.
06.11.2025 25/08174-1 Nedre Enggate 14 - Søknad om bruksendring