ChangeOfUse Rammetillatelse Naeringsbygg

Midlertidig bruksendring til konsertlokale i Pløyenvegen 34

📍 Pløyenvegen 32 , 2850 LENA

Nøkkelinfo

Sakstype
Bruksendring
Bygningstype
Naeringsbygg
Bruksareal
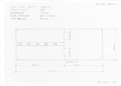
720 m²
Kommune
Østre Toten
Fylke
Innlandet
Gnr / Bnr
80 / 1
Saksnummer
2026/1625
Fase
Rammetillatelse

Om byggesaken

Eksisterende landbruksbygg på ca. 720 m² i Pløyenvegen 34, opprinnelig brukt som løklager, endres midlertidig i perioden juni til august til konsert- og kulturlokale for opptil 300 personer. Bygget har betongelementer som yttervegger og takstoler i tre, og oppfyller branntekniske krav med installasjon av seriekoblede røykvarslere, nødlys, manuelle slokkeapparater og rømning direkte til det fri. Det gjennomføres ingen bygningsmessige endringer, men det søkes dispensasjon fra krav til ventilasjon og isolasjon. Arealet benyttes til kulturelle arrangementer i sommerhalvåret, mens det resten av året fungerer som lager for løk. Parkeringsløsninger og toalettfasiliteter ivaretas utenfor bygget.

Produkter og materialer

Ventilasjon Naturlig ventilasjon

Ventilasjon via åpning av vinduer, ventiler og port som holdes åpen under arrangement

Ingen mekanisk ventilasjon, kun naturlig lufting

Annet Festivaltoaletter

Godkjente festivaltoaletter plassert utenfor bygget under arrangement

Toalettfasiliteter for publikum under konserter

Grunnarbeid Parkeringsareal og adkomst

Eksisterende parkeringsareal benyttes, med parkeringsvakter under arrangement

Parkeringsløsning på eiendommen for besøkende til konsertlokalet

Tak Takstoler i tre med OSB-kledning

🧱 Tre, OSB-plater, ubrennbar isolasjon Rockwool

Takkonstruksjon beskyttet med OSB-plater og ubrennbar isolasjon klasse A2-s1,d0

Eksisterende takkonstruksjon opprettholdes uten krav om utbedring

Dører Utgangsdør/port

Antall: 1

Port som skal stå åpen under arrangementer for rømning

Utgangsdør/port for rømning direkte til det fri, må være åpen eller betjent under arrangement

Vinduer Fasadevindu

🧱 tre/aluminium ikke spesifisert

Antall: 6

Eksisterende vinduer i låvebygget benyttes for naturlig ventilasjon og lys

Fasade Betongelement yttervegger

🧱 Betong

Eksisterende yttervegger i betongelementer

Byggets yttervegger er betongelementer som tilfredsstiller branntekniske krav

Brannvern Manuelle brannslokkeapparater

Pulverapparater minimum 6 kg ABC-pulver eller skum/vannapparater minimum 9 liter, med etterlysende skilting

Brannslokkeutstyr plassert slik at det dekker hele bygget

Elektro Seriekoblede røykvarslere

Røykvarslere tilknyttet strømforsyning med batteri som reserveløsning, i henhold til NS-EN 14604:2005

Installasjon av seriekoblede røykvarslere i hele bygget for brannsikkerhet

Elektro Nødlys/markeringslys

Markeringslys over rømningsutgang, med uavhengig strømforsyning i minst 30 minutter

Ledesystem for rømningsveier i henhold til brannkrav

Gulv Eksisterende gulv

Eksisterende gulv i låvebygget benyttes uten endringer

Plantegning

Tørkerom 720.0 m²

Etasje 1 720.0 m²

Rom Areal Vinduer Dører
Tørkerom 720.0 m² 6 1

Løk/korn tørke 720.0 m²

Etasje 1 720.0 m²

Rom Areal Vinduer Dører
Løk/korn tørke 101 720.0 m² 6 0

Fasader

Enebolig

Nord
Materiale
Tre
Taktype
Saltak
Vinduer
2
Dører
0
Synlige etasjer
2
Øst
Taktype
Saltak
Vinduer
2
Dører
0
Synlige etasjer
1
Sør
Materiale
Tre
Taktype
Saltak
Vinduer
2
Dører
1
Synlige etasjer
2

Hovedbygg

Vest
Taktype
Pulttak
Vinduer
0
Dører
0
Synlige etasjer
0

Hendelser

21.04.2026 Gbnr 80/1 - Pløyenvegen 34 - Bruksendring - Godkjenningsvedtak
27.03.2026 Gbnr 80/1 - Pløyenvegen 34 - Søknad om tiltak
11.03.2026 Gbnr 80/1 - Mottatt nabovarsel for Pløyenvegen 34 - Bruksendring - Østre Toten kommune