ChangeOfUse Rammetillatelse Naeringsbygg

Bruksendring, rehabilitering og påbygg i kulturhus, Rådhusgata 2, Kragerø

📍 Rådhusgata 2A , 3770 KRAGERØ

Nøkkelinfo

Sakstype
Bruksendring
Bygningstype
Naeringsbygg
Bruksareal
280 m²
Kommune
Kragerø
Fylke
Telemark
Gnr / Bnr
32 / 14
Saksnummer
2024/441
Fase
Rammetillatelse

Om byggesaken

Prosjektet omfatter bruksendring av 1. etasje i Rådhusgata 2 fra kontor til kafé, bar og arrangementslokaler med tilhørende kulturhusfunksjoner. Bygget har et samlet areal på ca. 280 m² i 1. etasje, med rom som kafé, bar/scene, lekerom, flerbruksrom, personalrom og lager. Det utføres også reetablering av forhage og oppføring av nytt skilt. Bygget er en del av et eldre bygg med kulturhistorisk verdi, og tiltaket inkluderer rehabilitering og påbygg. Branntekniske tiltak som fullsprinkling, brannalarmanlegg, rømningsveier og branncelleinndeling er dokumentert. Det er lagt vekt på å ivareta lyd- og støyforhold for naboer, samt å sikre adskilte soner for alkoholservering og familieaktiviteter. Prosjektet skal bidra til et attraktivt bymiljø og et inkluderende kulturtilbud for Kragerø.

Produkter og materialer

Fasade Kledning

🧱 Tre

Tre kledning med brannklasse K1-A og overflate B-s1,d0

Ytterkledning av tre med brannmotstand

Brannvern Røykventilering

Røykventilering av trapperom med luke eller vindu med fri åpning minimum 1,0 m²

Røykventilering for rømningsveier

Tak Saltak med teglstein

🧱 Teglstein

Saltak tekket med teglstein, brannklasse BROOF(t2)

Taktekking med teglstein

VVS Ventilasjon

Separate ventilasjonsanlegg i hver branncelle, materialklasse A2-s1,d0

Ventilasjonsanlegg med brannmotstand og automatisk full effekt ved brannalarm

Gulv Teglstein og parkett

🧱 Teglstein, eikeparkett

Bevaring av teglstein i kjeller, eikeparkett i oppholdsrom

Gulvflater med bevaring og nye overflater

Brannvern Rømningsdører

Rømningsdører med bredde minimum 150 cm, panikkbeslag, selvlukkere og brannmotstand EI30-EI60

Dører i rømningsveier og brannceller

Elektro Nødlys og ledelys

Ledesystem og nødlys i rømningsveier iht. NS 3926

Nødlys og ledelys for rømningsveier

Brannvern Sprinkleranlegg

Fullsprinkling av bygget iht. brannkonsept Rev 4 datert 16.04.2024

Sprinkleranlegg for brannsikring av hele bygget

Vinduer Fasadevindu

🧱 Tre

Antall: 22

Totalt 22 fasadevinduer i tre

Brannvern Brannalarmanlegg

Heldekkende brannalarmanlegg kategori 2 med optiske røykdetektorer og akustiske signalgivere

Brannalarmanlegg med alarmoverføring til brannvesenet

Trapper Innvendige trapper

Antall: 3

Tre innvendige trapper i bygget

Tømrer Innvendige vegger og himlinger

🧱 Gipsplater, kalsiumsilikatplater

Brannklassifiserte vegger og himlinger i brannceller

Innvendige konstruksjoner med brannmotstand

VVS Sanitærinstallasjoner

Toaletter og HC-toalett i 1. etasje og kjeller

Sanitærinstallasjoner tilpasset funksjonskrav

Grunnarbeid Fundament og drenering

Reetablering av forhage med dispensasjon fra veglova § 39

Grunnarbeid for forhage og uteområder

Dører Ytterdører

🧱 Tre

Antall: 6

Ytterdører i tre til ulike rom og innganger

Maling Innvendig maling

Maling av vegger og tak i henhold til branntekniske krav

Innvendige overflater med maling

Annet Skilt

Antall: 1

Nytt skilt over inngangsdør, ca. 0,4 x 1,6 m

Skilt tilpasset eksisterende bygning og bymiljø

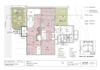
Plantegning

Kulturhus 167.2 m²

Etasje 1 167.2 m²

Rom Areal Vinduer Dører
Vindfang 1 10.2 m² 0 1
Kafé 2 78.4 m² 0 1
Lekerom 3 30.5 m² 0 1
Bar / scene 4 67.5 m² 0 1
Bøttekott 5 3.4 m² 0 1
Flerbruksrom 6 32.7 m² 0 1
Gang 7 10.2 m² 0 2
HC 8 6.4 m² 0 1
Personalrom 9 18.5 m² 0 1
Lager 10 4.2 m² 0 1
Forhage 11 48.8 m² 0 0
Bakgård 12 38.4 m² 0 0

Kjeller 60.0 m²

Etasje 0 60.0 m²

Rom Areal Vinduer Dører
Vinkkjeller / Klubblokale 001 33.5 m² 0 1
Toalett 002 1.5 m² 0 1
Gang 003 25.0 m² 0 2

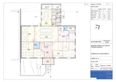
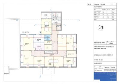
Hotell 277.0 m²

Etasje 1 277.0 m²

Rom Areal Vinduer Dører
Entre ENTRE 9.4 m² 0 1
Gang GANG 17.8 m² 0 2
Stue 1 STUE 1 46.2 m² 0 0
Stue 2 STUE 2 25.8 m² 0 1
Stue 3 STUE 3 21.6 m² 0 1
Kaffe KAFFE 34.5 m² 0 1
Pub PUB 44.9 m² 0 1
Kjøkken KJØKKEN 22.7 m² 0 1
WC WC 1.6 m² 0 1
HRWC HRWC 4.7 m² 0 1
Gard GARD 4.0 m² 0 1
Kjøling KJØL 2.8 m² 0 1
Lager LAGER 2.7 m² 0 1
Lager LAGER 4.1 m² 0 1
Stollager STOLLAGER 5.2 m² 0 1
Anretning ANRETTNING 2.0 m² 0 1
Løftebord LOFTEBORD 3.5 m² 0 1
Gang/Trapp GANG/TRAPP 6.7 m² 0 1

Kontorbygg 277.0 m²

Etasje 2 277.0 m²

Rom Areal Vinduer Dører
Kontor 1 2 3 1 34.9 m² 2 1
Stille / Møte 2 7.5 m² 1 1
Kontor 5 3 13.5 m² 1 1
Stue 4 23.8 m² 2 1
Kontor 6 5 13.6 m² 1 1
Kontor 7 6 23.6 m² 1 1
Kontor 8 7 24.0 m² 1 1
Kjøkken 8 9.9 m² 0 1
Rekvisita 9 9.3 m² 0 1
WC 10 1.9 m² 0 1
WC 11 2.0 m² 0 1
Server 12 3.4 m² 0 1
Kopi 13 5.2 m² 0 1
Korridor 14 38.5 m² 0 0
Møterom 15 19.6 m² 1 1
Lager 16 12.0 m² 1 1
Løftebord 17 3.5 m² 0 1

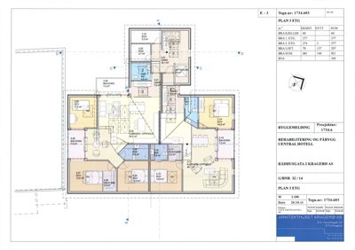
Central Hotell 305.0 m²

Etasje 3 305.0 m²

Rom Areal Vinduer Dører
Bod 3.19 5.5 m² 0 1
Bod 3.30 4.7 m² 0 1
Gang 3.21 18.1 m² 0 2
WC 3.23 4.6 m² 0 1
Gang 3.11 9.3 m² 0 1
Sov 3.28 11.6 m² 1 1
Balkong 3.29 7.0 m² 0 1
Sov 3.27 15.6 m² 1 1
Walk Inn 3.26 3.9 m² 0 1
Kjøkken / Opphold 3.22 52.2 m² 1 1
Bad 3.24 5.9 m² 0 1
Bad 3.16 3.8 m² 0 1
Bod/Gard 3.17 3.0 m² 0 1
Sov 3.14 14.6 m² 1 1
Balkong 3.18 7.0 m² 0 1
Kjøkken / Opphold 3.12 46.7 m² 1 1
Sov 3.15 13.6 m² 1 1
Løftebord 3.13 3.8 m² 0 1

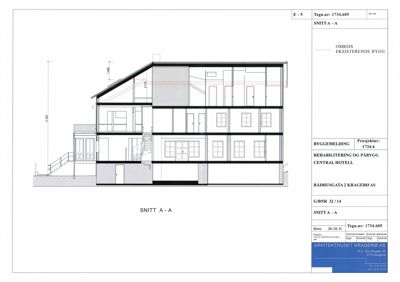
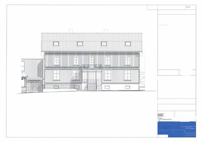
Fasader

Central Hotell

Nord - Øst
Materiale
Tre
Taktype
Saltak
Takmat.
Tegl
Vinduer
12
Dører
1
Balkonger
1
Synlige etasjer
3
Syd - Øst
Materiale
Tre
Taktype
Saltak
Takmat.
Tegl
Vinduer
10
Dører
3
Balkonger
1
Synlige etasjer
3

Hendelser

21.04.2026 Innvilget- Søknad om serverings- og skjenkebevilling - Centralen Kragerø
10.04.2026 Uttalelse - serverings- og skjenkebevilling - Centralen Kragerø AS
30.03.2026 Svar på Søknad om bevilling Centralen Kragerø AS 933027066
30.03.2026 Anmodning om uttalelse - Søknad om serverings- og skjenkebevilling - Centralen Kragerø AS
20.03.2026 Søknad om - Serverings- og skjenkebevilling - Centralen Kragerø AS
09.02.2026 Bekreftelse på opphør av skjenkebevilling - Centralen Kragerø
01.07.2025 Søknad om utvidelse av utendørs skjenketid - Centralen Kragerø
16.06.2025 Melding om vedtak- Søknad om utvidelse av utendørs skjenketid - Centralen Kragerø
27.05.2025 Uttalelse - utvidelse av skjenketid - Centralen Kragerø AS
19.05.2025 Anmodning om uttalelse- Søknad om utvidelse av skjenketid utendørs - Centralen Kragerø
16.05.2025 Søknad om utvidet skjenketid - Centralen Kragerø
14.10.2024 Godkjenning av ny stedfortreder - Centralen Kragerø AS
09.10.2024 Svar på Søknad om bevilling - Centralen AS
09.10.2024 Uttalelse - ny stedfortreder - Centralen Kragerø AS
08.10.2024 Anmodning om uttalelse- Søknad om ny stedfortreder - Centralen Kragerø AS
08.10.2024 Søknad om ny stedfortreder - Centralen Kragerø AS
25.07.2024 Godkjenning av ny daglig leder/styrer og stedfortreder - Centralen Kragerø AS
25.06.2024 Svar på Søknad om bevilling - Centralen Kragerø AS
24.06.2024 Uttalelse - ny daglig leder - styrer og stedfortreder - Centralen Kragerø AS
19.06.2024 Søknad om ny daglig leder og stedfortreder - Centralen Kragerø AS
19.06.2024 Anmodning om uttalelse- Søknad om endring av daglig leder, styrer og stedfortreder - Centralen Kragerø AS
03.06.2024 Melding om vedtak- Klagebehandling- Søknad om servering- og skjenkebevilling - Centralen Kragerø AS
22.05.2024 Klagebehandling- Søknad om servering- og skjenkebevilling - Centralen Kragerø AS
22.05.2024 Kommentar fra nabo til klage Centralen AS
21.05.2024 Innvilget- Søknad om utvidet skjenketid i forbindelse med arrangement 25.5.24 - Centralen Kragerø
13.05.2024 Søknad om dispensasjon om skjenketid lørdag 25.5.24
13.05.2024 Klage på vedtak om skjenkebevilling 18.04.24 - Centralen Kragerø AS
26.04.2024 Innvilget- Søknad om utvidet skjenketid i forbindelse med åpningsfest - Centralen Kragerø
26.04.2024 Melding om vedtak- Klagebehandling- Søknad om servering- og skjenkebevilling - Centralen Kragerø AS
17.04.2024 Klagebehandling- Søknad om servering- og skjenkebevilling - Centralen Kragerø AS
15.04.2024 Klage på formannskapets vedtak om skjenkebevilling
15.04.2024 Melding om vedtak- Søknad om servering- og skjenkebevilling - Centralen Kragerø AS
12.04.2024 Skriv fra naboer Rådhusgata 2 - Serverings- og skjenkebevilling - Centralen Kragerø AS
11.04.2024 Søknad om utviding av bevilling for 27.4.24
11.04.2024 Uttalelse ifb behandling av søknad om skjenkebevilgning Centralen AS 10.04.2024
03.04.2024 Søknad om servering- og skjenkebevilling - Centralen Kragerø AS
20.03.2024 Vedrørende - Klage på evnt skjenkebevilling Centralen
20.03.2024 Klage på evnt skjenkebevilling
11.03.2024 Vedlegg til skjenkesøknaden til Centralen
28.02.2024 Firmaattest
26.02.2024 Svar på søknad om bevilling - Centralen Kragerø AS
22.02.2024 Uttalelse - serverings og skjenkebevilling - Centralen Kragerø AS
20.02.2024 Uttalelse Centralen - SLT
20.02.2024 Redegjørelse skjenkebevilling - Svar på spm fra SLT
13.02.2024 Anmodning om uttalelse- Søknad om serverings og skjenkebevilling - Centralen Kragerø AS
07.02.2024 Spørsmål til søknadsprosess
02.02.2024 Uttalelse - serverings og skjenkebevilling - Centralen Kragerø AS
01.02.2024 Anmodning om uttalelse- Søknad om serverings og skjenkebevilling - Centralen Kragerø AS
01.02.2024 Anmodning om uttalelse- Søknad om serverings og skjenkebevilling - Centralen Kragerø AS
30.01.2024 Serverings- og skjenkebevilling - Centralen Kragerø AS