ChangeOfUse UnderBehandling Naeringsbygg

Bruksendring og hovedombygging til leiligheter i Røldalsvegen 18, Odda

📍 Røldalsvegen 18 , 5750 ODDA

Nøkkelinfo

Sakstype
Bruksendring
Bygningstype
Naeringsbygg
Bruksareal
208 m²
Boenheter
3
Kommune
Ullensvang
Fylke
Vestland
Gnr / Bnr
61 / 6
Saksnummer
2025/2721
Fase
Under behandling

Om byggesaken

Ombygging av 2. etasje i Hjørnabygget, et fem-etasjers næringsbygg fra 1955, fra butikklokale til tre leiligheter med tilhørende oppgradering av brannskiller, lydskiller, våtrom og fasade. Bygget har betongkonstruksjoner med enkelte trekonstruksjoner på loft, og omfattes av flere tidligere ombygginger. Det etableres nye tekniske rom, trapperom, og det monteres balkonger på eksisterende baldakin. Brannkonseptet følger TEK10 med enkelte dispensasjoner fra TEK17, og det planlegges oppgradering av brannalarmanlegg, ledesystem og rømningsveier. Arealet for leilighetene er ca. 208 m² BRA med god himlingshøyde. Tiltaket inkluderer også oppgradering av utvendig rømningsvei og brannsikring av konstruksjoner. Området er vurdert til å ikke ha risiko for områdeskred. Det foreligger dispensasjon fra regulert arealformål for bruksendring fra forretning/kontor til bolig.

Produkter og materialer

Gulv Gulvbelegg i rømningsvei

🧱 Dfl-s1

Gulv i rømningsvei med brannklasse Dfl-s1

Brannsikre gulvbelegg i rømningsveier

Annet Evakueringsplan og brannverndokumentasjon

Evakueringsplan skal utarbeides og oppdateres, brannverndokumentasjon skal foreligge før bruk

Dokumentasjon og rutiner for brannsikkerhet i driftsfasen

Vinduer Brannvindu

Brannklasse EI 60 for kjøkkenvindu i rom 334 mot rømningsvei

Brannklassifiserte vinduer i brannvegg mot nabo for å hindre brannsmitte

Dører Brannklassifiserte dører

Dører i brannskiller med EI 30C og EI 60 i tekniske rom

Brannklassifiserte dører i brannceller og trapperom

Tak Saltak

🧱 Trekonstruksjon

Eksisterende takkonstruksjoner i tre, oppgradert med stålbjelke R60

Eksisterende takkonstruksjoner opprettholdes med brannbeskyttelse av stålbjelke

Rekkverk Balkongrekkverk

🧱 Glass

Rekkverk på balkonger montert på eksisterende baldakin, dispensasjon fra arealformål Gatetun og Gang-/sykkelveg

Sikring av balkonger med glassrekkverk over regulert gatetun og gang-/sykkelveg

Fasade Fasadekledning og balkongrekkverk

🧱 Tre og glass

Fasadekledning hovedsakelig ubrennbar, balkongrekkverk i glass på eksisterende baldakin

Oppgradering av fasade med balkonger og brannsikring av fasadekledning

Brannvern Brannslanger og håndslokkere

Brannslanger i kjeller og 1. etasje, håndslokkere i tekniske rom og øvrige etasjer

Manuelt slokkeutstyr med tilhørende merking og vedlikehold

Elektro Elektrisk anlegg og brannalarmanlegg

Nytt elektrisk anlegg for kjeller til 2. etasje, brannalarmanlegg kategori 2 med direkte varsling til brannvesenet

Oppgradering av elektrisk anlegg og brannalarmanlegg for hele bygget

Grunnarbeid Geoteknisk vurdering

Geoteknisk rapport viser at området ikke er utsatt for kvikkleireskred eller områdeskredfare

Sikker grunn for tiltaket uten behov for spesielle fundamenteringstiltak

Trapper Innvendig trapp og utvendig rømningsstige

Antall: 1

Innvendig betongtrapp med steinlister, utvendig trapp med fri bredde 0,9 m, rømningsstige med repos i 3. og 4. etasje

Oppgradering av rømningsveier med ny trapp og stige for trygg evakuering

VVS Ventilasjon

Nytt ventilasjonsaggregat for butikk i kjeller og 1. etasje, individuelle enheter for leiligheter, brannspjeld EI 60 ved brann

Oppgradering av ventilasjonsanlegg med brannspjeld og separat ventilasjon for boenheter

Isolasjon Brannisolasjon av konstruksjoner

🧱 A2-s1,d0 ubrennbar isolasjon

Brannisolasjon av bærende stålbjelker og konstruksjoner til R60 og R90

Brannisolasjon for å oppnå nødvendig brannmotstand i bærende konstruksjoner

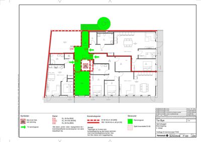
Plantegning

Brannkonsept 0.0 m²

Etasje 2 0.0 m²

Rom Areal Vinduer Dører
Teknisk rom 1 25.9 m² 0 1
Trapperom 2 15.2 m² 0 1
Gang 3 14.1 m² 0 2
Bad/WC 4 7.2 m² 0 1
Sov 5 12.1 m² 0 1
Sov 6 7.7 m² 0 1
Sov 7 3.7 m² 0 1
Stue/kjkken 8 25.4 m² 0 1
Sov 9 9.0 m² 0 1
Sov 10 12.4 m² 0 1
Sov 11 7.4 m² 0 1
Bad/WC 13 7.2 m² 0 1
Sov 14 12.1 m² 0 1
Sov 15 9.8 m² 0 1
Stue/kjkken 16 38.0 m² 0 1
Sov 17 6.9 m² 0 1
Sov 18 12.4 m² 0 1
Bad/WC 20 6.1 m² 0 1
Stue/kjkken 21 38.2 m² 0 1
Sov 22 9.8 m² 0 1
Sov 23 12.4 m² 0 1
Gang 25 14.1 m² 0 2
Bad/WC 26 6.1 m² 0 1
Room 27 1.7 m² 0 1
Gang 28 14.1 m² 0 2

Hjørnabygget 0.0 m²

Etasje 1 0.0 m²

Rom Areal Vinduer Dører
Stue 101 0.0 m² 0 0
Kjøkken 102 0.0 m² 0 0
Spisestue 103 0.0 m² 0 0
Gang 104 0.0 m² 0 0
Bad 105 0.0 m² 0 0
Toalett 106 0.0 m² 0 0
Vaskerom 107 0.0 m² 0 0
Teknisk rom 108 0.0 m² 0 0
Trapp 109 0.0 m² 0 0
Lift 110 0.0 m² 0 0
Brannvesen 111 0.0 m² 0 0

Fasader

Hjørnabygg

Vest
Materiale
Tre
Taktype
Saltak
Vinduer
6
Dører
2
Balkonger
2
Synlige etasjer
3
Øst
Materiale
Betong
Taktype
Saltak
Vinduer
22
Dører
2
Synlige etasjer
2

Enebolig

Nord
Materiale
Tre
Taktype
Saltak
Vinduer
14
Dører
1
Balkonger
1
Synlige etasjer
3

Hendelser

16.04.2026 Bruksendring og hovedombygging - Gnr. 61 bnr. 6 - Røldalsvegen 18 - Ullensvang kommune
26.03.2026 Uttale - dispensasjon - Ullensvang 61/6 - Røldalsvegen 18 - bruksendring m.m.
23.03.2026 Anmodning om uttale - Gnr. 61, bnr. 6 - Røldalsvegen 18
23.03.2026 E-post til ansvarlig søker - behov for dispensasjoner
20.03.2026 Ettersendelse - SAK 25-2721 - Røldalsvegen 18 - søknad om dispensasjon
20.03.2026 Statens vegvesen - Uttale
18.03.2026 Gnr. 61, bnr. 6 - Røldalsvegen 18 i Odda - Samtykke til bygging av balkong over statleg veggrunn
13.03.2026 Anmodning om uttale til søknad om dispensasjon - Gnr. 61, bnr. 6 - Røldalsvegen 18
13.03.2026 Tilbakemelding om mangler - Gnr. 61, bnr. 6 - Røldalsvegen 18
12.01.2026 Mangelbrev og orientering om politisk behandling - Gnr. 61, bnr. 6 - Røldalsvegen 18
04.12.2025 Gnr. 61, bnr. 6 - Røldalsvegen 18, 5750 Odda - Ettersendelse - SAK 25-2721
24.10.2025 Beslutning om utsatt frist for supplering - Gnr. 61, bnr. 6 - Røldalsvegen 18
23.10.2025 Gnr. 61, bnr. 6 - Røldalsvegen 18 - ber om utsetting av frist til 30.11.2025
06.10.2025 Foreløpig tilbakemelding - Gnr. 61, bnr. 6 - Røldalsvegen 18
24.06.2025 Gnr. 61, bnr. 6 - Røldalsvegen 18, 5750 Odda - Søknad om bruksendring og rammetillatelse - ombygging