ChangeOfUse Ferdigattest Naeringsbygg

Bruksendring til bibliotek i Håkon Kyllingmarks gate 6, Svolvær

πŸ“ Sivert Nilsens gate 26 , 8300 SVOLVÆR

NΓΈkkelinfo

Sakstype
Bruksendring
Bygningstype
Naeringsbygg
Bruksareal
491 mΒ²
Kommune
Vågan
Fylke
Nordland - Nordlánnda
Gnr / Bnr
18 / 13
Saksnummer
25/2585
Fase
Ferdigattest

Om byggesaken

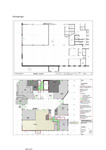
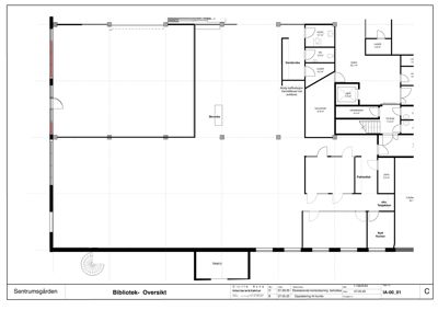
Ombygging av butikklokaler i Sentrumsgården, Håkon Kyllingmarks gate 6, til bibliotek med et samlet areal på ca. 491 m². Prosjektet inkluderer riving og oppføring av skillevegger, endring av inngangsparti med ny dør, nytt gulvbelegg, garderobe for besøkende, montering av akustikkplater i himling, oppmaling av vegger og tak, samt ombygging av ventilasjon, elektro, sprinkler, vann- og sanitæranlegg. Bygget er et næringsbygg med brannalarmanlegg og sprinkling, og tiltaket omfatter også tilpasning av tekniske installasjoner og branntekniske tiltak i henhold til gjeldende forskrifter. Biblioteket har flere rom som kontorer, lager, WC, HCWC, heis og tekniske rom, med totalt 1 trapp og mange dører. Parkering og universell utforming er ivaretatt i henhold til krav.

Produkter og materialer

Tak Akustikkplater i himling

🧱 Lydabsorberende plater

Lydisolerende plater montert i himling for å redusere etterklang og støy

Akustiske tiltak i bibliotekets arbeidsområder

Dører Brannklassifiserte dører

Dører med brannmotstand EI2 60-Sa, E 30-CSa, EI2 30-Sa iht. brannkonsept

Nye og eksisterende dører i brannskiller og rømningsveier med angitt brannmotstand

Vinduer Glassfasader

🧱 Glass

Nye innvendige glassfasader mot fellesarealer i plan 1

Glassfasader i bibliotekets fellesarealer

Garderobe Garderobe for besøkende

Antall: 1

Garderobe med mulighet for oppheng av klær

Nytt garderobeareal for bibliotekets besøkende

Ventilasjon Ombygging av eksisterende ventilasjonsanlegg

Ventilasjonsanlegg tilpasses ny planløsning, materialer i klasse A2-s1,d0

Ombygging og tilpasning av ventilasjon for biblioteket

Sprinkler Ombygging av sprinkleranlegg

Sprinkleranlegg tilpasses ny planløsning iht. NS-EN 12845

Sprinkleranlegg for brannsikring av biblioteket

Elektro Belysning og installasjoner

Elektroarbeider med installasjoner og belysning tilpasset ny bruk

Elektriske installasjoner i biblioteket

Gulv Nytt gulvbelegg

Nytt gulvbelegg i ny del av biblioteket

Legging av nytt gulvbelegg i ombygde arealer

Grunnarbeid Parkering og uteareal

Parkering i henhold til kommunedelplan, 0,8 bilplasser og 3 sykkelplasser pr 100 m² BRA

Parkering for besøkende og ansatte ved biblioteket

Heis Heis og heismaskinrom

Antall: 1

Eksisterende heis og heismaskinrom i bibliotekets område

Heisinstallasjon for tilgjengelighet

Maling Oppmaling av vegger og tak

Oppmaling i bibliotekets lokaler

Overflatebehandling av vegger og tak

Tømrer Innvendige tømrerarbeider

Innvendige tømrerarbeider inkludert endring av brannskille

Oppføring og riving av skillevegger og andre tømrerarbeider

Fasade Inngangsparti med ny dør

Antall: 1

Endring av inngangsparti med ny dør

Ny dør i inngangsparti som del av bruksendringen

VVS Vann- og sanitærarbeider

Vann- og sanitæranlegg tilpasses ny bruk og planløsning

Sanitærinstallasjoner i biblioteket

Hendelser

13.04.2026 Håkon Kyllingmarks gate 6 Søknad om ferdigattest 18/13
20.02.2026 Supplering BRA - Tillatelse til tiltak - bruksendring av butikklokaler til bibliotek - gbn 18/13, Håkon Kyllingmarks gate 6
05.02.2026 Tillatelse til tiltak - bruksendring av butikklokaler til bibliotek - gbn 18/13, Håkon Kyllingmarks gate 6
22.12.2025 Håkon Kyllingmarks gate 6 Supplering av søknad 18/13
04.11.2025 25/2585-4 Håkon Kyllingmarks gate 6 Supplering av søknad 18/13
03.11.2025 Håkon Kyllingmarks gate 6 Supplering av søknad 18/13
23.10.2025 Tilbakemelding om mangler - Bruksendring av butikklokaler til bibliotek - gbn 18/13 Håkon Kyllingmarks gate 6
30.09.2025 Håkon Kyllingmarks gate 6 Søknad om tillatelse i ett trinn 18/13
22.09.2025 Vi innvilger søknaden om samtykke etter automatisk saksbehandling