ChangeOfUse UnderBehandling Naeringsbygg

Bruksendring til 3 omsorgsboliger i Skolegata 12, Kristiansund

📍 Skolegata 12 , 6509 KRISTIANSUND N

Nøkkelinfo

Sakstype
Bruksendring
Bygningstype
Naeringsbygg
Bruksareal
168 m²
Boenheter
3
Kommune
Kristiansund
Fylke
Møre og Romsdal
Gnr / Bnr
6 / 110
Saksnummer
26/01206
Fase
Under behandling

Om byggesaken

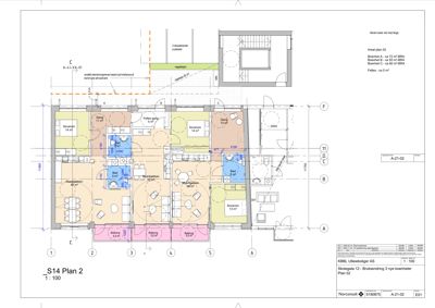
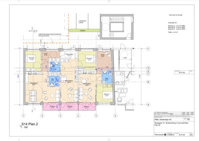
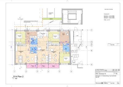
Bruksendring av eksisterende næringsbygg i Skolegata 12 til tre omsorgsboliger på plan 2 med totalt ca. 168 m² BRA. Prosjektet omfatter innvendig ombygging med nye planløsninger for boenheter, inkludert soverom, bad, stue/kjøkken, felles gangarealer og balkonger. Bygget er en betongkonstruksjon fra 1950-tallet med gjenreisningsarkitektur, og fasaden mot sør/gågata opprettholdes med rehabiliterte vinduer og dører i tråd med eksisterende uttrykk. Det etableres balansert ventilasjon, og det planlegges lydisolerte vinduer for å møte støyutfordringer fra nærliggende vei. Utearealer består av private balkonger mot sør og felles uteplass i bakgård mot nord. Det søkes dispensasjon fra krav til parkering, lekeplass, felles uteoppholdsareal og byggegrenser. Tiltaket inkluderer også brannskille og bærekonstruksjoner som berøres.

Produkter og materialer

Dører Ytterdører i rehabilitering

Rehabilitering og utskifting av ytterdører i yttervegg i tråd med gjenreisningsarkitekturens uttrykk

Ytterdører som opprettholder byggets karakter og sikrer god isolasjon og funksjonalitet

Balkong Private balkonger

Antall: 3

Eksisterende balkonger gjenbrukes som private uteplasser, ca. 4-5,5 m² hver, støyutsatt side

Private balkonger for hver boenhet som uteoppholdsareal

Uteareal Felles uteoppholdsareal

Felles uteareal i bakgård mot nord på ca. 20 m², avgrenset med gjerde mot biltrafikk

Felles uteoppholdsareal for beboerne med skjerming mot trafikk og støy

Brannvern Brannskille

Brannskille som berøres og skal oppgraderes i forbindelse med bruksendring

Brannsikkerhetstiltak i henhold til gjeldende regelverk

Grunnarbeid Adkomst og uteområder

Opparbeidelse av uteareal i bakgård med gjerde og trafikksikker adkomst

Grunnarbeid for utearealer og adkomst til boenheter

Tømrer Innvendig ombygging

Innvendig ombygging med nye vegger, skillevegger og rehabilitering av bærekonstruksjoner

Tømrerarbeid for tilpasning av planløsning til omsorgsboliger

Elektro Brannalarmanlegg

Prosjektering og installasjon av brannalarmanlegg i tiltaket

Brannsikkerhetstiltak i samsvar med krav

Fasade Rehabilitering av fasade

🧱 Betong

Fasade mot sør/gågata opprettholdes med rehabiliterte vinduer og dører, i tråd med gjenreisningsarkitektur

Bevaring av byggets karakter og arkitektur i hensynssone for gjenreisningsbebyggelse

Sanitær Sanitærinstallasjoner

Prosjektering og montering av sanitærinstallasjoner i omsorgsboliger

Sanitærinstallasjoner for nye boenheter

Isolasjon Etterisolering

Bygget er tidligere etterisolert på utsiden, ingen ytterligere isolasjon av klimaskall planlagt

Isolasjon i yttervegger i henhold til tidligere tiltak

Ventilasjon Balansert ventilasjon

Balansert ventilasjon med tilstrekkelig luftmengde iht. TEK17 §13-2, ledd 2, min. 26 m3/h pr sengeplass

Ventilasjonssystem for å sikre god luftkvalitet og kompensere for begrenset mulighet for lufting via vinduer

Vinduer Lyddempet vindu

Vinduer med lyddempet lufteløsning (dempet fasade) for soverom i leilighet C mot støyutsatt side, standard isolerglass for øvrige vinduer

Vinduer med god lydisolasjon for å oppfylle krav til innendørs støynivå og støyreduksjon på fasade

Fasader

Bruksleiligheter

Sør
Materiale
Betong
Taktype
Saltak
Vinduer
14
Dører
1
Synlige etasjer
3
Nord
Materiale
Betong
Taktype
Saltak
Vinduer
10
Dører
1
Balkonger
6
Synlige etasjer
3

Hendelser

16.04.2026 26/01206-15 Skolegata 12 - Uttalelse fra Kommunalteknikk - oversendes
16.04.2026 26/01206-14 Skolegata 12, Uttalelse fra Kommunalteknikk til søknad om bruksendring, dispensasjon og unntak
13.04.2026 26/01206-13 Skolegata 12 - Vi trenger flere opplysninger for å behandle søknaden – varsel om avslag på søknad
10.04.2026 26/01206-12 Skolegata 12 - Oversendelse av innkomne uttalelse fra høringsparter i saken
10.04.2026 26/01206-11 Skolegata 12 - Høringssvar
10.04.2026 26/01206-10 Skolegata 12 - Høringssvar
08.04.2026 26/01206-9 Skolegata 12, Bruksendring - Anmodning om tilleggsdokumentasjon
27.03.2026 26/01206-8 Skolegata 12 - Uttalelse
24.03.2026 26/01206-7 Uttalelse til dispensasjon fra krav til lekeplass
12.03.2026 26/01206-5 Skolegata 12, Anmodning om uttalelse til søknad om bruksendring, dispensasjon og unntak
12.03.2026 26/01206-6 Oversendelse for uttalelse - dispensasjon fra krav til lekeplass
10.03.2026 26/01206-4 Skolegata 12 - Supplering av søknad