ChangeOfUse Rammetillatelse Naeringsbygg

Bruks- og fasadeendringer på næringsbygg i Sponesveien 1, Mysen

📍 Sponesveien 1 , 1850 MYSEN

Nøkkelinfo

Sakstype
Bruksendring
Bygningstype
Naeringsbygg
Bruksareal
2,670 m²
Kommune
Indre Østfold
Fylke
Østfold
Gnr / Bnr
330 / 16
Saksnummer
2025/7544
Fase
Rammetillatelse

Om byggesaken

Tiltaket omfatter modernisering og ombygging av eksisterende næringsbygg på eiendommen Sponesveien 1 i Mysen, med totalt ca. 2670 m² bygningsareal. Det inkluderer bruksendring av deler av lager til verksted, fasadeendringer, mindre påbygg og interne tilpasninger. Verkstedfunksjonen flyttes internt på eiendommen, lenger bort fra boligområder. Utomhusområdet tilpasses for bedre intern trafikkavvikling, økt trafikksikkerhet og arbeidsmiljø. Det etableres også løsninger for overvannshåndtering. Tiltaket innebærer ikke etablering av ny virksomhet eller vesentlig utvidelse, men videreføring og modernisering av eksisterende, lovlig etablert næringsvirksomhet. Det gis dispensasjon fra gjeldende reguleringsplan som regulerer området til boligbebyggelse, konsentrert småhusbebyggelse, samt fra krav om detaljregulering og felles planlegging. Tiltaket vurderes ikke å vanskeliggjøre fremtidig transformasjon til boligformål.

Produkter og materialer

Fasade Betongfasade med saltak

🧱 Betong

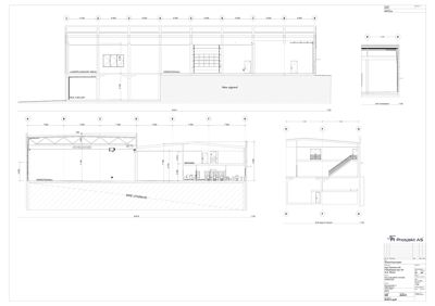
Fasader i betong, gesimshøyde ca. 9,9 m, saltak på verkstedbygget

Oppgradering og vask/maling av fasader, samt påbygg på verksted med saltak

Ventilasjon Ventilasjon og varme

Teknisk rom for ventilasjon, varme, kompressor mv.

Tekniske installasjoner for ventilasjon og varme i verksted

VVS Oljeutskilleranlegg

Antall: 1

Odin UK-SR NS 12 med Odin ZS-SR sandfang, kapasitet 12 l/s, koalesensfilter og oljealarm

Etablering av oljeutskilleranlegg for verkstedavløp

Geoteknikk Områdestabilitet vurdering

Geoteknisk rapport viser stabile løsmasser, ikke i faresone for kvikkleireskred

Vurdering av grunnforhold og stabilitet for tiltaket

Utomhus Utomhusplan og terrengtilpasning

Tilpasning av utearealer for bedre intern trafikkavvikling, overvannshåndtering med fordrøyning og infiltrasjon, grønn buffersone mot nabo

Endringer i utearealer for trafikksikkerhet, HMS og miljøtilpasning

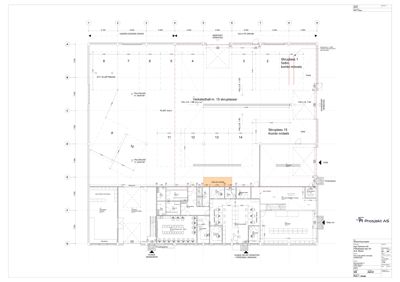
Bruksendring Lager til verksted

Bruksendring av deler av lager til verksted med 15 skruplasser, oljeutskilleranlegg

Ombygging av eksisterende lager til verksted med tilhørende tekniske installasjoner

Grunnarbeid Terrengjustering og fylling

🧱 Fyllmasser

Begrensede terrengjusteringer for intern adkomst og funksjon, ikke i faresone for kvikkleire

Terrengtilpasninger for funksjonell intern trafikk og adkomst

Elektro Trafo og elektriske installasjoner

Trafo og tekniske installasjoner i bygget

Elektriske anlegg for verksted og butikk

Dører Porter og dører

Hovedport og sideport til verksted, dører til kontorer og lager

Adkomst og sikkerhetsdører i verksted og lager

Tømrer Påbygg og ombygging

🧱 Trekonstruksjoner

Påbygg på verkstedbygget for å ivareta krav til løfteinnretning (traverskran), mønehøyde 9,9 m

Bygningsmessige endringer og påbygg

Gulv Gulv på grunn

Betonggulv med fall og rist for vaskehall og verksted

Gulv med fall og drenering i vaskehall og verksted

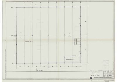
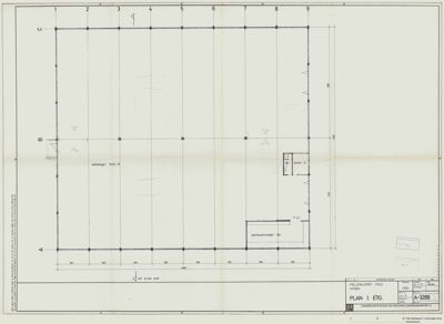
Plantegning

Lager 2,670.0 m²

Etasje 0 730.0 m²

Rom Areal Vinduer Dører
Maskinskur MASKINSKUR 730.0 m² 0 0
WC WC 0.0 m² 0 1
Tilfluktsrom TILFLUKTSROM 37.0 m² 0 1
Maskinskur 730 73.0 m² 3 1
Innlokkrom 37 37.0 m² 0 1

Etasje 1 1,940.0 m²

Rom Areal Vinduer Dører
Lager 101 1,940.0 m² 0 0
Kontor 102 12.0 m² 0 1
Vc 103 0.0 m² 0 1
Plantevernmidler 104 0.0 m² 0 0

Verksted 312.3 m²

Etasje 1 312.3 m²

Rom Areal Vinduer Dører
Inngang 1 0.0 m² 0 1
Skruplass 2 2 0.0 m² 0 0
Skruplass 3 3 0.0 m² 0 0
Skruplass 4 4 0.0 m² 0 0
Skruplass 5 5 0.0 m² 0 0
Skruplass 6 6 0.0 m² 0 0
Skruplass 7 7 0.0 m² 0 0
Skruplass 8 8 0.0 m² 0 0
Skruplass 9 9 0.0 m² 0 0
Skruplass 10 10 0.0 m² 0 0
Skruplass 11 11 0.0 m² 0 0
Skruplass 12 12 0.0 m² 0 0
Skruplass 13 13 0.0 m² 0 0
Skruplass 14 14 0.0 m² 0 0
Skruplass 15 15 0.0 m² 0 0
Vask 16 0.0 m² 0 0
Forskraperis 17 0.0 m² 0 0
Deler inn 18 0.0 m² 0 0
Kunde deler verksted 19 0.0 m² 0 0
Kunde smamaskin 20 0.0 m² 0 0
Olje-sel område 21 0.0 m² 0 0
Sideport 22 0.0 m² 0 0
Hovedport 23 0.0 m² 0 0

Fasader

Verksted

Nord
Materiale
Betong
Høyde
9.9 m
Vinduer
2
Dører
1
Synlige etasjer
1
Sør
Materiale
Betong
Høyde
9.9 m
Vinduer
10
Dører
1
Synlige etasjer
1
Øst
Materiale
Betong
Taktype
Saltak
Høyde
9.9 m
Vinduer
2
Dører
1
Synlige etasjer
1
Vest
Materiale
Betong
Taktype
Saltak
Høyde
9.9 m
Vinduer
2
Dører
0
Synlige etasjer
1
Syd
Vinduer
0
Dører
0
Synlige etasjer
1

Hendelser

17.04.2026 Gbnr 330/16 - Sponesveien 1 - Supplerende vurdering fra bygningsmyndigheten
15.04.2026 Gbnr 330/16 - Sponesveien 1 - Bruks- og fasadeendringer - Oversender nye merknader til kommunen
05.03.2026 Gbnr 330/16 - Sponesveien 1 - Rammesøknad - Bruks- og fasadeendringer - Bekreftelse på mottatt henvendelse
04.03.2026 Gbnr 330/16 - Sponesveien 1 - Bruks- og fasadeendringer - Forbedrende klagebehandling
18.02.2026 Gbnr 330/16 - Sponesveien 1 - Merknader til klage på vedtak om rammetillatelse
03.02.2026 Gbnr 330/16 - Sponesveien 1 - Rammesøknad - Bruks- og fasadeendringer - Bekreftet mottatt klage
03.02.2026 Gbnr 330/16 - Sponesveien 1 - Rammesøknad - Bruks- og fasadeendringer - Uttalelse til klage
23.01.2026 Gbnr 330/16 - Sponesveien 1 - Rammesøknad - Bruks- og fasadeendringer - Klage på dispensasjon og rammetillatelse
22.01.2026 Gbnr 330/16 - Sponesveien 1 - Rammesøknad - Bruks- og fasadeendringer - Klage på dispensasjon og rammetillatelse
29.12.2025 Gbnr 330/16 - Sponesveien 1 - Rammesøknad - Bruks- og fasadeendringer - Utsatt klagefrist
19.12.2025 Gbnr 330/16 - Sponesveien 1 - Ber om utsatt klagefrist
18.12.2025 Gbnr 330/16 - Sponesveien 1 - Henvendelse vedrørende saksgang
18.12.2025 Gbnr 330/16 - Sponesveien 1 - Bruks- og fasadeendringer - Rammetillatelse
11.12.2025 Gbnr 330/16 - Sponesveien 1 - Supplering av søknad
03.12.2025 Gbnr 330/16 - Sponesveien 1 - Rammesøknad - Bruks- og fasadeendringer - Ber om deres kommentarer til nabomerknader
01.12.2025 Gbnr 330/16 - Sponesveien 1 - Merknader til søknad om rammetillatelse og dispensasjon
28.11.2025 Gbnr 330/16 - Sponesveien 1 - Tileggsmerknader til dispensasjonssøknad
28.11.2025 Gbnr 330/16 - Sponesveien 1 - Søknad om rammetillatelse og dispensasjon
20.11.2025 Gbnr 330/16 - Sponesveien 1 - Nytt brev vedrørende søknad om rammetillatelse og dispensasjon - Ber om bekreftelse på mottatt
19.11.2025 Gbnr 330/16 - Sponesveien 1 - Merknader til søknad om rammetillatelse og dispensasjon
16.10.2025 Gbnr 330/16 - Sponesveien 1 - Supplering av søknad
09.10.2025 Gbnr 330/16 - Sponesveien 1 - Supplering av søknad
11.09.2025 Gbnr 330/16 - Sponesveien 1 - Søknad om rammetillatelse for bruks- og fasadeendringer