ChangeOfUse UnderBehandling Naeringsbygg

Bruksendring og rehabilitering av næringsbygg i Stockfleths gate 1B, Sandefjord

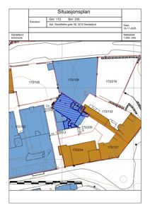
📍 Stockfleths gate 1B , 3210 SANDEFJORD

Nøkkelinfo

Sakstype
Bruksendring
Bygningstype
Naeringsbygg
Bruksareal
525 m²
Kommune
Sandefjord
Fylke
Vestfold
Gnr / Bnr
172 / 235
Saksnummer
2025/39283
Fase
Under behandling

Om byggesaken

Bygget i Stockfleths gate 1B er et tidligere produksjonsbygg som er ombygget og rehabilitert til treningssenter over to etasjer med totalt ca. 525 m². Bygningen har bærekonstruksjoner i stål, betong og mur, med yttervegger i mur (siporex) og bindingsverk, samt fasadeflater med puss, trepanel og tegl. Taket er skråtak med trebjelker og I-bjelkelag, isolert med 200-250 mm isolasjon. Det er etablert trinnfri adkomst, universell utforming, balansert ventilasjon med varmegjenvinning, energieffektive vinduer og dører, samt brannalarmanlegg og nødlys. Innvendig er det treningssal, spinningsal, kursrom, garderober, dusj- og toalettfasiliteter, tekniske rom og personalrom. Fasaden er estetisk oppgradert med lyse murflater og markeringer rundt vinduer. Bygget er godkjent for bruk som treningssenter med 17 ansatte og har fått samtykke fra Arbeidstilsynet for arbeidsmiljøkrav. Det er gjennomført omfattende brannsikkerhetsprosjektering med fravik fra enkelte preaksepterte løsninger, og det foreligger ansvarserklæringer og kontrollplaner for alle relevante fagområder.

Produkter og materialer

Dører Rømningsdør

Fri bredde 1,1 m på to dører, 1,16 m på andre, dører med brannklassifisering EI2 30-Sa, utadslående i rømningsretning

Rømningsdører med tilstrekkelig bredde og brannmotstand

Maling Innvendig og utvendig maling

Overflatebehandling av fasader og innvendige flater, ikke detaljert spesifisert

Maling og overflatebehandling

Balkong Balkong med kuldebrobryter

Antall: 1

Balkong med innfestning som tar hensyn til kuldebrobryter

Balkong med isolerte innfestninger

Tak Skråtak med isolasjon

🧱 Trebjelker, I-bjelker, 200-250 mm isolasjon

Eksisterende tak med 200 mm isolasjon, nytt tak med 250 mm isolasjon, brannmotstand R30

Isolert takkonstruksjon med brannmotstand

Varmepumpe Luft-luft varmepumper

Varmeanlegg basert på luft-luft varmepumper og elektriske panelovner

Energieffektiv oppvarming uten fossilt brensel

Trapper Utvendig rømningsstige/trapp

Antall: 1

Utvendig trapp fra 2. etasje som rømningsvei

Utvendig rømningsvei via trapp

Elektro Brannvarsling og nødlys

Brannalarmanlegg kategori 2, nødlys iht. NS-EN 1838, høytsittende elektrisk ledesystem

Brannvarsling og nødlys for sikker evakuering

Tømrer Innvendige bygningsmessige arbeider

Ombygging og rehabilitering av innvendige rom, vegger, tak og gulv, utført av Naphaug Vedlikehold

Innvendige tømrerarbeider for treningssenter

Elektro Brannvarsling og nødlys

Brannalarmanlegg kategori 2, nødlys iht. NS-EN 1838, høytsittende elektrisk ledesystem

Brannvarsling og nødlys for sikker evakuering

Isolasjon Ytterveggsisolasjon

🧱 50 mm utvendig hard isolasjon, 148+48 mm stenderverksisolasjon

Isolasjon i yttervegger med gjennomsnittlig U-verdi 0,32 W/m2K, delvis fravik fra TEK17 minstekrav

Isolasjon i yttervegger med dokumentert energiytelse

Brannvern Brannvegg og branncellebegrensende konstruksjoner

🧱 Mur, betong, brannklassifiserte dører og tetting

Brannvegg REI 120-M, branncellebegrensende vegger EI 30, dører EI2 30-Sa, branntetting av sjakter

Brannsikring av bygg med brannvegger og brannceller

VVS Balansert ventilasjon med varmegjenvinning

Antall: 2

Ventilasjonsaggregat i hver etasje med varmegjenvinning, varmebatteri, luftmengde 8 m3/m2h, virkningsgrad 85%

Energieffektiv ventilasjon med varmegjenvinning

Ventilasjon Balansert ventilasjon med varmegjenvinning

Antall: 2

Ventilasjonsaggregater med varmebatteri, luftmengde 8 m3/m2h, virkningsgrad 85%

Ventilasjonsanlegg for inneklima og energibesparelse

Fasade Mur og puss med trepanel og tegl

🧱 Siporex mur, puss, trepanel, tegl

Yttervegger i mur (siporex) med 50 mm isolasjon utvendig, bindingsverk, fasadeflater med puss, trepanel og tegl

Isolert og estetisk oppgradert fasade

Brannvern Manuelt slokkeutstyr

🧱 Brannslanger NS-EN 671-1, håndslokkere min. 6 kg ABC pulver eller 9 liter skum/vann

Plassert slik at alle rom dekkes, tydelig merket og lett tilgjengelig

Manuelt slokkeutstyr for effektiv brannslokking

Gulv Betongdekke

🧱 Betong

Gulv på grunn og dekke over plan 1 i betong med U-verdi 0,12 W/m2K

Isolert betonggulv med god varmeisolasjon

Vinduer Fasadevindu

Vinduer med U-verdi 1,2 W/m2K, 3-lags glass, brannmotstand anbefalt EI30 ved utskiftning i brannvegg

Energieffektive vinduer med god isolasjon og brannmotstand

Grunnarbeid Tomtearbeid og fundamentering

Eksisterende fundamenter og grunnforhold dokumentert, ikke spesifisert i detalj

Grunnarbeid for eksisterende bygning

Isolasjon Takisolasjon

🧱 200-250 mm isolasjon, ubrennbar A2-s1,d0

Isolasjon i tak med brannmotstand og isolasjonstykkelse iht. TEK17

Brannsikker takisolasjon

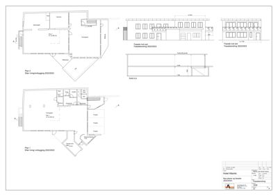
Plantegning

Hotel Atlantic 525.0 m²

Etasje 1 240.0 m²

Rom Areal Vinduer Dører
Treningssal 101 240.0 m² 0 0
Spiserom/kontor 102 7.0 m² 0 1
Teknisk rom/lager 103 19.0 m² 0 1
WC 104 0.0 m² 0 1
WC/dusj 105 0.0 m² 0 1
HCWC 106 0.0 m² 0 1
Dusj 107 0.0 m² 0 1
Bod/vent-rom 108 0.0 m² 0 1
Bod 109 0.0 m² 0 1
Garderobe 110 0.0 m² 0 1
Garderobe 111 0.0 m² 0 1
P-plass 112 0.0 m² 0 0
P-plass 113 0.0 m² 0 0
P-plass 114 0.0 m² 0 0

Etasje 2 285.0 m²

Rom Areal Vinduer Dører
Treningssal 201 0.0 m² 0 0
Spinningsal 202 0.0 m² 0 0
Kursrom 203 0.0 m² 0 0
Vent. 204 0.0 m² 0 0
Takterasse 205 0.0 m² 0 0
Tak 206 0.0 m² 0 0
Balcony 207 0.0 m² 0 0

Hendelser

21.04.2026 Gbnr 172/235 - Stockfleths gate 1B - Søknad om bruksendring - Avventer
17.02.2026 SV: Gbnr 172/235 - Stockfleths gate 1B - Søknad om bruksendring - Ny foreløpig tilbakemelding
17.02.2026 Re: Gbnr 172/235 - Stockfleths gate 1B - Søknad om bruksendring - Ny foreløpig tilbakemelding
08.01.2026 Gbnr 172/235 - Stockfleths gate 1B - Søknad om bruksendring - Ny foreløpig tilbakemelding
05.01.2026 Gbnr 172/235 - Stockfleths gate 1B - Søknad om bruksendring - Nabovarsling
24.12.2025 Gbnr 172/235 - Stockfleths gate 1B - Søknad om bruksendring - Foreløpig tilbakemelding
19.12.2025 Gbnr 172/235 - Stockflethsgate 1b - Tilleggsdok.03 Søknad om godkjenning av bruksendring,rehabilitert og ombygget næringsbygg,
19.12.2025 Gbnr 172/235 - Stockfleths gate 1B - Vi innvilger søknaden om samtykke etter automatisk saksbehandling
09.12.2025 Gbnr 172/235 - Stockfleths gate 1B - Bruksendring - Tilleggsdok.02
08.12.2025 Gbnr 172/235 - Stockfleths gate 1B - Søknad om bruksendring - Tilleggsdok.01
08.12.2025 Gbnr 172/235 - Stockfleths gate 1B - Søknad om bruksendring - Tilleggsdok.01
08.12.2025 Gbnr 172/235 - Stockfleths gate 1B - Søknad om bruksendring