ChangeOfUse UnderBehandling Naeringsbygg

Bruksendring til hybelhus i næringsbygg, Strandaveien 264

📍 Strandaveien 264 , 7740 STEINSDALEN

Nøkkelinfo

Sakstype
Bruksendring
Bygningstype
Naeringsbygg
Bruksareal
240 m²
Kommune
Osen
Fylke
Trøndelag - Trööndelage
Gnr / Bnr
14 / 233
Saksnummer
2025/533
Fase
Under behandling

Om byggesaken

Bruksendring av deler av 2. etasje i et eksisterende næringsbygg på ca. 240 m² BRA fra kontorlokaler til soverom/oppholdsrom for leiearbeidere og lærlinger. Lokalene har tidligere vært brukt som soverom og inneholder garderober, kjøkken og oppholdsrom. Rominndelingen endres ikke, og det skal ikke utføres fysiske bygningsmessige endringer. Bygget har balansert ventilasjon, flere nødutganger og alle rom har vindu ut mot det fri. Brannkonsept er utarbeidet med tiltak som seriekoblede detektorer, oppgradert ledelys, pulverapparater i hvert rom og reviderte IK-rutiner. Eiendommen ligger i 100-metersbeltet langs sjøen og er avsatt til næringsvirksomhet i kommuneplanen, og det er gitt dispensasjon for bruksendringen. Tiltaket legger til rette for effektiv drift ved å tilby nært bosted for pendlerarbeidere uten behov for fast bopel.

Produkter og materialer

Grunnarbeid Eksisterende grunn og fundament

Ingen endringer i grunn eller fundament, eksisterende bygg benyttes

Ingen nye grunnarbeider nødvendig

Annet IK-rutiner

Revidere og utarbeide internkontrollrutiner tilpasset ny bruk

Rutiner for brannsikkerhet og drift

Elektro Ledelys

Oppgradering/revisjon av ledelyssystem i rømningsveier

Ledelys i rømningsveier og fluktveier

Brannvern Brannslanger

Brannslanger som dekker mannskapshybler og fluktrute

Brannslanger for manuell slukking

Vinduer Rømningsvinduer

Åpningsvinduer ut mot det fri i alle rom, oppsving 90/130 grader

Vinduer i alle rom som rømningsveier

Ventilasjon Balansert ventilasjon

Balansert ventilasjon i 2. etasje

Ventilasjonssystem for oppholdsrom

Brannvern Pulverapparater

🧱 ABC-pulver

Antall: 17

Pulverapparater på minimum 6 kg i hvert mannskapsrom

Brannslukkingsutstyr i hvert rom

Fasade Nødutganger

Flere nødutganger i 2. etasje

Nødutganger som rømningsveier

VVS Eksisterende sanitærinstallasjoner

Eksisterende sanitærinstallasjoner benyttes, ingen nye installasjoner

Sanitær og vanninstallasjoner

Tømrer Branncellevegger

🧱 REI60 vegger, Ri30 mellom hybler

Branncelleinndeling med REI60 vegger og dører, Ri30 vegger mellom hybler

Brannsikring av vegger og dører i hybelavdeling

Elektro Brannalarmsystem

Seriekoblede detektorer i alle rom i branncelle mannskapshybler, lydvarsling

Brannalarmsystem med seriekoblede detektorer og lydvarsling

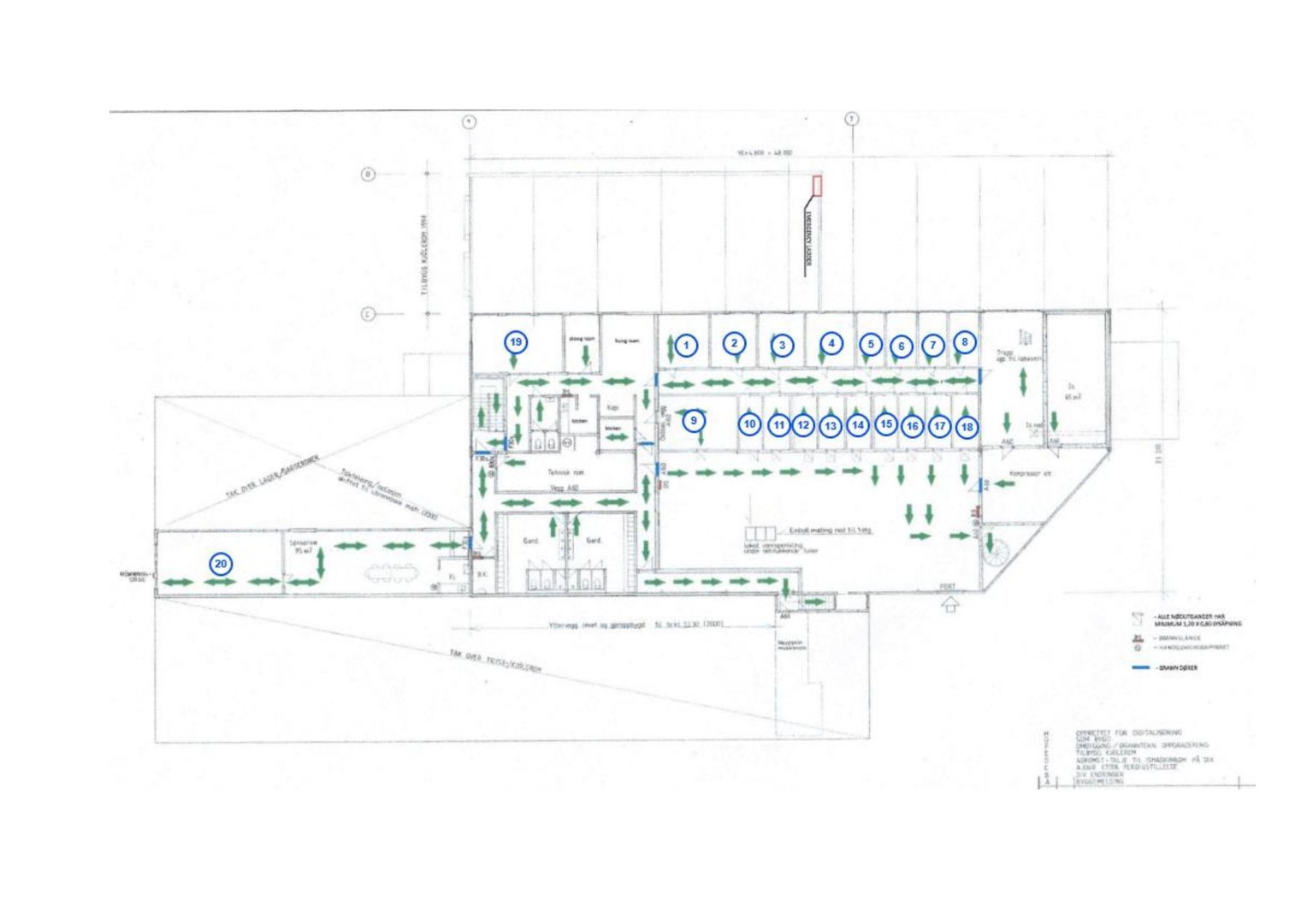
Plantegning

Enebolig 0.0 m²

Etasje 1 0.0 m²

Rom Areal Vinduer Dører
Rom 1 1 0.0 m² 0 0
Rom 2 2 0.0 m² 0 0
Rom 3 3 0.0 m² 0 0
Rom 4 4 0.0 m² 0 0
Rom 5 5 0.0 m² 0 0
Rom 6 6 0.0 m² 0 0
Rom 7 7 0.0 m² 0 0
Rom 8 8 0.0 m² 0 0
Rom 9 9 0.0 m² 0 0
Rom 10 10 0.0 m² 0 0
Rom 11 11 0.0 m² 0 0
Rom 12 12 0.0 m² 0 0
Rom 13 13 0.0 m² 0 0
Rom 14 14 0.0 m² 0 0
Rom 15 15 0.0 m² 0 0
Rom 16 16 0.0 m² 0 0
Rom 17 17 0.0 m² 0 0
Rom 18 18 0.0 m² 0 0
Rom 19 19 0.0 m² 0 0
Rom 20 20 0.0 m² 0 0

Hendelser

22.04.2026 Søknad om tillatelse og dispensasjon - gnr. 14 bnr. 233 - Strandaveien 264 - Karmaceli AS - Bruksendring del av næringsbygg
24.02.2026 Strandaveien 264 Supplering av søknad 14/233
24.02.2026 Bruksendring næringsbygg - gnr 14 bnr 233 - Strandaveien 264
09.02.2026 Forhåndsvarsel om pålegg og tvangsmulkt - gnr 14 bnr 233 - Strandaveien 264 - Hybelutleie i næringsbygg
18.11.2025 Tilbakemelding om mangler - gnr 14 bnr 233 - Strandaveien 264 - Bruksendring
22.10.2025 Ingen merknader til tiltaket er mottatt innen fristen
08.10.2025 8. oktober 2025 - Kvittering – Altinn nabovarsel
08.10.2025 8. oktober 2025 - Svar på nabovarsel - Karmaceli
07.10.2025 Karmaceli AS - Strandaveien 264 - Søknad om bruksendring
07.10.2025 Nabovarsel for Strandaveien 264 til OSEN KOMMUNE (944350675)
23.09.2025 Vedr. sak 25/533
12.09.2025 Anmodning om redegjørelse - gnr 14 bnr 233 - Strandaveien 264