ChangeOfUse Rammetillatelse Naeringsbygg

Bruksendring og ombygging til kontor i Sundts veg 75, Bergen

📍 Sundts veg 75 , 5221 NESTTUN

Nøkkelinfo

Sakstype
Bruksendring
Bygningstype
Naeringsbygg
Bruksareal
643 m²
Kommune
Bergen
Fylke
Vestland
Gnr / Bnr
40 / 1825
Saksnummer
BYGG-2025/16814
Fase
Rammetillatelse

Om byggesaken

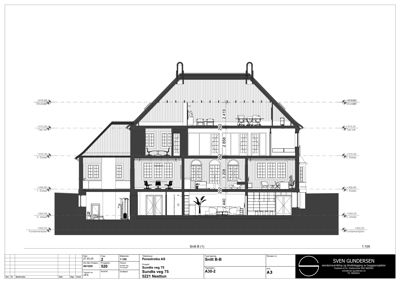
Eksisterende næringsbygg på Sundts veg 75 i Bergen gjennomgår bruksendring fra selskapslokaler til kontorlokaler med et bruksareal på 643 m². Prosjektet inkluderer ombygging med endring av bærende konstruksjoner, etablering av trinnfri atkomst med heis/løfteplattform, samt mindre fasadeendringer som nytt vindu mot sørvest. Tiltaket legger vekt på bevaring av byggets kulturminneverdier, spesielt ved plassering av heis uten å påvirke fasader eller tak. Det er også planlagt tilpasninger for universell utforming og tekniske installasjoner som ventilasjon, elektro og sanitær. Parkerings- og sykkelparkering er ivaretatt i henhold til gjeldende reguleringsplan.

Produkter og materialer

Fasade Tre kledning

🧱 tre

Bevaring av eksisterende fasade med mindre endringer

Fasade i tre med saltak, bevaring av kulturminneverdier

Grunnarbeid Fundament og drenering

Ingen nybygg, men tilpasninger kan kreve mindre grunnarbeider

Grunnarbeid for tilpasning av rampe og trapp

Maling Innvendig maling

Maling av vegger og tak i kontorlokaler

Overflatebehandling for ferdigstillelse

Vinduer Fasadevindu

🧱 tre

Nytt vindu på kjøkkenet mot sørvest

Fasadevindu i tre for mindre fasadeendring

Betong Endring av bærende konstruksjoner

Endringer i bærende konstruksjoner for tilpasning til ny bruk

Strukturelle arbeider for ombygging

Heis Løfteplattform/heis

Antall: 1

Heis plassert i ytterkant av bygget for å unngå fasadeinngrep

Løfteplattform/heis for trinnfri atkomst til alle plan

Gulv Kontorgulv

Oppgradering av gulvflater til kontorstandard

Gulvbelegg egnet for kontorbruk

Dører Ytterdør

🧱 tre

Ytterdører i eksisterende bygg, tilpasning for universell utforming

Trapper Rampe og trapp ved nabogrense

Antall: 1

Rampe med minsteavstand 1,5 m og trapp med minsteavstand 0,4 m til nabogrense

Ny rampe og trapp for universell adkomst

Rekkverk Rekkverk på rampe og trapp

Sikring av rampe og trapp med rekkverk i henhold til forskrift

Sikkerhetsrekkverk for universell utforming

Ventilasjon Ventilasjonsanlegg

Nytt ventilasjonsanlegg for kontorbruk

Ventilasjonsinstallasjon for forbedret inneklima

VVS Sanitærinstallasjoner og VA

Oppgradering av sanitærinstallasjoner og tilknytning til offentlig vann og avløp

Sanitær og VA-arbeider i forbindelse med ombygging

Kjøkken Kjøkkeninnredning

Nytt vindu på kjøkken, tilpasning av kjøkkenareal

Oppgradering av kjøkken for kontorbruk

Elektro Ledelys og brannalarmanlegg

Nytt ledelys og brannalarmanlegg i henhold til brannkonsept

Elektriske installasjoner for sikkerhet og brannvern

Isolasjon Bygningsisolasjon

Oppgradering i forbindelse med ombygging og bruksendring

Isolasjon for energikrav og komfort i eksisterende bygg

Tømrer Innvendige konstruksjoner

🧱 tre

Tilpasning av innvendige vegger og himlinger

Tømrerarbeid for ny planløsning og universell utforming

Riving Innvendig riving og miljøsanering

Riving av innvendige konstruksjoner i forbindelse med ombygging

Miljøsanering og riving for tilpasning til kontorbruk

Plantegning

Enebolig 108.9 m²

Etasje 2 108.9 m²

Rom Areal Vinduer Dører
Lager 201 18.1 m² 0 1
Gang 202 14.3 m² 0 1
Loft 203 76.5 m² 4 1
Loft 204 0.0 m² 0 0

Fasader

Enebolig

Nordøst
Materiale
Tre
Taktype
Saltak
Vinduer
13
Dører
1
Synlige etasjer
2
Sørøst
Taktype
Saltak
Vinduer
8
Dører
1
Synlige etasjer
2
Sørvest
Taktype
Saltak
Vinduer
14
Dører
1
Synlige etasjer
2

Hendelser

31.03.2026 Sundts veg 75 Supplering av søknad 40/1825
13.01.2026 Gebyr
13.01.2026 Ubw ordre 20685914
07.01.2026 Tillatelse til tiltak, 40/1825, Sundts veg 75
18.12.2025 Spørsmål om vedtak
10.12.2025 Byantikvarens uttalelse, Sundts veg 75, gnr 40/ bnr 1825, bruksendring og ombygging til kontorvirksomhet - BYGG-2025/16814
30.11.2025 Sundts veg 75 Supplering av søknad 40/1825
13.11.2025 Intern høring
13.11.2025 Behov for tilleggsdokumentasjon, 40/1825, Sundts veg 75
23.10.2025 Bekreftelse på mottatt søknad
20.10.2025 Sundts veg 75 Søknad om tillatelse i ett trinn 40/1825