ChangeOfUse UnderBehandling Naeringsbygg

Bruksendring og ombygging i næringsbygg, Tollbodgaten 5, Arendal

📍 Tollbodgaten 5 , 4836 ARENDAL

Nøkkelinfo

Sakstype
Bruksendring
Bygningstype
Naeringsbygg
Bruksareal
875 m²
Kommune
Arendal
Fylke
Agder
Gnr / Bnr
501 / 87
Saksnummer
2026/8930
Fase
Under behandling

Om byggesaken

Bruksendring og ombygging av del av 2. etasje i eksisterende næringsbygg på totalt 874,7 m² fordelt på tre etasjer. Prosjektet omfatter endring av rominndeling, oppgradering av brannskiller, brannalarmanlegg og ledelys, samt installasjon av nytt ventilasjonsanlegg. Bygget har flere funksjonsrom som restaurant, kafeareal, kjøkken, lager, personalrom, kontorer og tekniske rom. Det er to trapper og flere rømningsveier som oppgraderes. Det søkes om fravik fra enkelte krav i TEK17 for klimaskall og heis, mens brannsikkerhet og inneklima oppgraderes fullt ut. Tiltaket inkluderer også oppgradering av rømningsveier og brannalarm for bruksendret areal.

Produkter og materialer

Ventilasjon Ventilasjonsanlegg

Antall: 1

Installasjon av nytt ventilasjonsanlegg for bruksendret areal i 2. etasje

Nytt ventilasjonsanlegg for å sikre inneklima i bruksendret areal

Tømrer Innvendige vegger og himlinger

Endring av rominndeling og oppgradering av brannskiller

Innvendige bygningsmessige arbeider for ombygging og brannsikring

Trapper Rømnings- og innvendige trapper

Antall: 2

Oppgradering av rømningsveier og trapper i 2. etasje

To trapper oppgraderes for å tilfredsstille brannsikkerhet og rømningskrav

Vinduer Eksisterende vinduer

🧱 Eksisterende beholdes, med lokale oppgraderinger

Fravik fra TEK17 kapittel 14 for vinduer, eksisterende vinduer oppgraderes lokalt

Vinduer oppgraderes lokalt for bedre energiytelse, men ikke full utskifting

Dører Ytterdører og innvendige dører

🧱 Eksisterende ytterdører beholdes, nye dører i bruksendret areal

Antall: 20

Fravik fra TEK17 for ytterdører, nye dører i rømningsveier og brannskiller

Oppgradering og installasjon av dører i rømningsveier og brannskiller i bruksendret areal

Grunnarbeid Ingen nye grunnarbeider

Ingen endringer i grunnforhold eller fundamentering

Tiltaket gjelder kun innvendige endringer, ingen grunnarbeider nødvendig

Fasade Yttervegger

🧱 Eksisterende konstruksjoner beholdes med lokale oppgraderinger

Fravik fra TEK17 kapittel 14 for yttervegger, med lokale tettinger og oppgraderinger

Oppgradering av klimaskall med fokus på tetting og lokale forbedringer uten full utskifting

Gulv Gulvbelegg og overflater

Oppgradering av gulv i bruksendret areal, ikke spesifisert materiale

Gulvoppgradering i forbindelse med ombygging og bruksendring

Brannvern Brannalarmanlegg og ledelys

Oppgradering av brannalarmanlegg og ledelys i bruksendret areal

Brannsikkerhet oppgraderes med nytt brannalarmanlegg og ledelys i 2. etasje

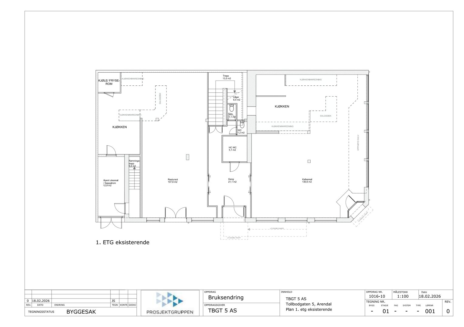
Plantegning

Bruksendring 874.7 m²

Etasje 1 300.8 m²

Rom Areal Vinduer Dører
Kjøkken Kjøkken 0.0 m² 0 0
Kjøle/Fryserom Kjøle/Fryserom 0.0 m² 0 0
Apent uteareal / Søppelrom Apent uteareal 12.9 m² 0 1
Restaurant Restaurant 107.8 m² 0 0
Gang Gang 21.1 m² 0 2
WC WC 1.2 m² 0 1
HC WC HC WC 5.1 m² 0 1
Lager Lager 6.4 m² 0 0
Kafeareal Kafeareal 130.6 m² 0 0

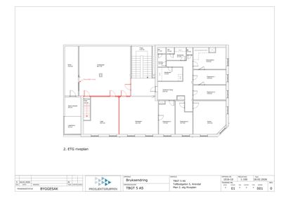
Etasje 2 307.6 m²

Rom Areal Vinduer Dører
Gang Gang 14.9 m² 0 1
Vrimleareal Vrimleareal 66.7 m² 0 0
Trapp Trapp 13.5 m² 0 0
WC WC 1.1 m² 0 1
WC WC 1.0 m² 0 1
Skap SKAP 0.0 m² 0 0
BK BK 1.0 m² 0 1
Garderobe Garderobe 4.3 m² 0 1
Kjøkkeninnredning KJØKKENINNREDNING 0.0 m² 0 0
Personalrom Personalrom 15.9 m² 0 1
Forrom Forrom 2.2 m² 0 1
Garderobe Garderobe 7.5 m² 0 1
Venterom/ Gang Venterom/ Gang 22.9 m² 0 1
Pasientrom 1 Pasientrom 1 10.8 m² 0 1
Pasientrom 2 Pasientrom 2 10.8 m² 0 1
Pasientrom 4 Pasientrom 4 11.5 m² 0 1
Pasientrom 3 Pasientrom 3 10.7 m² 0 1
Kontor Kontor 23.5 m² 0 1
Lagerhems Lagerhems 6.5 m² 0 0
Apert uteareal Apert uteareal 6.9 m² 0 0
Rømnings-trapp Rømnings-trapp 3.5 m² 0 0
Lager Lager 25.5 m² 0 0
Resepsjon Resepsjon 32.2 m² 0 0

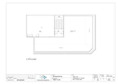
Etasje 3 266.3 m²

Rom Areal Vinduer Dører
Lager 301 73.5 m² 0 2
Gang 302 8.1 m² 0 2
Teknisk rom / Lager 303 181.7 m² 0 0

Hendelser

17.04.2026 DOK-analyse - 501/87/0/0 Tollbodgaten 5
16.04.2026 Tollbodgaten 5 Søknad om tillatelse i ett trinn 501/87
18.03.2026 501/87 - Vi innvilger søknaden om samtykke etter automatisk saksbehandling