ChangeOfUse UnderBehandling Naeringsbygg

Ombygging og bruksendring av låve til boenhet på Torvøya 2

📍 Torvøya 2 , 3474 ÅROS

Nøkkelinfo

Sakstype
Bruksendring
Bygningstype
Naeringsbygg
Bruksareal
137 m²
Boenheter
1
Kommune
Asker
Fylke
Akershus
Gnr / Bnr
252 / 3
Saksnummer
26/652
Fase
Under behandling

Om byggesaken

Eksisterende låve på 137 m² bygges om til en bruksenhet med to etasjer, inkludert fire soverom, bad, allrom med kjøkken, samt lager og verksted i underetasjen. Et tilbygg på 35 m² rives, og det etableres en ny veranda på 36 m² mot sørøst. Låven beholder sin eksisterende form og høyde, med saltak tekket med tegl. Fasadene mot sørøst og sørvest åpnes opp med store vindusflater og glassfelt. Kledningen i tre beholdes og males/beises rød. Det gjennomføres miljøsanering av asbestholdig taktekking, som erstattes med tilsvarende materiale uten asbest. Bygget får én trapp, flere vinduer og dører fordelt på to etasjer. Prosjektet inkluderer også riving, miljøsanering, fasadeendringer og tilpasning til TEK-17 med søknad om unntak der nødvendig.

Produkter og materialer

Trapper Innvendig trapp

Antall: 1

Trapp mellom underetasje og 1. etasje i boligdel

Innvendig trapp for adkomst mellom etasjer

Tømrer Ombygging og konstruksjonsarbeid

🧱 Tre

Ombygging innenfor eksisterende form og høyde, riving av tilbygg, etablering av veranda og nye åpninger i fasade

Tømrerarbeid for ombygging, riving og ny veranda

Grunnarbeid Oppmåling og tilstandsvurdering

Full oppmåling av bygget og gjennomgang av eksisterende konstruksjoner for endelig prosjektering

Oppmåling og tilstandsvurdering før detaljprosjektering

Isolasjon Bygningsisolasjon

Isolasjon i vegger, tak og gulv i forbindelse med ombygging til bolig

Isolasjon for å oppnå krav i TEK-17 med søknad om unntak der nødvendig

Elektro Elektrisk anlegg

Elektrisk anlegg til boligdel og lager/verksted

Installasjon av elektrisk anlegg i ombygget låve

Riving Riving av tilbygg

Antall: 35

Riving av tilbygg på ca. 35 m² som er delvis rast og sikret med bygningsgjerder

Riving av eksisterende tilbygg til låven på ca. 35 m²

Fasade Kledning

🧱 Tre

Eksisterende trepanel beholdes og males/beises i rød farge som i dag

Bevaring og behandling av eksisterende trepanelkledning

Tak Taktekking

🧱 Tegl

Eksisterende taktekking inneholder asbest og skal miljøsaneres og skiftes ut med tilsvarende tegltekking uten asbest

Sanering og utskifting av taktekking på låven

Dører Ytterdører og port

🧱 Tre

Antall: 7

Dører fordelt på inngang fra låvebru, utgang til veranda, og port til lager/verksted i gavlvegg

Dører for bolig, lager/verksted og verandaadkomst

Terrasse Veranda

🧱 Tre

Antall: 1

Ny veranda på 36 m² mot sørøst og kollen

Etablering av ny veranda/uteplass

Vinduer Fasadevindu

🧱 Tre

Antall: 14

Store vindusflater og glassfelt mot sørøst og sørvest, totalt 14 vinduer fordelt på to etasjer

Nye og større vinduer i fasadene mot sørøst og sørvest

VVS Bad og kjøkken installasjoner

Bad med sanitærutstyr og kjøkken i allrom

Installasjon av sanitærutstyr og kjøkkeninnredning

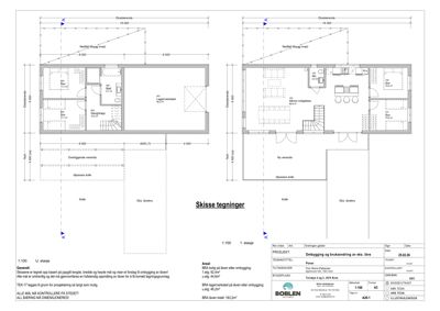
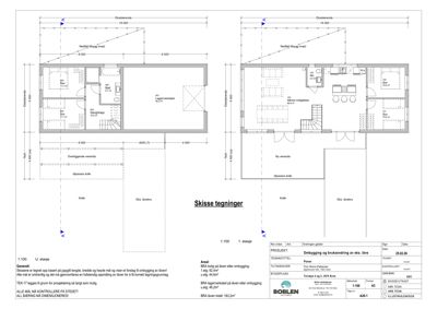
Plantegning

Låve 137.0 m²

Etasje 0 44.6 m²

Rom Areal Vinduer Dører
Sov 004 11.7 m² 1 1
Sov 005 11.7 m² 1 1
Bad 002 8.7 m² 0 1
Gang/trapp 003 10.5 m² 0 2

Etasje 1 92.4 m²

Rom Areal Vinduer Dører
Allrom m/kjøkken 103 66.8 m² 2 2
Wc 104 2.5 m² 0 1
Sov 101 10.6 m² 1 1
Sov 102 10.6 m² 1 1

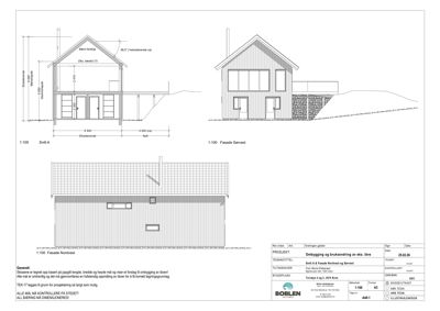
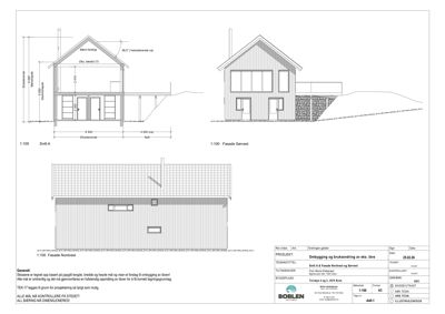
Fasader

Låve

Nordvest
Materiale
Tre
Taktype
Saltak
Takmat.
Tegl
Høyde
5.7 m
Mønehøyde
8.0 m
Vinduer
3
Dører
0
Synlige etasjer
2
Sørvest
Materiale
Tre
Taktype
Saltak
Takmat.
Tegl
Høyde
5.7 m
Mønehøyde
8.0 m
Vinduer
4
Dører
2
Synlige etasjer
2
Nordøst
Materiale
Tre
Taktype
Saltak
Vinduer
2
Dører
1
Synlige etasjer
1
Sørøst
Materiale
Tre
Taktype
Flatt tak
Takmat.
Tegl
Vinduer
4
Dører
2
Synlige etasjer
1

Hendelser

10.04.2026 252/3 Torvøya 2 - Statsforvalterens uttalelse til søknad om dispensasjon
31.03.2026 252/3 Torvøya 2 - Tilbygg og fasadeendring - Forespørsel om mer informasjon
23.03.2026 252/3 Torvøya 2 - Supplering av søknad
19.03.2026 252/3 Torvøya 2 - Anmodning om uttalelse til riving av tilbygg, ombygging og bruksendring av låve til boenhet
02.03.2026 252/3 Torvøya 2 - Søknad om rammetillatelse - Riving av tilbygg, ombygging og bruksendring av låve til boenhet