ChangeOfUse Rammetillatelse Naeringsbygg

Bruksendring fra kontor til minilager i Vålerveien 180, Moss

📍 Vålerveien 180 , 1599 MOSS

Nøkkelinfo

Sakstype
Bruksendring
Bygningstype
Naeringsbygg
Bruksareal
166 m²
Kommune
Moss
Fylke
Østfold
Gnr / Bnr
3 / 2172
Saksnummer
2025/9534
Fase
Rammetillatelse

Om byggesaken

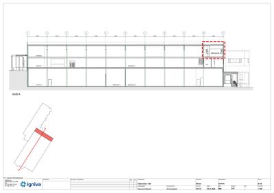
Bruksendring av 165,8 m² kontorlokaler i 2. etasje, seksjon 5, i næringsbygget Vålerveien 180 i Moss til minilager. Lokalet består av flere små lagerboder på mellom ca. 8,6 og 13,4 m², med tilhørende korridorer. Det gjøres mindre innvendige tilpasninger uten bygningsmessige endringer eller endring av byggets ytre. Adkomst skjer via eksisterende hovedinngang og løfteplattform. Lageret er uoppvarmet med naturlig ventilasjon ved åpning av porter. Brannkonsept og branntegninger er utarbeidet for å ivareta sikkerhet, og tiltaket har midlertidig dispensasjon fra reguleringsplanens arealformål industri for 29 år. Det er én intern trapp i området. Tiltaket innebærer ikke økt bebygd areal eller terrenginngrep.

Produkter og materialer

Dører Innvendige dører til lagerboder

Antall: 10

Dører til lagerboder i 2. etasje, ca. 10 stk, uten vinduer.

Innvendige dører til lagerboder i minilageret.

Ventilasjon Naturlig ventilasjon

Lagerarealet er uoppvarmet og ventileres naturlig ved åpning av porter. Eksisterende ventilasjonsanlegg i kontorlokalene opprettholdes uten endringer.

Ventilasjon for minilageret basert på naturlig luftutskifting.

Grunnarbeid Ingen nye grunnarbeider

Ingen nye grunnarbeider eller terrenginngrep i forbindelse med bruksendringen.

Ingen grunnarbeider nødvendig for bruksendringen.

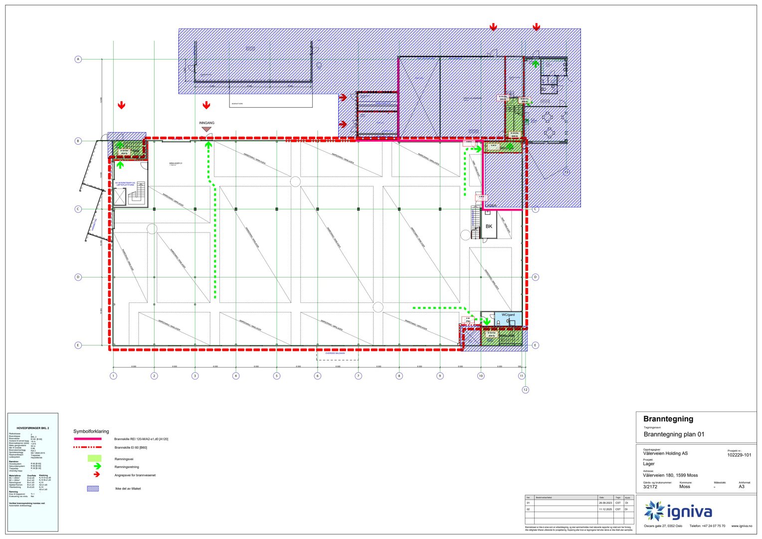
Brannvern Brannkonsept og branntegninger

Brannkonsept i henhold til TEK17 med brannklasse 2, sprinkling iht NS-EN 12845, brannalarmanlegg kategori 2, rømningsveier med min. 0,86 m bredde, branncelleinndeling, og branntekniske tiltak for lager.

Branntekniske tiltak og dokumentasjon for sikker bruksendring til minilager.

Trapper Intern trapp i 2. etasje

Antall: 1

Eksisterende intern trapp i 2. etasje som betjener lagerseksjonen.

Intern trapp for adkomst mellom plan i lagerseksjonen.

Tømrer Innvendige tilpasninger

Mindre innvendige bygningsmessige tilpasninger for etablering av minilagerboder i eksisterende kontorlokaler uten bygningsmessige endringer utvendig.

Innvendige tilpasninger for omdisponering av kontorlokaler til minilagerboder.

Plantegning

Lager 0.0 m²

Etasje 1 0.0 m²

Rom Areal Vinduer Dører
Inngang 01 0.0 m² 0 1
Lager 02 0.0 m² 0 0
WC/gard 03 0.0 m² 0 0
BK 04 0.0 m² 0 0

Kontorbygg 165.8 m²

Etasje 2 165.8 m²

Rom Areal Vinduer Dører
Korridor Korridor 19.5 m² 0 0
Kontor Kontor 13.4 m² 0 1
Kontor Kontor 9.9 m² 0 1
Kontor Kontor 10.1 m² 0 1
Kontor Kontor 9.3 m² 0 1
Kontor Kontor 9.9 m² 0 1
Kontor Kontor 9.9 m² 0 1
Kontor Kontor 9.9 m² 0 1
Kontor Kontor 9.9 m² 0 1
Kontor Kontor 8.6 m² 0 1
Korridor Korridor 37.4 m² 0 0

Hendelser

15.04.2026 Vålerveien 180 - 3/2172 - midlertidig tillatelse til tiltak -bruksendring fra kontor til minilager
23.02.2026 Vålerveien 180 - 3/2172 - uttalelse fra Østfold Fylkeskommune - bruksendring
17.02.2026 Vålerveien 180 - 3/2172 - uttalelse til søknad om dispensasjon for bruksendring
02.02.2026 Vålerveien 180 - 3/2172 - oversender søknad til uttalelse - bruksendring
21.01.2026 Vålerveien 180 - 3/2172 - supplering av søknad
30.12.2025 Vålerveien 180 - 3/2172 - tilbakemelding om mangler -bruksendring fra kontor til minilager
12.12.2025 Vålerveien 180 - 3/2172 - Arbeidstilsynet innvilger søknaden om samtykke etter automatisk saksbehandling - bruksendring fra kontor til minilager
12.12.2025 Vålerveien 180 - 3/2172 - ett-trinnssøknad - bruksendring fra kontor til minilager