FacadeChange Soeknad Naeringsbygg

Oppgradert brannsikring og brannskille i lagerbygg, Kampenveien 1

📍 Kampenveien 1 , 1618 FREDRIKSTAD

Nøkkelinfo

Sakstype
Fasadeendring
Bygningstype
Naeringsbygg
Bruksareal
8,460 m²
Kommune
Fredrikstad
Fylke
Østfold
Gnr / Bnr
205 / 51
Saksnummer
2026/10661
Fase
Søknad

Om byggesaken

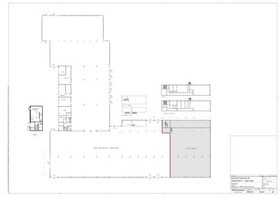
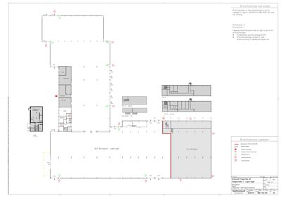
Tiltaket omfatter oppgradering av brannsikring i et eksisterende lagerbygg på Kampenveien 1 i Fredrikstad, med et totalt areal på 8460 m². Det etableres en ny branncelle på 6400 m² for lagring av lignin i storsekker, med forsterkede branncelleskiller med brannmotstand EI 120. Tiltaket inkluderer også tekniske installasjoner som ESFR-sprinkleranlegg, LED-belysning, slokkeampuller i sikringsskap, og egen branncelle for lading av elektriske trucker. Bygget oppgraderes for å håndtere økt brannenergi over 800 MJ/m², med kompenserende tiltak for å sikre robust brannsikkerhet. Det er én trapp i bygget, og tiltaket omfatter innvendige konstruksjonsendringer og tekniske oppgraderinger uten endring av byggets hovedfunksjon eller areal.

Produkter og materialer

Grunnarbeid Opprettholdelse av kjørbar atkomst og oppstillingsplass

Fast dekke, kjørevei med minimum 3,5 m bredde, stigning maks 1:8, svingradius 12 m

Tilrettelegging for brannvesenets angrepsvei og oppstillingsplass for høyderedskap

Brannvern Manuelt slokkeutstyr

Håndslokkeapparat min 6 kg ABC-pulver eller skum/vannapparat min 9 liter, brannslanger max 30 m

Manuell slokking i lageret og tilhørende områder

Fasade Branncelle vegg for trucklading

🧱 EI 60 brannmotstand

Branncelle for lading av elektriske trucker med brannmotstand EI 60

Sikrer brannsikker lading av elektriske trucker i egen branncelle

Isolasjon Brannisolasjon

🧱 A2-s1,d0 eller K210 A2-s1,d0

Ubrennbar eller begrenset brennbar isolasjon i brannceller og sjakter

Sikrer brannmotstand i konstruksjoner og hulrom

Elektro Sikringsskap med slokkeampuller

Sikringsskap utstyrt med slokkeampuller for tidlig slokking av elektriske branntilløp

Forebygger brann i elektriske installasjoner

Fasade Branncelleskille vegg

🧱 EI 120 brannmotstand

Forsterkede branncelleskiller med brannmotstand EI 120 mellom nytt lager og øvrige deler

Branncelleskiller for å sikre forsinket brannspredning og økt robusthet

Gulv Eksisterende gulv i lagerbygg

Antall: 8460

Totalt gulvareal ca. 8460 m² lager og produksjonshall

Eksisterende gulv i lagerbygget som inngår i tiltaket

Dører Brann- og røykdører

Dører med samme brannmotstand som tilhørende bygningsdel og røyktetthet Sa

Brann- og røykdører i branncelleskiller og rømningsveier

VVS ESFR-sprinkleranlegg

Early Suppression Fast Response sprinkleranlegg med høy slokkeeffekt og rask temperaturreduksjon

Kompenserende tiltak for økt brannenergi i lageret

Elektro LED-armaturer

Utskifting av eksisterende belysning til LED-armaturer med lav varmeutvikling

Reduserer potensielle tennkilder i lageret

Hendelser

15.04.2026 Supplering av søknad - eiendom 205/51 - Kampenveien 1
10.04.2026 Ett-trinns søknad - Kampenveien 1 - Eiendom 205/51/139 - Oppgradert brannsikring og innvendige tiltak
10.04.2026 Bekreftelse på mottatt søknad - Ett-trinns søknad - Endring - brannskille - Kampenveien 1 - Eiendom 205/51/139