FacadeChange Ferdigattest Naeringsbygg

Fasadeendring og ombygging av næringsbygg i Sivert Nilsens gate 33, Svolvær

📍 Sivert Nilsens gate 31 , 8300 SVOLVÆR

Nøkkelinfo

Sakstype
Fasadeendring
Bygningstype
Naeringsbygg
Bruksareal
670 m²
Kommune
Vågan
Fylke
Nordland - Nordlánnda
Gnr / Bnr
18 / 1639
Saksnummer
24/1075
Fase
Ferdigattest

Om byggesaken

Prosjektet omfatter omfattende fasadeendringer og ombygging av butikkarealer i kjøpesenteret Alti i Sivert Nilsens gate 33, Svolvær. Bygget er et næringsbygg med et samlet areal på ca. 670 m² fordelt på flere etasjer. Tiltaket inkluderer riving og miljøsanering av eksisterende fasadeplater og vinduer, utskifting av glassfasader, montering av nye fasadeplater i stål, oppføring av utvendig rampe, samt ombygging av butikklokaler for blant annet Bunnpris og Clas Ohlson. Det er også utført tekniske installasjoner som brannalarmanlegg, sprinkleranlegg, ventilasjon og sanitærinstallasjoner. Miljøkartlegging har avdekket helse- og miljøfarlige stoffer i eksisterende bygningsmaterialer som isolerglassruter og tetningsmidler, som er håndtert i henhold til regelverk. Prosjektet har gjennomgått flere faser med igangsettingstillatelser, midlertidige brukstillatelser og endringsvedtak, og søker nå ferdigattest.

Produkter og materialer

Annet Varmepumpe

Antall: 1

Demontering av varmepumpe med kjølemedium av godkjent kjølemontør

Fjerning av varmepumpe som del av miljøsanering

Trapper Betongtrapp og ny trapp mellom plan 1 og 2

🧱 Betong

Antall: 1

Fjerning av eksisterende betongtrapp, oppføring av ny trapp for rømningsvei

Ny trapp for rømningsvei mellom plan 1 og 2, midlertidig trapp benyttes inntil ferdigstillelse

Vinduer Isolerglassvinduer

🧱 Klorparafin- og ftalat-holdige pakninger

Antall: 55

RIIS isolerglass 1980 (39 stk), Narvik glass 2000 (16 stk), inkludert 4 ytterdørfelt med glass

Demontering og utskifting av eldre isolerglassvinduer med miljøfarlige pakninger

Dører Ytterdører med glassfelt

🧱 Glass og tetningsmidler med ftalater

Antall: 4

Demontering og utskifting av ytterdører med miljøfarlige pakninger

Nye ytterdører til butikk og rømningsveier

Gulv Vinylbelegg og fliser

🧱 Vinyl, fliser

Fjerning av vinylbelegg i 2. etasje og trapp, flisgulv i øvrige arealer

Gulvbelegg som skal fjernes og eventuelt legges nytt

Ventilasjon Ombygging og flytting av ventilasjonsanlegg

Flytting av ventilasjon i forbindelse med ombygging av Clas Ohlson-arealer

Ventilasjonsarbeider i ombygde butikklokaler

VVS Sanitærinstallasjoner og sprinkleranlegg

Oppgradering og ferdigstillelse av sprinkleranlegg og sanitærinstallasjoner

Sprinkleranlegg og sanitærinstallasjoner i butikkarealer

Isolasjon Glava isolasjon

🧱 Mineralull

Demontering og sortering som inert avfall ved riving av fasade og vegger

Isolasjon i vegger og fasade som skal fjernes og håndteres

Grunnarbeid Terrengjustering og rampe

Antall: 1

Oppføring av utvendig rampe med mindre terrengjusteringer

Permanent rampe til søndagsbutikk Bunnpris

Maling Innvendig maling og overflatebehandling

Komplettering av malerarbeider i ombygde butikklokaler

Innvendig overflatebehandling etter ombygging

Fasade Malte stålplater og glassfasader

🧱 Galvanisert stål, glass

Montering av nye fasadeplater og glassfasader som erstatning for eksisterende

Renovering og oppgradering av fasade med nye materialer

Riving Fasadeplater, vinduer, dører og innvendige lettvegger

Riving og miljøsanering av eksisterende fasade og innvendige konstruksjoner

Fjerning av gamle bygningsdeler med farlig avfallshåndtering

Elektro Brannalarmanlegg og lede-/markeringslys

Montering av heldekkende brannalarmanlegg og nødlys i henhold til rømningsplan

Brannalarm og nødlys for sikkerhet i butikklokaler

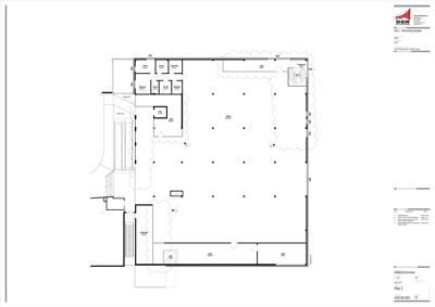
Plantegning

Hovedbygg 670.5 m²

Etasje 1 315.0 m²

Rom Areal Vinduer Dører
Kontor V01 9.5 m² 0 1
Kontor V02 5.6 m² 0 1
Garderobe V03 6.3 m² 0 1
Spiserom V04 18.7 m² 0 1
Server V05 3.4 m² 0 1
HC WC V06 5.7 m² 0 1
Bettelott V07 4.8 m² 0 1
Hels V08 4.7 m² 0 1
Lager V09 44.3 m² 0 1
Lager V10 28.0 m² 0 1
Trapperom V11 16.0 m² 0 1
Vedlikehold V12 35.6 m² 0 1
Lager V13 72.6 m² 0 1
Lager V14 38.0 m² 0 1
Buhk V15 973.5 m² 0 0
Korridor K11 0.0 m² 0 1
Korridor K12 0.0 m² 0 1
Korridor K03 0.0 m² 0 1
Korridor K27 0.0 m² 0 1
Trapperom Trapperom 0.0 m² 0 1
Søndagsbutikk GF2a 0.0 m² 0 1
Hovedbutikk GF2b 0.0 m² 0 1

Etasje 2 0.0 m²

Rom Areal Vinduer Dører
Gang K11 0.0 m² 0 1
Gang K12 0.0 m² 0 1
Gang K03 0.0 m² 0 1
Gang K27 0.0 m² 0 1
Gang GF2a 0.0 m² 0 1
Gang GF2b 0.0 m² 0 1
Gang GF3 0.0 m² 0 1

Etasje 0 355.5 m²

Rom Areal Vinduer Dører
Kontor V01 9.5 m² 0 1
Kontor V02 5.9 m² 0 1
Garderobe V03 6.3 m² 0 1
Spisestue V04 39.7 m² 0 1
Server V05 3.4 m² 0 1
HC WC V06 5.7 m² 0 1
Badelokk V07 4.8 m² 0 1
Lager V08 44.3 m² 0 1
Butikk V09 87.5 m² 0 0
Lager V10 72.5 m² 0 1
Lager V11 38.0 m² 0 1
Vedlikehold V12 35.6 m² 0 1

Enebolig 15.9 m²

Etasje 0 15.9 m²

Rom Areal Vinduer Dører
Trapperom Trapperom 15.9 m² 0 1

Fasader

Hovedbygg

Vest
Materiale
Glass
Høyde
6.0 m
Vinduer
11
Dører
2
Synlige etasjer
2
Sør
Materiale
Glass
Høyde
6.0 m
Vinduer
11
Dører
2
Synlige etasjer
2

Hendelser

17.04.2026 Sivert Nilsens gate 33 Søknad om ferdigattest 18/1639
17.04.2026 Sivert Nilsens gate 33 Supplering av søknad 18/1639
25.03.2026 Utsatt frist ferdigattest - butikkarealer i 2.etg. - gbn 18/1639 Sivert Nilsens gate 33
12.02.2026 Saknr. 25/11583 ALTI Svolvær - Forlengelse av midlertidig brukstillatelse og utsatt frist for ferdigattest
12.01.2026 Saknr. 25/11583 ALTI Svolvær - Utsatt frist for ferdigattest
08.01.2026 Saknr. 25/11583 ALTI Svolvær - Forlengelse av midlertidig brukstillatelse og utsatt frist for ferdigattest gbn 18/1639
01.12.2025 Sivert Nilsens gate 33 Supplering av søknad 18/1639
20.10.2025 Midlertidig brukstillatelse - Butikkarealer i 2.etg. Clas Ohlson - gbn 18/1639, Sivert Nilsens gate 33
16.10.2025 Saknr. 25/11583 - ALTI Svolvær - Fasadeendring og ombygging, Sivert Nilsens gate 31 og 33 - Søknad om midlertidig brukstillatelse - Bekreftelse på sikkert tiltak
26.09.2025 Sivert Nilsens gate 33 Søknad om midlertidig brukstillatelse 18/1639
03.09.2025 Endringsvedtak - gbn 18/1639 Sivert Nilsens gate 33
04.07.2025 Vi innvilger søknaden om samtykke etter automatisk saksbehandling
04.07.2025 Sivert Nilsens gate 33 Søknad om endring av gitt tillatelse eller godkjenning 18/1639
05.06.2025 Midlertidig brukstillatelse - tiltak med ansvarsrett - Fasadeendringer og ombygging - gbn 18/1639 Sivert Nilsens gate 33
22.05.2025 Sivert Nilsens gate 33 Søknad om midlertidig brukstillatelse 18/1639
12.05.2025 Sivert Nilsens gate 33 Supplering av søknad 18/1639
09.05.2025 Saknr. 24/16808 - Sivert Nilsens gate - Midlertidig brukstillatelse - Rømning
07.05.2025 Midlertidig brukstillatelse - tiltak med ansvarsrett - Fasadeendringer og ombygging - gbn 18/1639 Sivert Nilsens gate 33
06.05.2025 Igangsettingstillatelse - Fasadeendringer og ombygging - gbn 18/1639 Sivert Nilsens gate 33
22.04.2025 Sivert Nilsens gate 33 Søknad om midlertidig brukstillatelse 18/1639