NewConstruction Rammetillatelse Naeringsbygg

Nytt garderobebygg for Dahle IL på Fiolbakken 227

📍 31/308 , 6518 KRISTIANSUND N

Nøkkelinfo

Sakstype
Nybygg
Bygningstype
Naeringsbygg
Bruksareal
149 m²
Kommune
Kristiansund
Fylke
Møre og Romsdal
Gnr / Bnr
31 / 308
Saksnummer
25/09244
Fase
Rammetillatelse

Om byggesaken

Nytt garderobebygg på Fiolbakken 227 ved Dahle IL består av et enetasjes bygg med saltak og tre som fasademateriale. Bygget har et samlet bruksareal på ca. 149 m² og et bebygd areal på 195,5 m², og erstatter eksisterende brakker som rives. Bygget er delt inn i tre deler med garderober for hjemme- og bortelag samt dommere, i tillegg til teknisk rom og lager. Alle garderober oppfyller krav til universell utforming. Bygget har pulttak med samme mønehøyde som eksisterende tribune i nærheten. Fasader er utført i tre, og bygget har flere dører og en balkong. Det er lagt vekt på brannsikkerhet med tilrettelegging for rednings- og slokkemannskap, inkludert krav til adkomst, slokkevann og brannkonsept. Bygget er plassert i et idrettsområde med dispensasjon fra plankrav og friområde, og tiltaket medfører kun en marginal økning i bebygd areal innenfor området.

Produkter og materialer

Brannvern Brannkonsept og slokkeutstyr

Brannkonsept utarbeides, tilrettelegging for brannvesenets adkomst, slokkevannskapasitet min. 1200 l/min, brannsentral, nøkkelboks og orienteringsplaner

Brannsikkerhetstiltak i henhold til TEK17 og NIBR retningslinjer

Vinduer Fasadevindu

Antall: 1

Ett vindu på fasade vest

Fasadevindu i garderobebygg

VVS Sanitærinstallasjoner

Dusj- og WC-fasiliteter i henhold til universell utforming

Sanitærinstallasjoner for garderober og WC

Isolasjon Isolasjon i vegger og tak

Isolasjon i henhold til TEK17 krav

Isolasjon for termisk og lydmessig komfort

Maling Utvendig og innvendig maling

Overflatebehandling av trefasader og innvendige flater

Maling og overflatebehandling

Tømrer Innvendige vegger og rominndeling

🧱 Tre og gips antatt

Rom for garderober, dusj, WC, teknisk rom, lager og dommerrom

Innvendige konstruksjoner og rominndeling

Fasade Trepanel

🧱 Tre

Fasade i tre med saltak, gesimshøyde 5.81 m, mønehøyde 6.01 m

Trepanel til fasader på alle sider av bygget

Grunnarbeid Plate på mark

🧱 Betong

Antall: 1

Bygget fundamenteres på plate på mark, endring fra hevet bygg

Betongplate som fundament for garderobebygg

Dører Ytterdører

Antall: 5

Flere ytterdører på fasade sør, ingen vinduer i dører

Ytterdører til garderober og tekniske rom

Tak Saltak

🧱 Taktekking ikke spesifisert

Saltak med pulttakstilpasning, samme mønehøyde som tribune

Taktekking for saltak på garderobebygg

Elektro Brannalarm og varsellys

Brannsentral med tilkobling til 110-sentral, varsellys på fasade

Brannalarmanlegg og varsellys for brannsikkerhet

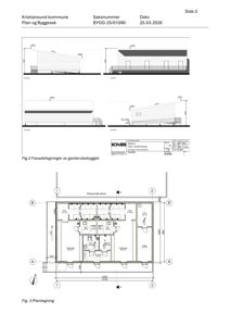
Plantegning

Garderobebygg 120.5 m²

Etasje 1 120.5 m²

Rom Areal Vinduer Dører
Dusj Dusj 17.5 m² 0 1
Dusj Dusj 17.5 m² 0 1
Teknisk rom TEK 9.1 m² 0 1
WC WC 5.8 m² 0 1
WC WC 5.8 m² 0 1
WC WC 6.5 m² 0 1
Dusj Dusj 4.6 m² 0 1
Garderobe Garderobe 26.2 m² 0 1
Garderobe Garderobe 26.2 m² 0 1
Lager Lager 13.5 m² 0 1
Domm Domm 7.8 m² 0 1

Fasader

Garderobebygg

Aust
Materiale
Tre
Taktype
Saltak
Høyde
5.8 m
Mønehøyde
6.0 m
Vinduer
0
Dører
0
Balkonger
1
Synlige etasjer
1
Sør
Materiale
Tre
Taktype
Saltak
Høyde
5.8 m
Mønehøyde
6.0 m
Vinduer
0
Dører
4
Balkonger
1
Synlige etasjer
1
Nord
Materiale
Tre
Taktype
Saltak
Høyde
5.8 m
Mønehøyde
6.0 m
Vinduer
0
Dører
0
Synlige etasjer
1
Vest
Materiale
Tre
Taktype
Saltak
Høyde
5.8 m
Mønehøyde
6.0 m
Vinduer
1
Dører
0
Balkonger
1
Synlige etasjer
1

Hendelser

20.04.2026 25/09244-16 Fiolbakken 227 - spørsmål
08.04.2026 25/09244-15 Fiolbakken 227 - Svar på spørsmål
08.04.2026 25/09244-14 Fiolbakken 227 - spørsmål
30.03.2026 25/09244-13 Mottakskontroll
25.03.2026 25/09244-12 Fiolbakken 227 - Dahle IL, Rammetillatelse for garderobebygg, dispensasjon fra bestemmelser i KPA og reguleringsplan.
18.03.2026 25/09244-11 Fiolbakken 277 - Supplering av søknad
04.03.2026 25/09244-10 Fiolbakken 227 - Dahle IL - supplerende opplysninger
04.02.2026 25/09244-8 Fiolbakken 227 - Tilbakemelding på rammesøknad, garderobebygg (på høring)
04.02.2026 25/09244-7 Fiolbakken 227 - Dahle IL - tilbakemelding fra NIBR
30.01.2026 25/09244-6 Fiolbakken 227 - Uttalelse - nytt garderobebygg