NewConstruction Igangsettingstillatelse Naeringsbygg

Nytt næringsbygg med uteareal på Digernes næringsområde 9, Skodje

📍 531/113 , 6260 SKODJE

Nøkkelinfo

Sakstype
Nybygg
Bygningstype
Naeringsbygg
Bruksareal
2,852 m²
Kommune
Ålesund
Fylke
Møre og Romsdal
Gnr / Bnr
531 / 113
Saksnummer
2025/9117
Fase
Igangsettingstillatelse

Om byggesaken

Nytt næringsbygg i tre etasjer med inntrukken 3. etasje og flatt tak, plassert på Digernes næringsområde 9 i Skodje. Bygget har et samlet bruttoareal på ca. 2852 m² og et bebygd areal på ca. 1645 m², med lagerfunksjoner i første etasje og kontorarealer i andre og tredje etasje. Bygningen er oppført i betongelementer og fasadeplater, med vindusbånd på kontorsiden. Det er planlagt to inngangspartier, utvendig spiraltrapp for rømningsvei, heis og løfteplattform. Utearealet inkluderer parkeringsplasser (42 stk, hvorav 5 HC-plasser), sykkelparkering og avfallshåndtering. Bygget er tilknyttet kommunalt vann- og avløpsnett, og det er gitt dispensasjon for plassering innenfor byggegrense. Prosjektet er under detaljprosjektering med godkjent rammetillatelse og igangsettingstillatelse for grunn- og fundamentarbeid.

Produkter og materialer

Grunnarbeid Grunn- og fundamentarbeid

Igangsettingstillatelse gitt for grunn- og fundamentarbeid

Grunnarbeid for fundamentering av bygget

Rekkverk Brannsikkerhetsrekkverk ved spiraltrapp

Rekkverk for utvendig spiraltrapp for rømningsvei

Sikkerhetsrekkverk

Tak Flatt tak

Flatt tak med gesimshøyde ca. 8,2 m og mønehøyde ca. 12 m

Tak for næringsbygget

Vinduer Fasadevindu

🧱 glass og aluminiumsramme

Antall: 39

Vindusbånd på kontorfasade, totalt 39 vinduer fordelt på 3 etasjer

Fasadevinduer for kontorarealer i 2. og 3. etasje

Ventilasjon Ventilasjons- og klimainstallasjoner

Ventilasjons- og klimainstallasjoner i tiltaksklasse 2

Ventilasjonssystem for næringsbygget

VVS Sanitærinstallasjoner og vann- og avløpsanlegg

Tilknytning til kommunalt vann- og avløpsnett, sanitærinstallasjoner i tiltaksklasse 2

VVS-installasjoner for næringsbygget

Maling Innvendig og utvendig maling

Maling av fasadeplater og innvendige overflater planlegges ved detaljprosjektering

Overflatebehandling

Terrasse Takterrasse

Takterrasse på inntrukken 3. etasje

Uteareal på tak

Betong Plasstøpte betongkonstruksjoner

🧱 betong

Plasstøpte betongkonstruksjoner for bærende elementer

Bærende konstruksjoner i betong

Trapper Spiraltrapp og trapp i trapperom

🧱 stål og betong

Antall: 3

Utvendig spiraltrapp for rømningsvei, to trapperom innvendig

Trapper for rømningsveier og intern kommunikasjon

Fasade Betongelementer og fasadeplater

🧱 betong og fasadeplater

Bygget har betongelementer og fasadeplater med flatt tak

Fasade og bygningskropp

Heis Personheis og løfteplattform

Antall: 2

Heis på 5,9 m² og løfteplattform for inntil 12 ansatte

Heis og løfteplattform for tilgjengelighet og intern transport

Tømrer Montering av trekonstruksjoner og fasadekledning

🧱 tre

Montering av trekonstruksjoner og glasskonstruksjoner for fasadekledning

Tømrerarbeid for fasade og innvendige konstruksjoner

Elektro El-tavle og ledningsnett

El-tavle på 4,9 m² og tilhørende elektroinstallasjoner

Elektriske installasjoner i bygget

Grunnarbeid Opparbeidelse av uteareal med parkering og avfallshåndtering

Opparbeidelse av uteareal med 42 parkeringsplasser inkl. 5 HC-plasser, sykkelparkering og avfallshåndtering

Uteareal med parkering og funksjoner

Dører Ytterdører og dører til trapperom

🧱 standard dørmateriale

Antall: 15

Dører til inngangspartier, trapperom og tekniske rom

Ytterdører og innvendige dører i næringsbygget

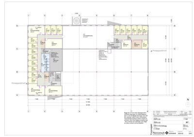
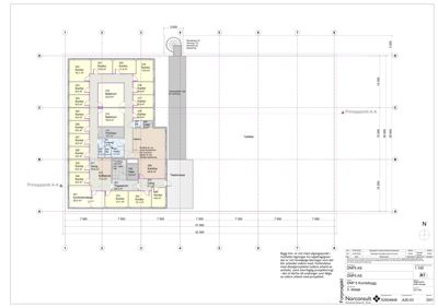
Plantegning

Enebolig 1,500.0 m²

Etasje 1 1,500.0 m²

Rom Areal Vinduer Dører
Lager-/kontorareal 01 377.1 m² 2 1
Areal-2 02 437.4 m² 0 0
Areal-3 03 185.7 m² 0 0
Areal-4 05 346.1 m² 0 0
B K 06 2.9 m² 0 0
Hc/Wc 07 5.9 m² 0 0
El-tavle 08 4.9 m² 0 0
Tekn.rom 09 6.5 m² 0 0
Entre 10 25.2 m² 0 1
Wc 11 7.3 m² 0 0
Wc 12 1.6 m² 0 0
Wc 13 1.6 m² 0 0
BK 14 2.0 m² 0 0
Gard./Vaskerom 15 17.9 m² 0 0
Prøverom 16 36.2 m² 0 0
Heis 17 5.9 m² 0 0
Trapperom-1 18 29.9 m² 0 0
Kompr.rom 19 2.9 m² 0 0
Trapperom-2 20 15.5 m² 0 0

Kontorbygg 1,050.0 m²

Etasje 2 525.0 m²

Rom Areal Vinduer Dører
Trapperom 201 20.4 m² 0 1
Heis 202 5.9 m² 0 0
Tekn.rom 203 51.3 m² 0 0
Hc/Wc 204 7.8 m² 0 0
Wc 205 2.5 m² 0 0
Wc 206 2.3 m² 0 0
Wc 207 2.3 m² 0 0
BK 208 3.6 m² 0 0
Forrom 209 7.4 m² 0 0
Print/kopi 210 7.1 m² 0 0
Kaffikrok 211 7.0 m² 0 0
Kaffikrok 212 7.8 m² 0 0
Gang 213 60.1 m² 0 0
Møterom 214 30.6 m² 0 0
Kontor 215 9.3 m² 0 1
Kontor 216 8.7 m² 0 1
Kontor 217 8.7 m² 0 1
Kontorlandskap 219 30.0 m² 0 0
Kontor 220 9.0 m² 0 1
Kontor 221 9.0 m² 0 1
Kontor 222 9.0 m² 0 1
Kontor 223 9.0 m² 0 1
Kontor 224 9.0 m² 0 1
Kontor 225 9.0 m² 0 1
Kontor 226 9.0 m² 0 1
Kontor 227 9.0 m² 0 1
Kontorlandskap 228 30.4 m² 0 0
Kontorlandskap 230 28.0 m² 0 0
Uinnredet/kontor 231 211.4 m² 0 0
Trapperom 232 15.5 m² 0 0
Gang 233 29.7 m² 0 0
Print 234 4.0 m² 0 0
Møterom 235 16.1 m² 0 0
Spiserom 236 16.9 m² 0 0
Kontor 237 9.2 m² 0 1
Kontor 238 8.3 m² 0 1
Kontor 239 8.3 m² 0 1
Kontor 240 9.1 m² 0 1
Kontor 241 9.1 m² 0 1
Kontor 242 9.1 m² 0 1
Kontor 243 9.1 m² 0 1

Etasje 3 525.0 m²

Rom Areal Vinduer Dører
Trapperom 301 20.3 m² 0 2
Heis 302 5.9 m² 0 0
HeWc 303 4.7 m² 0 0
Wc 304 2.4 m² 0 0
Wc 305 2.3 m² 0 0
Førgang 306 7.3 m² 0 0
BK 307 2.6 m² 0 0
Lager 308 2.4 m² 0 0
Kantine 309 54.9 m² 0 1
Gang 310 9.1 m² 0 0
Gang 311 70.8 m² 0 0
Kaffekrok 312 11.2 m² 0 0
Print/kopi 313 10.1 m² 0 0
Møterom 314 18.0 m² 0 0
Møterom 315 23.9 m² 0 0
Kontor 316 9.0 m² 0 0
Kontor 317 9.0 m² 0 0
Kontor 318 9.0 m² 0 0
Kontor 319 13.9 m² 0 0
Kontor 320 11.4 m² 0 0
Kontor 321 10.5 m² 0 0
Kontor 322 16.1 m² 0 0
Kontor 323 9.0 m² 0 0
Kontor 324 9.0 m² 0 0
Kontor 325 9.0 m² 0 0
Kontor 326 9.0 m² 0 0
Kontor 327 9.0 m² 0 0
Kontor 328 9.0 m² 0 0
Kontor 329 9.0 m² 0 0
Kontor 330 9.0 m² 0 0
Kontorlandskap 331 25.0 m² 0 0
Kontor 333 13.1 m² 0 0
Kontor 334 13.1 m² 0 0
Kontor 335 9.6 m² 0 0

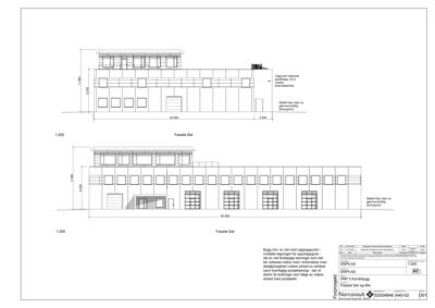
Fasader

Kombibygget

Vest
Materiale
Betong
Taktype
Flatt tak
Høyde
8.2 m
Mønehøyde
12.0 m
Vinduer
12
Dører
0
Synlige etasjer
3
Nord
Materiale
Betong
Taktype
Flatt tak
Høyde
8.2 m
Mønehøyde
12.0 m
Vinduer
11
Dører
1
Synlige etasjer
3

Enebolig

Sør
Taktype
Flatt tak
Høyde
8.2 m
Vinduer
10
Dører
1
Synlige etasjer
2
Øst
Taktype
Flatt tak
Høyde
8.2 m
Vinduer
6
Dører
0
Synlige etasjer
2

Hendelser

17.04.2026 Gbnr. 531/113 - Kopi - Arbeidstilsynet innvilger søknaden om samtykke etter automatisk saksbehandling - Digernes næringsområde 9 - Etablering av næringsbygg og utarbeiding av uteareal
05.02.2026 Gbnr. 531/113 - Igangsettingstillatelse - Digernes næringsområde 9 - Grunn- og fundamentarbeid
02.02.2026 Gbnr. 531/113 - Søknad om igangsettingstillatelse - Digernes næringsområde 9 - Etablering av næringsbygg og utarbeiding av uteareal
02.02.2026 Gbnr. 531/113 - Dokumentasjon til tidlegare søknad - Digernes næringsområde 9 - Etablering av næringsbygg og utarbeiding av uteareal
19.11.2025 Gbnr. 531/113 - Fakturagrunnlag - Digernes næringsområde 9 - Etablering av næringsbygg og utarbeiding av uteareal
17.11.2025 Gbnr. 531/113 - Vedtak - Digernes næringsområde 9 - Etablering av næringsbygg og utarbeidelse av uteareal
10.11.2025 Gbnr. 531/113 - Digernes næringsområde 9 - Etablering av næringsbygg og utarbeiding av uteareal- Intern uttale
15.10.2025 Gbnr. 531/113 - Oversendelse til intern uttale - Digernes næringsområde 9 - Etablering av næringsbygg og utarbeiding av uteareal
10.10.2025 Gbnr. 531/113 - Komplettering ved mangelfull søknad - Digernes næringsområde 9 - Etablering av næringsbygg og utarbeiding av uteareal
12.08.2025 Gbnr. 531/113 - Tilbakemelding om mangler - Digernes næringsområde - Etablering av næringsbygg og utarbeiding av uteareal
14.07.2025 Gbnr. 531/113 - Søknad om rammetillatelse - Digernes næringsområde 9 - Etablering av næringsbygg og utarbeiding av uteareal