NewConstruction Rammetillatelse Naeringsbygg

Nybygg næring og bolig med riving i Barliveien 21, Bergen

📍 Barliveien 101 , 5142 FYLLINGSDALEN

Nøkkelinfo

Sakstype
Nybygg
Bygningstype
Naeringsbygg
Bruksareal
1,365 m²
Boenheter
8
Kommune
Bergen
Fylke
Vestland
Gnr / Bnr
22 / 874
Saksnummer
BYGG-2025/16011
Fase
Rammetillatelse

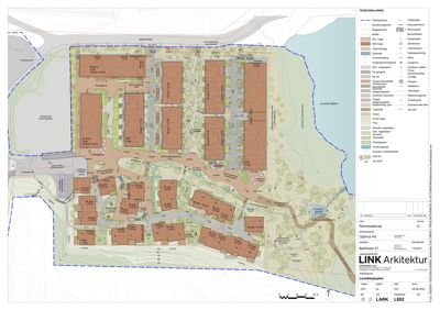
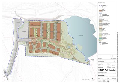
Om byggesaken

Prosjektet omfatter riving av eksisterende næringsbygg og oppføring av et nytt boligfelt med rekkehus i Barliveien 21, Fyllingsdalen, Bergen. Felt BK2 består av 8 rekkehus med totalt 1365 m² bruksareal, organisert i tre etasjer med tilhørende uteoppholdsarealer og felles garasjeanlegg under terreng. Byggene er planlagt med høy arkitektonisk kvalitet, universell utforming og bærekraftige løsninger som inkluderer massivtrekonstruksjoner, solcelleanlegg, energibrønner og overvannshåndtering. Uteområdene er utformet med blågrønne strukturer, allmenning med bekk, lekeplasser og vegetasjon som ivaretar naturmangfold og klimatilpasning. Det er lagt vekt på miljøprogram med mål om klimagassreduksjon, sirkulærøkonomi, energieffektivitet og god mobilitet med prioritering av sykkel og gange. Prosjektet har fått rammetillatelse og er i fase rammetillatelse.

Produkter og materialer

Tak Taktekking

🧱 Broof(t2)

Taktekking med brannmotstand Broof(t2)

Brannsikker taktekking

Betong Etasjeskiller og bærende konstruksjoner

🧱 Betong med brannmotstand R60-R90

Etasjeskiller og bærende konstruksjoner med brannmotstand iht. brannstrategi

Brannsikre betongkonstruksjoner

VVS Brannvannsuttak og stigeledninger

Tørropplegg/stigeledning for slokkevann i trapperom i parkeringskjeller med uttak NOR Ø65 mm

Brannvannsuttak for brannvesenets innsats

VVS Sprinkleranlegg

Automatisk sprinkleranlegg i hele bygningsmassen iht. NS-EN 12845

Brannsikring med sprinkleranlegg

Vinduer Rømningsvindu

Rømningsvinduer med min. 0,6 m høyde og 0,5 m bredde, topp- eller sidehengslet, åpnes uten verktøy, max 1 m fra gulv til underkant

Rømningsvinduer i boligene for sikker rømningsvei

Elektro Røykvarslere

Seriekoblede optiske røykvarslere i rekkehus og eneboliger, tilkoblet strøm med batteribackup

Røykvarsling i boenheter

Fasade Utvendige overflater

🧱 Granitt, betong, naturstein

Robuste materialer som tåler klimaendringer, inkludert granitt kantstein, betongstablemur, ombrukt belegningsstein

Fasade- og utearealsmaterialer med lang levetid og miljøhensyn

Solceller Takmonterte solcellepaneler

Solcelleanlegg for lokal energiproduksjon på tak

Solcelleanlegg for fornybar energi

Garasjeport Port til felles parkeringskjeller

Port til underjordisk felles garasjeanlegg

Adkomst til parkeringskjeller

Fasade Massivtrekonstruksjoner

🧱 Massivtre (CLT, LVL)

Utstrakt bruk av massivtre for karbonbinding og redusert klimagassutslipp

Bærekonstruksjoner og fasader i massivtre

Elektro Brannalarmanlegg

Heldekkende brannalarmanlegg kategori 2 med optiske og akustiske alarmorganer

Brannvarsling i bolig- og næringsbygg

Elektro Belysning

Energieffektiv belysning i uteområder og bygg

Energieffektiv belysning

Grunnarbeid Drenering og overvannsledninger

Nye stikkledninger for vann og spillvann, overvannsanlegg med sedimentering

VA-anlegg for vann, avløp og overvann

Ventilasjon Brann- og røykventilasjon

Røykventilasjon i trapperom og heissjakter iht. byggdetaljblad 520.352

Ventilasjon for brannsikkerhet

Terrasse Tredekke

🧱 Tre

Tredekke i uteområder, delvis ombrukt trestolper fra utendørs hall

Terrasse- og gangarealer i tre

Tømrer Rekkehus konstruksjon

🧱 Tre og massivtre

Antall: 8

Rekkehus i 3 etasjer med massivtrekonstruksjon og trefasader

Boligbygg i rekke med trebasert konstruksjon

Mur Natursteinsmurer

🧱 Granitt og kampestein

Tørrmurer i granitt, ombrukt naturstein og kampestein i uteområder

Murer i uteområder med naturlig uttrykk

Grunnarbeid Overvannshåndtering

Åpne blågrønne strukturer, overvannsbasseng ca 12 m³, sedimenteringsløsninger, flomvei på egen tomt

Overvannshåndtering integrert i uteområder

Gulv Ombrukt belegningsstein

🧱 Betong belegningsstein

Antall: 2200

Ombrukt betong belegningsstein fra eksisterende hall og uteområder

Gjenbruk av belegningsstein i uteområder

Varmepumpe Energibrønner og varmepumper

Energibrønner og varmepumper planlagt for energiforsyning

Fornybar energiforsyning med varmepumper

Rekkverk Balkongrekkverk

Rekkverk til balkonger med målsatte utkraginger og fri høyde over terreng

Sikring av balkonger

Grunnarbeid Forurenset grunn håndtering

Miljøtekniske grunnundersøkelser og tiltaksplan for forurenset grunn godkjent av kommunen

Tiltak for håndtering av forurenset grunn

Dører Branncellebegrensende dører

Dører med brannmotstand EI2 30-Sa, EI2 60-CSa, EI2 90-Sa avhengig av plassering, med automatisk lukking ved brann

Branncellebegrensende dører i rømningsveier og brannseksjoner

Hendelser

10.03.2026 Tilleggsopplysning- 22/874/0/0 Barliveien 21, felt BK2, nybygg - næring og bolig, samt riving
05.02.2026 Fakturagrunnlag 2025
05.02.2026 Kopi av ubw ordre 20687738 ( samlet faktura sendt i sak 2025/16008)
05.02.2026 Vedtak i byggesakene - 22/874/0/0 Barliveien 21, felt BK2, nybygg - næring og bolig, samt riving
29.01.2026 Rammetillatelse, 22/874, Barliveien 21, felt BK2
05.01.2026 Barliveien 21 Supplering av søknad 22/874
17.12.2025 Bekreftelse utsatt frist
17.12.2025 Anmodning om ytterligere utsatt frist - 22/874/0/0 Barliveien 21, felt BK2, nybygg - næring og bolig, samt riving
08.12.2025 Bekreftelse frist utsatt frist innsending tilleggsopplysninger
08.12.2025 Behov for fristutsettelse- 22/874/0/0 Barliveien 21, felt BK2, nybygg - næring og bolig, samt riving
24.11.2025 Ny frist- 22/874/0/0 Barliveien 21, felt BK2, nybygg - næring og bolig, samt riving
24.11.2025 Anmodning om ytterligere utsatt frist - 22/874/0/0 Barliveien 21, felt BK2, nybygg - næring og bolig, samt riving
28.10.2025 Fristutsettelse- 22/874/0/0 Barliveien 21, felt BK2, nybygg - næring og bolig, samt riving
28.10.2025 Ber om utsatt frist - 22/874/0/0 Barliveien 21, felt BK2, nybygg - næring og bolig, samt riving
08.10.2025 Behov for tilleggsopplysninger
23.09.2025 Bekreftelse på mottatt søknad - 22/874/0/0 Barliveien 21, felt BK2, nybygg - næring og bolig, samt riving
18.09.2025 Søknad - 22/874/0/0 Barliveien 21, felt BK2, nybygg - næring og bolig, samt riving