NewConstruction UnderBehandling Naeringsbygg

Nybygg nærings- og boligbygg med riving i Barliveien 21, Bergen

📍 Barliveien 101 , 5142 FYLLINGSDALEN

Nøkkelinfo

Sakstype
Nybygg
Bygningstype
Naeringsbygg
Bruksareal
7,146 m²
Boenheter
21
Kommune
Bergen
Fylke
Vestland
Gnr / Bnr
22 / 874
Saksnummer
BYGG-2025/16003
Fase
Under behandling

Om byggesaken

Prosjektet omfatter riving av eksisterende næringsbygg og oppføring av nytt kombinert nærings- og boligbygg i Barliveien 21, Bergen. Bygget består av 21 boenheter fordelt på eneboliger og kjedete eneboliger i 2-3 etasjer med saltak og trekledning. Det etableres parkeringsanlegg under terreng, og uteområdene opparbeides med fokus på universell utforming, overvannshåndtering og biologisk mangfold. Bygget har en samlet bruksareal på ca. 7146 m² og er prosjektert med høy miljøambisjon, inkludert bruk av massivtre, solceller og energieffektive løsninger. Utomhusplanen inkluderer grøntdrag, allmenning med overvannsbekk, lekeplasser og gangveier som knytter området til omkringliggende naturområder. Prosjektet følger gjeldende reguleringsplan og tekniske krav, med godkjente rammetillatelser og miljøoppfølgingsplan.

Produkter og materialer

Trapper Innvendig trapp

Innvendige trapper i boligene

Fasade Balkongrekkverk

Rekkverk på balkonger

Isolasjon Bygningsisolasjon

Isolasjon i vegger, tak og gulv for energieffektivitet

Mur Tørrmurer i granitt

🧱 Granitt

Tørrmurer i utomhusområder, liten maskinstein granitt

Opparbeiding av tørrmurer i uteområdene

Vinduer Fasadevindu

Antall: 15

Fasadevinduer i boligene, antall ca. 15

VVS VA-anlegg

Nye vann- og spillvannsledninger, overvannsanlegg, pumpestasjoner og sprinkleranlegg i garasje

Vann- og avløpsanlegg med tilhørende tekniske installasjoner

Grunnarbeid Riving og grunnarbeid

Riving av eksisterende bygg 3 og 4, grunnarbeid for nytt bygg

Riving av eksisterende bygg og grunnarbeid for nytt bygg

Fasade Trekledning

🧱 Tre

Trekledning på fasader, saltak med teglstein

Fasade med trekledning og saltak teglstein på boligene

Terrasse Private terrasser og balkonger

Balkonger med maks utkraging 1,2 m og fri høyde over terreng 2,5 m

Private balkonger og terrasser til boligene

Solceller Takmonterte solcellepaneler

Solenergiproduksjon planlagt for området, ca. 65 MW

Solcelleanlegg for lokal energiproduksjon

Maling Innvendig og utvendig maling

Maling av innvendige og utvendige flater

Garasjeport Port til underjordisk parkeringsanlegg

Antall: 1

Garasjeport til parkeringsanlegg under terreng

Grunnarbeid Ombruk av utendørs belegningsstein og kantstein

🧱 Betong, granitt

Ombruk av ca. 2200 m2 betongbelegningsstein, kantstein i granitt, storgatestein, drensrenner og betongstablemur

Ombruk av eksisterende utendørs materialer i uteområdene

Dører Ytterdør

Antall: 5

Ytterdører i boligene, antall ca. 5

Gulv Innvendige gulv

Innvendige gulv i boligene

Ventilasjon Ventilasjonssystem

Ventilasjon i boligene og næringsdelen

Tak Saltak

🧱 Teglstein

Saltak med teglstein

Saltak med teglstein på boligene

Elektro Belysning uteområder

Energieffektiv belysning med lavt strømforbruk i uteområder

Utendørsbelysning med energieffektive armaturer

Betong Parkeringskjeller

Parkeringskjeller under terreng

Betongkonstruksjon for parkeringskjeller under terreng

Fasader

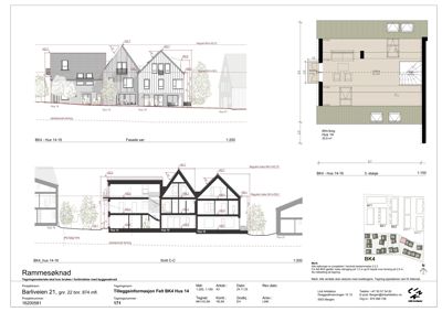
Hus 14

Sør
Materiale
Tre
Taktype
Saltak
Takmat.
Tegl
Høyde
6.2 m
Mønehøyde
8.2 m
Vinduer
3
Dører
1
Synlige etasjer
2

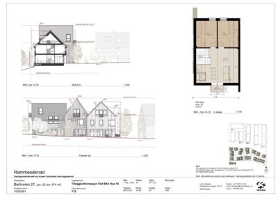
Hus 15

Sør
Materiale
Tre
Taktype
Saltak
Takmat.
Tegl
Høyde
6.3 m
Mønehøyde
8.4 m
Vinduer
4
Dører
1
Balkonger
1
Synlige etasjer
2

Hus 16

Sør
Materiale
Tre
Taktype
Saltak
Takmat.
Tegl
Høyde
6.3 m
Mønehøyde
8.4 m
Vinduer
4
Dører
1
Balkonger
1
Synlige etasjer
2

Hendelser

10.03.2026 Tilleggsdokumenter- 22/874/0/0 Barliveien 21, felt BK4, nybygg - næring og bolig, samt riving
05.02.2026 Fakturagrunnlag 2025
05.02.2026 Kopi av ubw ordre 20687738 ( faktura sendt ut i sak 2025/16008)
05.02.2026 Vedtak i byggesakene - 22/874/0/0 Barliveien 21, felt BK4, nybygg - næring og bolig, samt riving
29.01.2026 Rammetillatelse, 22/874, Barliveien 21, felt BK4
05.01.2026 Barliveien 21 Supplering av søknad 22/874
17.12.2025 Bekreftelse ny frist
17.12.2025 Anmodning om ytterligere utsatt frist - 22/874/0/0 Barliveien 21, felt BK4, nybygg - næring og bolig, samt riving
08.12.2025 Bekreftelse frist utsatt innsending tilleggsopplysninger
08.12.2025 Behov for fristutsettelse- 22/874/0/0 Barliveien 21, felt BK4, nybygg - næring og bolig, samt riving
24.11.2025 Ny frist- 22/874/0/0 Barliveien 21, felt BK4, nybygg - næring og bolig, samt riving
24.11.2025 Anmodning om ytterligere utsatt frist - 22/874/0/0 Barliveien 21, felt BK4, nybygg - næring og bolig, samt riving
28.10.2025 Fristutsettelse- 22/874/0/0 Barliveien 21, felt BK4, nybygg - næring og bolig, samt riving
28.10.2025 Ber om utsatt frist - 22/874/0/0 Barliveien 21, felt BK4, nybygg - næring og bolig, samt riving
08.10.2025 Behov for tilleggsopplysninger
26.09.2025 Bekreftelse på mottatt søknad - 22/874/0/0 Barliveien 21, felt BK4, nybygg - næring og bolig, samt riving
18.09.2025 Søknad - 22/874/0/0 Barliveien 21, felt BK4, nybygg - næring og bolig, samt riving