NewConstruction Soeknad Naeringsbygg

Ny nødstrømsbod og parkeringsoverbygg i Bogsnesvegen 16, Husnes

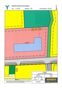
📍 Bogsnesvegen 16 , 5460 HUSNES

Nøkkelinfo

Sakstype
Nybygg
Bygningstype
Naeringsbygg
Bruksareal
72 m²
Kommune
Kvinnherad
Fylke
Vestland
Gnr / Bnr
144 / 141
Saksnummer
2026/3069
Fase
Søknad

Om byggesaken

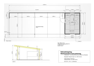
Ny frittstående nødstrømsbod på 17,2 m² med flatt tak og trekledning, tilknyttet Husnes Hovedbrannstasjon, inkludert parkeringsoverbygg på 57 m². Bygget har gesimshøyde på 2,52 m mot nord, sør og øst, og 3,34 m mot vest, med pipe og garasjeport på sørfasade. Nødstrømsboden er uisolert og plassert nær nabogrense med godkjent dispensasjon. Parkeringsoverbygget er del av tiltaket, og anlegget er tilpasset offentlig beredskapsfunksjon med hensyn til logistikk og manøvreringsareal. Tiltaket er plassert over eksisterende parkeringsplass og påvirker ikke terreng.

Produkter og materialer

Garasjeport Garasjeport på sørfasade

Antall: 1

Garasjeport på sørfasade i nødstrømsbod

Garasjeport for parkeringsoverbygg

Tak Flatt tak

Flatt tak på nødstrømsbod og parkeringsoverbygg

Taktekking for flatt tak på bygningene

Tømrer Trekonstruksjoner

🧱 Tre

Tømrerarbeid og trekonstruksjoner for bod og overbygg

Trekonstruksjoner for nødstrømsbod og parkeringsoverbygg

Dører Ytterdør i tre

🧱 Tre

Antall: 1

1 dør på vestfasade

Ytterdør til nødstrømsbod

Betong Betongfundament

Betongfundament for bygg og parkeringsoverbygg

Betongfundament for bygg og overbygg

Elektro Tekniske installasjoner

Elektroinstallasjoner knyttet til nødstrømsaggregat og bygning

Elektroarbeid for nødstrømsbod og parkeringsoverbygg

Fasade Trekledning

🧱 Tre

Trekledning på nødstrømsbod med flatt tak

Yttervegger i trekledning for nødstrømsbod

Vinduer Fasadevindu

🧱 Tre

Antall: 2

1 vindu på nordfasade, 1 vindu på sørfasade

Fasadevindu i nødstrømsbod

Pipe Pipe på nødstrømsbod

Antall: 1

Pipe på alle fasader, til nødstrømsaggregat

Pipe for nødstrømsaggregat i bod

Terrasse Parkeringsoverbygg

🧱 Tre

Parkeringsoverbygg på 57 m² med trekonstruksjon

Overbygg for parkering ved brannstasjon

Maling Utvendig maling

Maling av trekledning og utvendige flater

Overflatebehandling av trekledning og utvendige bygningsdeler

Grunnarbeid Fundamentering og grunnarbeid

Grunnarbeid for nødstrømsbod og parkeringsoverbygg

Fundamentering og grunnarbeid for byggene

VVS Nødstrømsaggregat installasjon

Antall: 1

Installasjon av nødstrømsaggregat i bod

Tekniske installasjoner for nødstrømsaggregat

Fasader

Nødstrømsbod

Nord
Materiale
Tre
Taktype
Flatt tak
Høyde
2.5 m
Vinduer
1
Dører
0
Synlige etasjer
1
Sør
Materiale
Tre
Taktype
Flatt tak
Høyde
2.5 m
Vinduer
1
Dører
0
Synlige etasjer
1
Øst
Materiale
Tre
Taktype
Flatt tak
Høyde
2.5 m
Vinduer
0
Dører
0
Synlige etasjer
1
Vest
Materiale
Tre
Taktype
Flatt tak
Høyde
3.3 m
Vinduer
0
Dører
1
Synlige etasjer
1

Hendelser

13.04.2026 Stadfesting på mottatt søknad - Eitt-trinns søknad - 144/141
01.04.2026 Søknad om tiltak - Eitt-trinns - 144/141