NewConstruction Ferdigattest Naeringsbygg

Ny sjøbud for næringsvirksomhet i Buholmvegen, Fosnavåg

📍 Buholmvegen 1 , 6091 FOSNAVÅG

Nøkkelinfo

Sakstype
Nybygg
Bygningstype
Naeringsbygg
Bruksareal
212 m²
Kommune
Herøy (Møre og Romsdal)
Fylke
Møre og Romsdal
Gnr / Bnr
29 / 380
Saksnummer
2025/273
Fase
Ferdigattest

Om byggesaken

Ny sjøbud på to etasjer med totalt bruksareal på 212 m² oppføres på eiendommen Buholmvegen, Fosnavåg. Bygget erstatter et eldre naust som rives, og skal benyttes til næringsvirksomhet knyttet til Reitefisk AS, inkludert installasjon av ismaskin og lager for utstyr til fiskebåtdrift. Bygget har mønehøyde på 7,9 m, saltak og flatt tak, og er tilpasset dagens og fremtidig havnivå. Tiltaket inkluderer også opparbeidelse av veg og terrenginngrep for tilkomst. Bygget er plassert nær sjø og kai, med dispensasjon fra flere kommuneplanbestemmelser, og er godkjent med vilkår om dokumentasjon av riving og tilknytning til vann og avløp. Det er gjennomført komplett ansvarsrett og ferdigattest er gitt.

Produkter og materialer

Maling Utvendig trebeskyttelse

🧱 Maling/trebeskyttelse

Overflatebehandling av trefasader

Terrasse Tilkomstveg

🧱 Steinmasser

Opparbeidelse av tilkomstveg med steinmasser

Veg for tilkomst til sjøbud

Dører Ytterdører

🧱 Tre

Antall: 2

Ytterdører til sjøbud

Avfallshåndtering Avfallsplan og sluttrapport

Avfallsplan og sluttrapport for riving og nybygg, inkl. miljøsanering

Planlegging og dokumentasjon av avfallshåndtering

VVS Vann og overvann

Innlagt vann i naust, tilknytning til privat vannverk og avløpsanlegg

VVS-installasjoner for vann og overvann

Betong Fundament og avrettningslag

Fundament/avrettningslag av sprengstein

Betongarbeid for fundamentering og avretting av sjøbud

Grunnarbeid Tomteplanering og terrenginngrep

🧱 Steinmasser

Planering av tomt, opparbeidelse av veg og terrenginngrep

Grunnarbeid for opparbeidelse av tomt og tilkomstveg

Tømrer Bygging av sjøbud

🧱 Tre

To etasjer, saltak og flatt tak, fasade i tre

Tømrerarbeid for oppføring av nytt sjøbud i tre

Elektro El-installasjoner

Avklaring med Linja om høyspent og trafo, ingen innvendinger

Elektriske installasjoner og tilknytning til høyspentnett

Vinduer Fasadevindu

🧱 Tre

Antall: 9

Vindusareal ca. 4,7 m² i første etasje og 5,2 m² i andre etasje

Vinduer for dagslys i næringsbygget

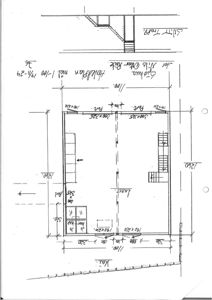
Plantegning

Uthus 14.0 m²

Etasje 1 14.0 m²

Rom Areal Vinduer Dører
Uthus 101 14.0 m² 0 2

Garasje 0.0 m²

Etasje 1 0.0 m²

Rom Areal Vinduer Dører
Lager/redskap 101 0.0 m² 0 0
Maskin 102 0.0 m² 0 0

Fasader

Søhus

Nord
Materiale
Tre
Taktype
Saltak
Vinduer
4
Dører
2
Synlige etasjer
2
Vest
Materiale
Tre
Taktype
Flatt tak
Vinduer
0
Dører
0
Synlige etasjer
1

Garasje

Sør
Materiale
Tre
Taktype
Saltak
Vinduer
2
Dører
2
Synlige etasjer
1
Øst
Materiale
Tre
Taktype
Flatt tak
Vinduer
1
Dører
1
Synlige etasjer
1

Hendelser

23.04.2026 Ferdigattest - Riving/bygge ny sjøbud, veg og terrenginngrep - - gnr 29 bnr 380
12.03.2026 Søknad om ferdigattest - gnr 29 bnr 380
30.04.2025 Løyve til tiltak - Riving/bygge ny sjøbud, veg og terrenginngrep - gnr 29 bnr 380
14.04.2025 Fråsegn - riving/bygging av ny sjøbu, veg og terrenginngrep - gnr 29 bnr 380 - dispensasjon frå kommuneplan
11.04.2025 Uttale til revidert søknad - riving av naust og oppføring av næringsbygg, veg og terrenginngrep - gnr 29 bnr 380
10.04.2025 Til ny uttale - dispensasjon - gnr 29 bnr 380 - Buholmvegen - riving - bygging sjøbud / næringsbygg - veg - terrenginngrep
31.03.2025 Oversending av søknad til ny uttale - Riving/bygge ny sjøbud, veg og terrenginngrep - gnr 29 bnr 380
20.03.2025 Riving/bygging av ny sjøbu, veg og terrenginngrep - gnr 29 bnr 380 - dispensasjon frå kommuneplan
11.03.2025 Vedlegg til søknad - gnr 29 bnr 380
06.03.2025 Uttale - dispensasjon - gnr 29 bnr 380 - Buholmvegen - riving - ny sjøbud / næringsbygg - veg - terrenginngrep
03.03.2025 Uttale til dispensasjon for riving/bygging av ny sjøbu, veg og terrenginngrep - gnr 29 bnr 380
25.02.2025 Uttale til søknad om dispensasjon - riving og bygge ny sjøbud, veg og terrenginngrep - gnr 29 bnr 380
19.02.2025 Fråsegn - riving/bygging av ny sjøbu, veg og terrenginngrep - gnr 29 bnr 380 - dispensasjon frå kommuneplan
14.02.2025 Oversending av søknad til uttale - Riving/bygge ny sjøbud, veg og terrenginngrep - gnr 29 bnr 380
06.02.2025 Søknad om løyve - rive/bygge nytt naust - gnr 29 bnr 380