NewConstruction UnderBehandling Naeringsbygg

Nytt klubbhus med lager i Busdalen, Øystese

📍 Busdalen

Nøkkelinfo

Sakstype
Nybygg
Bygningstype
Naeringsbygg
Bruksareal
663 m²
Kommune
Kvam
Fylke
Vestland
Gnr / Bnr
44 / 701
Saksnummer
25/5075
Fase
Under behandling

Om byggesaken

Ny to-etasjes klubbhus for Øystese Fotballklubb med tilhørende lagerbygg i Busdalen, Øystese. Klubbhuset har et samlet bruksareal på ca. 461 m² og lageret ca. 202 m², totalt ca. 663 m². Bygget er tilpasset skrånende terreng med tilfylt underetasje og tradisjonell trekledning. Klubbhuset inneholder garderober, sosialt rom, kontorer, kafé, møterom, HCWC og lagerfunksjoner. Det er planlagt universell utforming i henhold til TEK17. Byggetrinn 1 omfatter klubbhus, lager og gangveg til eksisterende kommunal parkeringsplass, som benyttes for parkering. Bygget ligger utenfor 200-års flaumssone, med tilkomst via eksisterende traktorveg. Prosjektet inngår i en større planlagt idrettsutbygging med fotballbane, friidrettsanlegg og tribuner i byggetrinn 2. Det er søkt dispensasjon fra gjeldende reguleringsplan som har formål barnehage, men tiltaket er i tråd med nyere kommuneplan og pågående områdeplan for idrettsanlegg i Busdalen.

Produkter og materialer

Grunnarbeid Terrengtilpasning og fundamentering

Tilfylt underetasje, geoteknisk prosjektering og fundamentering i skrånende terreng

Grunnarbeid for bygging i skrånende terreng med geoteknisk vurdering

Dører Ytterdører og innvendige dører

Antall: 15

Ytterdører og innvendige dører i klubbhus og lager

Dører for adkomst og rominndeling

Vinduer Fasadevindu

Antall: 14

Vinduer i fasade, antall ca. 14

Fasadevindu i klubbhusets sosiale rom, kontorer og møterom

Elektro Strømtilførsel og belysning

Strømtilkobling via Haringnett AS, lokal belysning på bygget, ingen ny vegbelysning

Elektrisk installasjon og belysning

Grunnarbeid Drenering og overvannshåndtering

Åpen overvannsgrøft bak bygg for infiltrasjon, fordrøying og avledning av overvann, sandfang for takvann

Overvannshåndtering i henhold til VA-norm

Terrasse Gangveg

Ny gangveg fra eksisterende kommunal parkeringsplass til klubbhus, bredde 2,5 m, tilrettelagt for teknisk infrastruktur

Gangveg for tilkomst og teknisk infrastruktur

Trapper Innvendig trapp

Antall: 2

Innvendige trapper i klubbhus og garderobe/lagerbygg

Trapper mellom etasjer

Tak Saltak

Tradisjonelt saltak

Tak med tradisjonell saltakform

Betong Fundament og bærende konstruksjoner

Betongfundament og bærende konstruksjoner i underetasje

Betongkonstruksjoner for klubbhus og lager

Renovasjon Avfallsbeholdere

Antall: 4

Beholdere for restavfall (660 l), matavfall (240 l), papir/papp (660 l) og sekkeløsning for plast

Renovasjonsløsning med tilstrekkelig kapasitet og tilkomst for renovasjonsbil

Fasade Trekledning

🧱 Trekledning

Tradisjonell utforming med trekledning tilpasset området

Utvendig fasade med trekledning

Maling Innvendig maling

Innvendig maling av vegger og tak

Ventilasjon Ventilasjonsanlegg

Ventilasjonsanlegg for klubbhus

Fiber Fiberkabel

Fiber tilkobling via eksisterende trasé parallelt med strømtilførsel

Fiberoptisk tilkobling for kommunikasjon

VVS Brannvann

Nytt brannvannutak (VK1) med Baioløsning i henhold til standard

Brannvannforsyning til klubbhus

Isolasjon Bygningsisolasjon

Isolasjon i vegger, tak og gulv i henhold til TEK17

VVS Sanitæranlegg

13 WC og 20 dusjer, tilkopling til kommunalt vann- og avløpsnett

Sanitæranlegg med garderober og HCWC

Gulv Gulvbelegg

Gulvbelegg i garderober, sosialt rom og kontorer

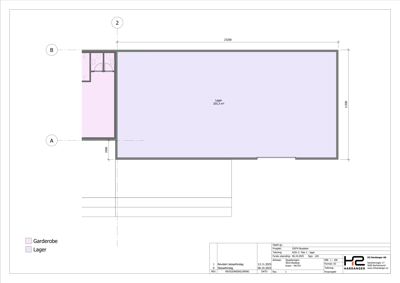
Plantegning

Garderobe 51.3 m²

Etasje 1 51.3 m²

Rom Areal Vinduer Dører
Anna Anna 51.3 m² 0 1
Garderobe Garderobe 173.4 m² 0 0
Lager Lager 202.0 m² 0 0

Klubbhus 252.0 m²

Etasje 1 252.0 m²

Rom Areal Vinduer Dører
Sosialt rom 101 101.4 m² 3 1
Vrimleareal 102 36.7 m² 0 2
Vrimleareal 103 29.9 m² 0 2
Rom for arrangement 104 10.8 m² 1 1
Kontor 105 6.1 m² 1 1
Kontor 106 6.1 m² 1 1
Kontor 107 6.1 m² 1 1
Kontor 108 6.1 m² 1 1
Møterom 109 10.3 m² 1 1
HCWC 110 3.8 m² 0 1
HCWC 111 3.8 m² 0 1
BK 112 1.9 m² 0 0
Loft 113 1.8 m² 0 0
HCWC 114 4.8 m² 0 1

Hendelser

21.04.2026 NVE sin uttale til høyring av rammesøknad og dispensasjon frå reguleringsplan for Klubbhus for idrett i Busdalen i Øystese, gnr. 44, bnr. 701, Kvam herad
21.04.2026 Dispensasjon frå reguleringsplan - gnr. 44 bnr. 701 - Kvam herad
20.04.2026 Uttale til søknad om dispensasjon - klubbhus for idrett - gnr. 44 bnr. 701 - Busdalen - Kvam herad
27.03.2026 Innhenting av uttale til rammesøknad og dispensasjon frå reguleringsplan på gnr 44, bnr 701 i Busdalen i Øystese, Kvam herad. Gjeld klubbhus for idrett
09.03.2026 Supplering av søknad 44/701
16.02.2026 Kvam - kommentar frå kommunegeologen - 44/701 Busdalen (klubbhus)
12.02.2026 Kommentarar til Teknisk plan
06.02.2026 Søknad om dispensasjon og rammeløyve på gnr 44, bnr 701 i Busdalen i Øystese. Svar på merknad
05.02.2026 Søknad om rammeløyve på gnr 44, bnr 701 i Busdalen i Øystese. Klubbhus for idrett
05.02.2026 Førebels svar på søknad om dispensasjon og rammeløyve på gnr 44, bnr 701 i Busdalen i Øystese. Klubbhus for idrett
17.11.2025 Referat frå førehandskonferanse - dispensasjonssøknad om bygging av klubbhus i Busdalen
13.11.2025 Informasjon til førehanskonferanse 13.11. Klubbhus i Busdalen