NewConstruction UnderBehandling Naeringsbygg

Ny vaskehall for automatisk maskinvask i Dalegata 71, Kristiansund

📍 Dalegata 63 , 6516 KRISTIANSUND N

Nøkkelinfo

Sakstype
Nybygg
Bygningstype
Naeringsbygg
Bruksareal
84 m²
Kommune
Kristiansund
Fylke
Møre og Romsdal
Gnr / Bnr
10 / 50
Saksnummer
26/02754
Fase
Under behandling

Om byggesaken

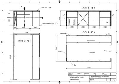
Ny frittstående vaskehall på ca. 84 m² med dimensjoner ca. 7 x 12 meter oppføres i Dalegata 71, Kristiansund. Bygget utføres med bærende stålkonstruksjoner og sandwichpaneler, med flatt tak og gesimshøyde på ca. 4 meter. Vaskehallen er selvbetjent og inngår som del av eksisterende bilvaskanlegg. Bygget har branncelleklasse EI 30, med brannmotstand i fasader og tak, og er prosjektert med hensyn til brannsikkerhet, rømningsveier, og tekniske installasjoner som vann, avløp og oljeutskiller. Det er én etasje, med dører på øst- og vestfasade, og bygget er tilknyttet offentlig vann- og avløpsnett. Vaskevannet føres via oljeutskiller før tilkobling til kommunalt avløp. Bygget er plassert nær eksisterende bebyggelse og har branntekniske tiltak for å hindre brannspredning. Prosjektet har full ansvarsrett og er godkjent av relevante myndigheter.

Produkter og materialer

Betong Betongplate

🧱 Betong

Betongplate som fundament for vaskehall

Betongplate for byggverkets fundament

Brannvern Håndslokkeapparater og brannslanger

Håndslokkeapparater minimum 6 kg ABC-pulver eller skum/vannapparater, brannslanger NS-EN 671-1

Manuelt slokkeutstyr plassert i byggverket

Elektro Brannalarmanlegg og nødlys

Seriekoblet røykvarslere, nødlys og utgangsskilt iht. NS-standarder

Elektriske installasjoner for brannvarsling og nødlys

Grunnarbeid Grunnarbeid og VA

Grunnarbeid, vann- og avløpsinstallasjon med oljeutskiller

Grunnarbeid og tilknytning til offentlig vann- og avløpsnett med oljeutskiller

Dører Brannklassifiserte dører

Antall: 2

Dører med brannmotstand EI₂ 30-Sa [B 30], med anslag, terskel og tettelister for røyktetthet

Brannklassifiserte dører på øst- og vestfasade

Fasade Sandwichelementer i fasade

🧱 Sandwichelementer med ubrennbare konstruksjoner og Rockwool isolasjon

Sandwichelementer minst klasse B-s1,d0 eller Eurefic-klasse A, brannmotstand REI 30 mot nabobygg

Fasadeelementer i sandwich med brannmotstand for å hindre brannspredning

Tak Flatt tak med brannmotstand

🧱 Sandwichelementer med ubrennbare materialer og isolasjon A2-s1,d0

Tak med brannmotstand EI 30, flatt tak

Tak med brannmotstand og isolasjon i sandwichkonstruksjon

Maling Brannmaling for stålkonstruksjoner

Brannmaling på synlige sider av stålkonstruksjoner der brannisolasjon ikke kan benyttes

Brannbeskyttelse av stålkonstruksjoner med maling der nødvendig

Stål Bærende stålkonstruksjoner

🧱 Stål med brannisolasjon Conlit eller tilsvarende på synlige sider

Brannisolering av stålkonstruksjoner for R15 (B15) brannmotstand

Bærende stålkonstruksjoner med brannbeskyttelse

VVS Sanitærinstallasjon

Etablering av vann og avløp over terreng, inkludert oljeutskiller

Sanitærinstallasjoner for vaskehallens vann- og avløpssystem

Fasader

Vaskehall

Utkjøring
Materiale
Betong
Høyde
4.0 m
Vinduer
0
Dører
0
Synlige etasjer
1
Innkjøring
Materiale
Betong
Høyde
4.0 m
Vinduer
0
Dører
0
Synlige etasjer
1
Vest
Materiale
Betong
Høyde
4.0 m
Vinduer
0
Dører
1
Synlige etasjer
1
Øst
Materiale
Betong
Høyde
4.0 m
Vinduer
0
Dører
1
Synlige etasjer
1

Hendelser

15.04.2026 26/02754-1 Dalegata 71 - Søknad om nytt bygg - Over 70 m2 -Ikke boligformål