NewConstruction Ferdigattest Naeringsbygg

Oppføring av motorhus og sanitærbygg ved Brottet kystkultursenter, Spjærøy

📍 Dypedalsveien 45 , 1684 VESTERØY

Nøkkelinfo

Sakstype
Nybygg
Bygningstype
Naeringsbygg
Bruksareal
32 m²
Kommune
Hvaler
Fylke
Østfold
Gnr / Bnr
42 / 280
Saksnummer
2022/83
Fase
Ferdigattest

Om byggesaken

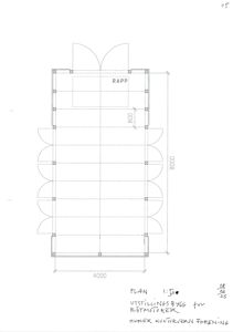
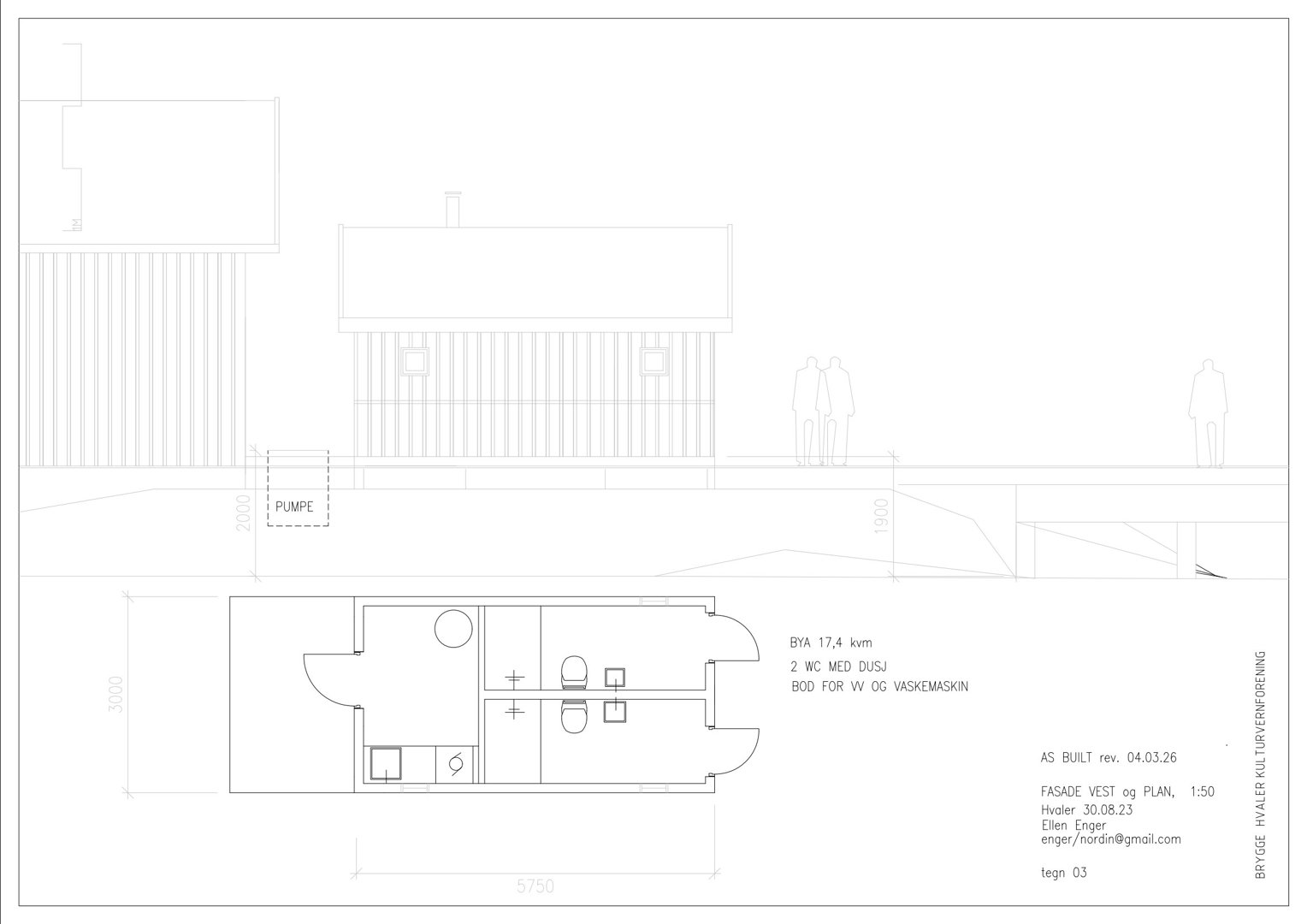
Ny frittliggende uisolert motorhus på ca. 32 m² med saltak i tre, beregnet for utstilling av gamle båtmotorer, samt et tilhørende sanitærbygg. Motorhuset har mønehøyde på ca. 4 meter og gesimshøyde på 2,4 meter, og er plassert i ett plan uten kjeller. Sanitærbygget er tilknyttet vann- og avløpsinstallasjoner utført av Hvaler Rørleggerbedrift AS. Begge byggene er tilpasset kystkultursenterets formål og ligger på eiendommen Dypedalsveien, Spjærøy. Byggene har tre som hovedmateriale i fasader og saltak som takkonstruksjon. Prosjektet er ferdigstilt med søknad om ferdigattest innsendt og godkjent.

Produkter og materialer

Tømrer Byggkonstruksjon i tre

🧱 Tre

Tømrerarbeid for oppføring av trebygninger med saltak

Tømrerarbeid for motorhus og sanitærbygg

Tak Saltak

Saltak på motorhus og sanitærbygg, mønehøyde ca. 4 m, gesimshøyde 2,4 m

Saltakskonstruksjon for motorhus og sanitærbygg

VVS Sanitæranlegg

Vann- og avløpsinstallasjoner utført av Hvaler Rørleggerbedrift AS, inkludert tilkobling til eksisterende pumpestasjon og VA-ledninger i PE og PP materialer

Sanitærinstallasjoner for sanitærbygg

Dører Ytterdør i tre

🧱 Tre

Antall: 3

Ytterdører i tre, inkludert dør til utstillingshall og sanitærbygg

Ytterdører i tre til motorhus og sanitærbygg

Maling Utvendig maling

Overflatebehandling av trefasader med maling eller beis

Maling/beis til utvendige treflater

Grunnarbeid Fundamentering og grunnarbeid

Grunnarbeid for fundamentering av motorhus og sanitærbygg på eiendommen

Grunnarbeid og fundamentering for nye bygg

Fasade Trepanel

🧱 Tre

Tre som hovedmateriale i fasader på motorhus og sanitærbygg

Trepanel til fasader på motorhus og sanitærbygg

Vinduer Fasadevindu

🧱 Tre

Antall: 7

Vinduer i tre i utstillingsbyggets fasader, totalt 7 stk fordelt på nord, sør og vest fasader

Fasadevindu i tre til utstillingsbygg

Plantegning

Utstillingsbygg 32.0 m²

Etasje 1 32.0 m²

Rom Areal Vinduer Dører
Utstillingshall 101 32.0 m² 0 1
RAPP 32.0 m² 0 1

Fasader

Bod

Vest
Materiale
Tre
Taktype
Saltak
Vinduer
2
Dører
1
Synlige etasjer
1

Båtotorer

Sør
Materiale
Tre
Taktype
Flatt tak
Vinduer
4
Dører
0
Synlige etasjer
1

Utstillingsbygg

Nord
Materiale
Tre
Taktype
Saltak
Høyde
4.5 m
Mønehøyde
6.0 m
Vinduer
4
Dører
0
Synlige etasjer
1
Øst
Taktype
Saltak
Vinduer
0
Dører
0
Synlige etasjer
1
Vest
Materiale
Tre
Taktype
Saltak
Vinduer
0
Dører
0
Synlige etasjer
1
Sør
Materiale
Tre
Taktype
Flatt tak
Vinduer
3
Dører
0
Synlige etasjer
1

Utstillingsbygg for båtmotorer

Vest
Materiale
Tre
Taktype
Saltak
Vinduer
0
Dører
1
Synlige etasjer
1

Utsbygg

Sør
Vinduer
0
Dører
0
Synlige etasjer
1

Servicebygg

Sør
Vinduer
0
Dører
0
Synlige etasjer
1

Båtbyggeri

Sør
Vinduer
0
Dører
0
Synlige etasjer
1

Hendelser

29.03.2026 Søknad om ferdigattest - Brottet sanitærbygg - 42/183 og 42/280 - Dypedalsveien
18.03.2026 Søknad om ferdigattest - Brottet Sanitærbygg - 42/183 og 42/280 - Dypedalsveien
15.07.2025 Oppdaterte tegninger - Servicebygg
02.04.2025 Motorhus - 42/183 og 42/280 - Kystmuseet - Brottet kystkultursenter - Dypedalsveien, Spjærøy
02.04.2025 Søknad - uisolert bygning for utstilling av gamle båtmotorer - 42/183 og 42/280 - Kystmuseet, Brottet kystkultursenter - Dypedalsveien, Spjærøy
31.03.2025 Søknad - oppføring av motorbygg - utfyllende opplysninger - 42/183 og 42/280 - Kystmuseet - Brottet kystkultursenter - Dypedalsveien, Spjærøy
10.02.2025 Søknad - uisolert bygning for utstilling av gamle båtmotorer - 42/280 - Brottet kystkultursenter