Facade
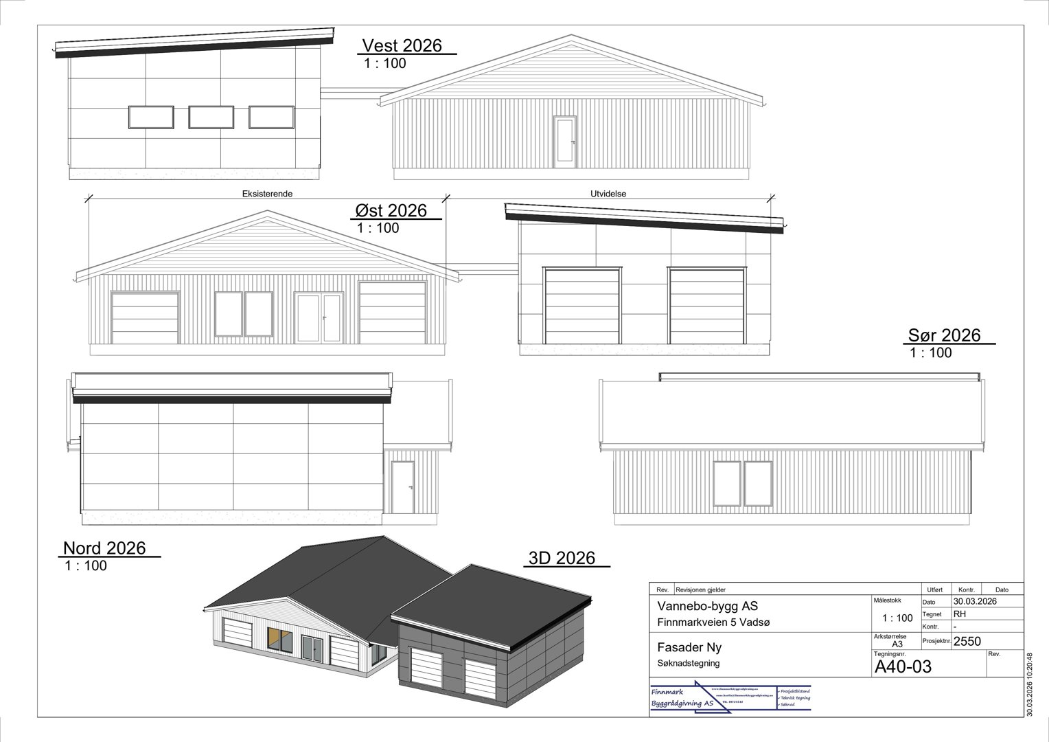
Fasadetegning som viser bygningens utsyn fra alle fire sider (Nord, Sør, Øst, Vest) samt en 3D-visualisering.
1 / 6
NewConstruction
Soeknad
Naeringsbygg
Ny lagerbygning i Finnmarksveien 5, Vadsø
📍 Finnmarksveien 5 , 9801 VADSØ
Nøkkelinfo
- Sakstype
- Nybygg
- Bygningstype
- Naeringsbygg
- Bruksareal
- 120 m²
- Kommune
- Vadsø
- Fylke
- Finnmark - Finnmárku - Finmarkku
- Gnr / Bnr
- 8 / 1090
- Saksnummer
- 2026/1461
- Fase
- Søknad
Om byggesaken
Ny frittstående lagerbygning på ca. 120 m² bruttoareal oppføres i Finnmarksveien 5, Vadsø. Bygget utføres som en sandwich-konstruksjon med lakkert metall som overflate. Lagerbygningen har en bæresystem av stål og fundamenteres med plasstøpt betong. Bygget plasseres nær tomtegrensen mot nord, med en avstand under 4 meter. Det er planlagt montering av glasskonstruksjoner og fasadekledning i metall. Bygget har et flatt tak og er tilpasset gjeldende reguleringsplan med en utnyttelsesgrad på 17,37 %.
Produkter og materialer
Fasade
Fasadekledning i metall
🧱 Lakkert metall sandwich-panel
Sandwich-konstruksjon med lakkert metall overflate
Fasadekledning for lagerbygning i sandwich-konstruksjon
Tømrer
Montering av veggelementer
Montering av veggelementer i sandwich-konstruksjon
Tømrerarbeid for vegger i lagerbygning
Grunnarbeid
Tomtearbeid og fundamentering
Grunnarbeid for ny lagerbygning
Stål
Bæresystem av stål
🧱 Stål
Montering av bærende metallkonstruksjoner
Bæresystem for lagerbygning
Vinduer
Glasskonstruksjoner
🧱 Glass
Montering av glasskonstruksjoner i fasade
Vinduer og glasspartier i lagerbygning
Betong
Plasstøpte betongfundamenter og gulv på grunn
🧱 Betong
Fundamentering og gulv på grunn i plasstøpt betong
Fundamentering for lagerbygning
Tak
Flatt tak
Flatt tak på lagerbygning
Plantegning
Enebolig 192.6 m²
Etasje 1 192.6 m²
| Rom | Areal | Vinduer | Dører |
|---|---|---|---|
| Stue 101 | 84.0 m² | 2 | 2 |
| Gang 102 | 12.0 m² | 0 | 2 |
| Bad 103 | 8.0 m² | 0 | 1 |
| Vaskerom 104 | 6.0 m² | 0 | 1 |
| Sove 105 | 14.0 m² | 1 | 1 |
| Garasje 106 | 109.0 m² | 2 | 1 |
Fasader
Enebolig
Vest
- Materiale
- Tre
- Taktype
- Flatt tak
- Vinduer
- 3
- Dører
- 0
- Synlige etasjer
- 1
Øst
- Materiale
- Tre
- Taktype
- Saltak
- Vinduer
- 4
- Dører
- 1
- Synlige etasjer
- 1
Nord
- Materiale
- Tre
- Taktype
- Saltak
- Vinduer
- 4
- Dører
- 1
- Synlige etasjer
- 1
Sør
- Materiale
- Tre
- Taktype
- Pulttak
- Vinduer
- 2
- Dører
- 0
- Synlige etasjer
- 1
Utvidelse
Sør
- Materiale
- Tre
- Taktype
- Flatt tak
- Vinduer
- 0
- Dører
- 0
- Synlige etasjer
- 1
Hendelser
15.04.2026
Søknad om rammetillatelse - GBNR 8/1090 - Finnmarksveien 5