Photo
Fotografi av et snødekt industriområde (Ballangen) med flere bygninger merket med tall og en oversiktsliste over funksjonene til bygningene.
1 / 4
NewConstruction
Rammetillatelse
Naeringsbygg
Ny vaskehall og parkeringsanlegg på Fornes-E6 82, Ballangen
📍 Fornes-E6 82 , 8540 BALLANGEN
Nøkkelinfo
- Sakstype
- Nybygg
- Bygningstype
- Naeringsbygg
- Bruksareal
- 225 m²
- Kommune
- Narvik
- Fylke
- Nordland - Nordlánnda
- Gnr / Bnr
- 338 / 57
- Saksnummer
- 26/694
- Fase
- Rammetillatelse
Om byggesaken
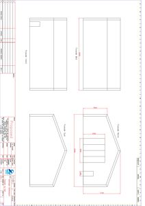
Ny vaskehall og parkeringsanlegg for kjøretøy oppføres på eiendommen Fornes-E6 82 i Ballangen. Bygget er en lagerhall med et bruttoareal på 220 m² og et bebygd areal på 225 m², med saltak og én etasje. Den nye hallen erstatter en eksisterende lagerhall på 340 m² som skal rives. Fasaden mot nord har fire vinduer og én dør, mens øvrige fasader ikke har vinduer eller dører. Bygget skal benyttes til vaske- og parkeringshall for kjøretøy knyttet til Orica Norway AS sin virksomhet på Ballangen Bulkstasjon. Området er regulert til industri, og tiltaket er nabovarslet uten merknader. Det planlegges oppstart og ferdigstillelse i løpet av 2026.
Produkter og materialer
Betong
Fundament og dekke
Betongfundament og dekke for ny vaskehall
VVS
Oljeutskiller
Antall: 1
Godkjent oljeutskiller tilkoblet vaskehall/parkeringshall
Oljeutskiller for vaskehall
Tømrer
Bygningskonstruksjon
Tømrerarbeid for ny lagerhall med saltak
Fasade
Ytterdør
Antall: 1
Ytterdør i nordfasade
Grunnarbeid
Parkeringsanlegg
Grunnarbeid for parkeringsanlegg for kjøretøy
Maling
Innvendig og utvendig maling
Maling av fasade og innvendige flater
Fasade
Vinduer
Antall: 4
Fasadevindu i nordfasade
Riving
Eksisterende lagerhall
Riving av eksisterende lagerhall på 340 m²
Elektro
Belysning og strømtilførsel
Elektrisk installasjon for vaskehall og parkeringsanlegg
Tak
Saltak
Antall: 1
Saltak på bygget
Fasader
Ballangen Bulkstasjon
Nord
- Taktype
- Saltak
- Høyde
- 15.0 m
- Vinduer
- 4
- Dører
- 1
- Synlige etasjer
- 1
Sør
- Taktype
- Saltak
- Høyde
- 15.0 m
- Vinduer
- 0
- Dører
- 0
- Synlige etasjer
- 1
Øst
- Taktype
- Saltak
- Høyde
- 15.0 m
- Vinduer
- 0
- Dører
- 0
- Synlige etasjer
- 1
Vest
- Taktype
- Saltak
- Høyde
- 15.0 m
- Vinduer
- 0
- Dører
- 0
- Synlige etasjer
- 1
Hendelser
17.04.2026
Status byggesak - Søknad om rammetillatelse, gbnr. 338/57
23.02.2026
Vedtak - Tiltak rammetillatelse for oppføring av vaskehall og parkering for kjøretøy på gbnr. 338/57, Fornes-E6 82
20.02.2026
Søknad om rammetillatelse for oppføring av vaskehall og parkering for kjøretøy på gbnr. 338/57, Fornes-E6 82