NewConstruction Soeknad Naeringsbygg

Nytt næringsbygg med lager og kontor på Hofstadvegen, Melhus

📍 Hofstadvegen 4 , 7224 MELHUS

Nøkkelinfo

Sakstype
Nybygg
Bygningstype
Naeringsbygg
Bruksareal
1,194 m²
Kommune
Melhus
Fylke
Trøndelag - Trööndelage
Gnr / Bnr
87 / 64
Saksnummer
2026/1034
Fase
Søknad

Om byggesaken

Nytt næringsbygg på totalt 1194,4 m² fordelt på en etasje med vaskehall, lager, verksted, kontor, møterom, kjøkken og tilhørende fasiliteter. Bygget har betong- og stålkonstruksjoner, med to mesaniner i lagerdelen. Bygget inneholder også tekniske rom og vaskehall. Tomten på ca. 4038 m² opparbeides med asfalterte utearealer, parkeringsplasser og adkomstveier. Fundamentering skjer direkte på sand- og grusmasser med maksimalt tillatt grunntrykk på 250 kPa. Bygget er prosjektert med brannkonsept klasse 2, brannklasse 1, og tiltaksklasse 1, med brannalarmanlegg kategori 2, rømningsveier, og manuelle slokkeutstyr. Området er vurdert uten risiko for kvikkleireskred og med god grunnstabilitet. Det foreligger miljørapport for opprydding av tidligere avfallsfylling på eiendommen. Bygget skal benyttes til lager, administrasjon og verksted for Crane Norway Trondheim.

Produkter og materialer

Gulv Betonggulv og overflater

🧱 Betong

Betonggulv i lager, verksted og kontorområder

Isolasjon Mineralull isolasjon

🧱 Glava/Rockwool

Isolasjon i konstruksjoner og tak med A2-s1,d0 brannklasse

Mineralull isolasjon for brannsikkerhet

VVS Sanitærinstallasjoner og rørgjennomføringer

Rørgjennomføringer med branntetting, plastrør inntil 32 mm med tettemasse

Sanitærinstallasjoner og rørgjennomføringer med branntetting

Dører Brann- og rømningsdører

Antall: 20

Dører med brannmotstand EI30, klasse Sa, selvlukkende med dørautomatikk

Brann- og rømningsdører i branncellebegrensende vegger

Elektro Brannalarmanlegg og nødlys

Brannalarmanlegg kategori 2, nødlys og ledesystem iht. NS-standarder

Brannalarmanlegg og nødlys for varsling og rømning

Kjøkken Kjøkkeninnredning

Antall: 1

Kjøkken med avtrekkskanal EI15 A2-s1,d0, fettfilter og rengjøringsmulighet

Kjøkken med brannsikker avtrekksløsning

Tømrer Innvendige vegger og himlinger

🧱 Gipsplater, MDF, OSB, trepanel

Innvendige overflater med brannklasse B-s1,d0 og D-s2,d0

Innvendige vegger og himlinger med brannmotstand

Ventilasjon Ventilasjonsanlegg

Ventilasjonskanaler i A2-s1,d0 materiale, brannspjeld ved brannskiller

Ventilasjonsanlegg med brannspjeld og isolasjon iht. brannkrav

Grunnarbeid Direktefundamentering

Fundamentering på sand- og grusmasser med maksimalt tillatt grunntrykk 250 kPa, punkt- og stripefundamenter

Grunnarbeid og fundamentering for næringsbygg på stabil grunn

Utendørs Utearealer og gjerder

🧱 Asfalt, flettverksgjerde, mur

Asfalterte parkerings- og kjørearealer, flettverksgjerde 2 m høy, mur med gjerde på toppen

Opparbeidede utearealer med asfalt, gjerder og mur

Fasade Yttervegger og kledning

🧱 Betong, gipsplater, MDF, OSB, trepanel

Yttervegger i betong og kledning med brannklasse B-s1,d0 og D-s2,d0

Fasadeelementer og kledning med brannmotstand og isolasjon

Stål Bærekonstruksjoner og tak

🧱 Stål

Stålkonstruksjoner for bæresystem og stålplatetak med brannmotstand R15

Stålkonstruksjoner for bæresystem og tak i bygget

Brannvern Manuelt slokkeutstyr

Håndslokkere minimum 6 kg ABC pulver eller 9 liter skum/vann, brannslanger max 30 m

Manuelt slokkeutstyr plassert med maks 30 m avstand

Tak Taktekking

🧱 Metallplater

Taktekking med metallplater, BROOF(t2) klassifisering

Taktekking med metallplater som tilfredsstiller brannkrav

Betong Bærekonstruksjoner og dekker

🧱 Betong

Betongkonstruksjoner for bæresystem og dekker med brannmotstand R30

Betongkonstruksjoner for bæresystem og dekker i bygget

Vinduer Brannvinduer

Antall: 5

Vinduer med brannmotstand EI30, ikke åpne i vanlig bruk

Brannvinduer i kontor- og møteromsområder

Bad Dusj og WC

Antall: 5

Dusj- og WC-fasiliteter i bygget

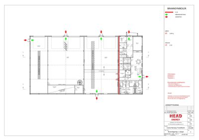
Plantegning

Crane Norway Trondheim 1,194.4 m²

Etasje 1 1,194.4 m²

Rom Areal Vinduer Dører
Vaskehall 101 171.1 m² 0 1
Lager 102 303.6 m² 0 1
Verksted 103 354.5 m² 0 1
Verkstedsflager 104 38.6 m² 0 1
Sjåferflager 105 11.5 m² 0 1
Kontor 106 7.5 m² 1 1
Hovedinnpang 107 21.6 m² 1 1
Meterom 108 21.5 m² 1 1
Kjokken 109 15.0 m² 1 1
Opphold 110 54.5 m² 1 1
Garderobe 111 7.6 m² 0 1
Garderobe 112 7.6 m² 0 1
Lager 113 3.7 m² 0 1
Dusj 114 3.7 m² 0 1
Dusj 115 3.7 m² 0 1
Wc 116 1.9 m² 0 1
Wc/dusj 117 3.1 m² 0 1
Wc/dusj 118 5.5 m² 0 1
Wc/dusj 119 3.1 m² 0 1
Pauserom 120 10.7 m² 0 1
Pauserom 121 13.4 m² 0 1
Pauserom 122 10.7 m² 0 1
Verkstedkontor 123 7.2 m² 0 1
Gang 124 6.2 m² 0 1

Brannrapport 0.0 m²

Etasje 1 0.0 m²

Rom Areal Vinduer Dører
Vaskeri Vaskeri 17.1 m² 0 1
Lager Lager 303.8 m² 0 0
Verksteds Verksteds 254.5 m² 0 0
Lager Lager 3.7 m² 0 0
Dusj Dusj 3.7 m² 0 0
Kontor Kontor 7.5 m² 0 0
Hovedinngang Hovedinngang 21.6 m² 0 0
Møterom Møterom 21.5 m² 0 0
Kjøkken Kjøkken 0.0 m² 0 0
Opphold Opphold 54.5 m² 0 0
Verksteds kontor Verksteds kontor 7.2 m² 0 0
Dusj Dusj 7.8 m² 0 0
Verksteds kontor Verksteds kontor 3.5 m² 0 0
Pauserom Pauserom 12.7 m² 0 0
Pauserom Pauserom 13.4 m² 0 0
Pauserom Pauserom 10.7 m² 0 0
Verksteds lager Verksteds lager 38.6 m² 0 0
Sjåførslager Sjåførslager 11.5 m² 0 0

Etasje 3 0.0 m²

Rom Areal Vinduer Dører
Teknisk rom 301 11.0 m² 0 0
Teknisk rom 302 13.9 m² 0 0

Hendelser

09.04.2026 Bekreftelse på mottatt rammesøknad - Nytt bygg - ikke boligformål over 70 m² - Hofstadvegen - gnr/bnr 87/64 tidligere 87/78
09.04.2026 Rammesøknad - Nytt bygg - ikke boligformål over 70 m² - 87/64 tidligere 87/78 - Hofstadvegen