NewConstruction UnderBehandling Naeringsbygg

Ny kontorbygning med parkeringskjeller på Holssletta 2, Ålesund

📍 Holssletta 2A , 6018 ÅLESUND

Nøkkelinfo

Sakstype
Nybygg
Bygningstype
Naeringsbygg
Bruksareal
6,311 m²
Kommune
Ålesund
Fylke
Møre og Romsdal
Gnr / Bnr
32 / 270
Saksnummer
2023/8125
Fase
Under behandling

Om byggesaken

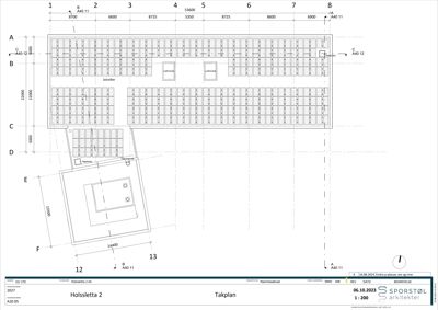
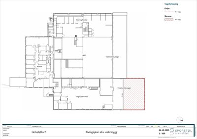
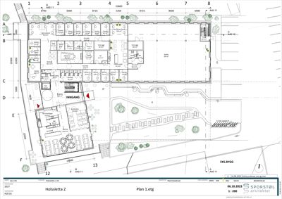
Ny kontorbygning i fire etasjer med delvis nedgravd parkeringskjeller på Holssletta 2 i Ålesund. Bygget har et bruttoareal på ca. 6311 m² fordelt på kjeller, p-kjeller og fire etasjer med kontorarealer, butikk og kantine i første etasje. Bygget er planlagt som et miljøbygg med lavt energibehov, hovedsakelig i betong med varme brune fasader og flate tak dekket med lavtbyggende solceller. Bygget har en gesimshøyde på 15,5 meter, noe som er dispensert fra regulert høyde på 12,5 meter. Det er etablert omfattende lyd- og vibrasjonskrav med tilhørende akustiske løsninger for å sikre godt innemiljø. Utvendig er det planlagt parkeringsplasser både i kjeller og på terreng, med midlertidig dispensasjon for plassering utenfor byggegrense. Bygget har heis, trapper, og omfattende tekniske installasjoner inkludert ventilasjon, sanitær, varme, kulde, brannalarm og ledesystem. Prosjektet inkluderer også miljøsanering og riving av eksisterende lagerhall.

Produkter og materialer

Trapper Innvendig trapp med elastisk opplagring

🧱 Elastiske mellomlegg av lastdimensjonert gummi

Antall: 1

Trapp med elastisk opplagring av repos og trappeløp for trinnlyddemping

Trapp med tiltak for trinnlyd og vibrasjonsisolering

Kjøkken Kantine og kjøkken

Kantine med kjøkken, spiseplass for ca. 72 personer, lydabsorberende himling og veggabsorbenter

Kantine- og kjøkkenfasiliteter med akustiske tiltak

Grunnarbeid Veg- og grunnarbeider

Antall: 1

Sprengning, oppfylling, planering, komprimering og graving for VA-ledninger

Grunnarbeider for bygg og infrastruktur

Elektro Brannalarmanlegg og ledesystem

Installasjon av brannalarmanlegg og ledesystem med samsvarserklæring

Brann- og sikkerhetssystemer

Terrasse Takterrasse

Antall: 1

Takterrasse på 4. etasje med lydisolasjon og mulighet for uteopphold

Takterrasse med akustiske tiltak

VVS Fjernvarmeanlegg

Fjernvarmeanlegg med rør, armaturer og varmeveksler

Fjernvarmeinstallasjon for oppvarming

Betong Betongkonstruksjoner og fuger

🧱 Betongplate på grunn med lydfuge rundt tekniske rom

Lydisolasjon og vibrasjonsisolering av betongkonstruksjoner i tekniske rom

Betongkonstruksjoner med lyd- og vibrasjonsisolasjon

VVS Ventilasjon

🧱 Balansert ventilasjonsanlegg med varmegjenvinning

Ventilasjonsanlegg med lydisolasjon og vibrasjonsisolering

Komplett ventilasjons- og klimaanlegg

Fasade Betong og trefasade

🧱 Betong med farget tilslag, trepanel

Brune betongfasader med trepanel på øst og vest, fasader med vinduer og dører

Varige og estetiske fasader med varme farger

Gulv Trinnlyddempende overgulv

🧱 Teppe av typen Tarkett Desso Rescharge eller tilsvarende

Overgulv med trinnlydforbedring ≥ 23 dB i kontoretasjer, elastisk sjikt under flis i butikklokale

Gulvbelegg for lyd- og trinnlyddemping

Dører Innvendige dører med lydkrav

🧱 Dører med lydreduksjon Rw ≥ 33-38 dB

Antall: 150

Dører til kontorer, møterom og fellesarealer med lydisolasjon tilpasset veggkrav

Innvendige dører med lydisolasjon for kontorbygg

Vinduer Fasadevindu

🧱 Glassfasade med lydlaminat, Rw+Ctr 32-38 dB

Antall: 120

Vinduer med lydreduksjon Rw+Ctr≥38 dB mot nord, Rw+Ctr≥35 dB mot øst og vest, Rw+Ctr≥32 dB mot sør

Vinduer og glassfasader tilpasset lydkrav for veitrafikkstøy og innendørs lydisolasjon

Bad Toaletter og garderober

Separate garderober med låsbare skap, ventilasjon og lydisolasjon, samt toaletter med lydisolerte vegger

Personalrom med garderober og toaletter i henhold til arbeidsmiljøkrav

Riving Miljøsanering og riving

Antall: 1

Riving av eksisterende lagerhall med miljøsanering og håndtering av farlig avfall

Riving og miljøsanering av eksisterende bygg

Heis Heisinstallasjon

Antall: 1

Heis med vibrasjonsisolering av motor, koblingsskap og ledeskinner

Heisinstallasjon med krav til støy og vibrasjonsisolering

Rekkverk Montering av rekkverk

Montering av rekkverk i henhold til ansvarsrett

Sikkerhetsrekkverk for trapper og terrasser

VVS Sanitærinstallasjoner

🧱 Lyddempede plastrør, slamavskiller

Sanitærinstallasjoner med lydisolering og privat renseløsning for avløp

Sanitær- og avløpssystem med krav til støy og rensing

Tak Flatt tak med solceller

🧱 Betongdekke HD320 med isolasjon og lavtbyggende solceller

Antall: 1

Flatt tak med lavtbyggende solceller for energiproduksjon

Tak med lavt energibehov og solcelledekke

VVS Varme- og kuldeinstallasjoner

Varme- og kuldeinstallasjoner med lyd- og branntetting av rørføringer

Komplett varme- og kjøleanlegg med lydisolasjon

Fasader

Holssletta 2

Nord
Materiale
Betong
Taktype
Flatt tak
Høyde
15.0 m
Mønehøyde
63.4 m
Vinduer
36
Dører
1
Synlige etasjer
4
Øst
Materiale
Tre
Taktype
Flatt tak
Høyde
14.8 m
Mønehøyde
63.4 m
Vinduer
12
Dører
2
Synlige etasjer
4
Vest
Materiale
Tre
Taktype
Flatt tak
Høyde
61.5 m
Vinduer
12
Dører
2
Balkonger
2
Synlige etasjer
4
Sør
Materiale
Betong
Taktype
Flatt tak
Høyde
18.0 m
Vinduer
36
Dører
1
Synlige etasjer
4

Hendelser

17.04.2026 Gbnr. 32/270 - Kopi - Arbeidstilsynet innvilger søknaden om samtykke, med vilkår - Holssletta 2 - Riving av lagerhall og oppføring av kontorbygg i 4 etasjer
18.03.2026 Gbnr. 32/270 - Kopi - Arbeidstilsynet mangler fortsatt opplysninger – nytt varsel om avslag på søknad - Holssletta 2 - Riving av lagerhall og oppføring av kontorbygg i 4 etasjer
10.02.2026 Gbnr. 32/270 - Kopi - Arbeidstilsynet trenger flere opplysninger for å behandle søknaden – varsel om avslag på søknad
05.12.2025 Gbnr. 32/270 - Arbeidstilsynet innvilger søknaden om samtykke - Holssletta 2 - Riving av lagerhall og oppføring av kontorbygg i 4 etasjer
27.11.2025 Gbnr. 32/270 - Varsel om avslag på søknad om samtykke - Holssletta 2 - Riving av lagerhall og oppføring av kontorbygg i 4 etasjer
25.09.2025 Gbnr. 32/270 - Supplering av søknad - Holssletta 2 - Riving av lagerhall og oppføring av kontorbygg i 4 etasjer
25.04.2025 Gbnr. 32/270 - Supplering av søknad - Holssletta 2 - Riving av lagerhall og oppføring av kontorbygg i 4 etasjer
26.02.2025 Gbnr. 32/270 Supplering av søknad - Holssletta 2 - Riving av lagerhall og oppføring av kontorbygg i 4 etasjer
26.11.2024 Gbnr. 32/270 - Supplering av søknad - Holssletta 2 - Riving av lagerhall og oppføring av kontorbygg i 4 etasjer
23.09.2024 Gbnr. 32/270 - Fakturagrunnlag - Holssletta 2 - Riving av lagerhall og oppføring av kontorbygg i 4 etasjer
23.09.2024 Gbnr. 32/270 - Vedtak - Holssletta 2 - Riving av lagerhall og oppføring av kontorbygg i 4 etasjer
18.09.2024 Gbnr. 32/270 - Supplering av søknad - Holssletta 2 - Riving av lagerhall og oppføring av kontorbygg i 4 etasjer
06.09.2024 Gbnr. 32/270 - Søknad om tillatelse til tiltak i ett trinn - Holssletta 2 - Riving av lagerhall og oppføring av kontorbygg i 4 etasjer
20.08.2024 Gbnr. 32/270 - Arbeidstilsynet innvilger søknaden om samtykke - Holssletta 2 - Riving av lagerhall og oppføring av kontorbygg i 4 etasjer
13.03.2024 Gbnr. 32/270 - Dispensasjoner - Holssletta 2 - Riving av lagerhall og oppføring av kontorbygg i 4 etasjer
13.03.2024 Gbnr. 32/270 - Melding om vedtak - Holssletta 2 - Riving av lagerhall og oppføring av kontorbygg i 4 etasjer
13.03.2024 Gbnr. 32/270 - Dispensasjonsvedtak - Holssletta 2 - Riving av lagerhall og oppføring av kontorbygg i 4 etasjer
12.03.2024 Gbnr. 32/270 - Fakturagrunnlag - Holssletta 2 - Dispensasjon - Riving av lagerhall og oppføring av kontorbygg i 4 etasjer
06.03.2024 Gbnr. 32/270 - Søknad om dispensasjon - Holssletta 2 - Riving og oppføring av nytt kontorbygg
24.01.2024 Gbnr. 32/270 - Kopi - Dispensasjon fra plikten til å bygge tilfluktsrom - Holssletta 2 - Riving av lagerhall og oppføring av kontorbygg i 4 etasjer
11.01.2024 Gbnr. 32/270 - Uttale fra Statens vegvesen - Holssletta 2 - Riving av lagerhall og oppføring av kontorbygg i 4 etasjer
20.12.2023 Gbnr. 32/270 - Fråsegn frå Møre og Romsdal fylkeskommune - Holssletta - Riving av lagerhall og oppføring av kontorbygg i 4 etasjer