NewConstruction UnderBehandling Naeringsbygg

Ny næringsbygning med landbase og kontor, Jektvikveien 62

📍 Jektvikveien 62 , 8170 ENGAVÅGEN

Nøkkelinfo

Sakstype
Nybygg
Bygningstype
Naeringsbygg
Bruksareal
236 m²
Kommune
Meløy
Fylke
Nordland - Nordlánnda
Gnr / Bnr
39 / 120
Saksnummer
2026/463
Fase
Under behandling

Om byggesaken

Ny næringsbygning på ca. 236 m² BRA fordelt på to etasjer, plassert på ny fylling i forlengelsen av eksisterende brygge- og kaistruktur i Jektvikveien 62, Grønøy. Bygget har saltak og trekledning, tilpasset det maritime miljøet og eksisterende bebyggelse i området. Første etasje inneholder blant annet lager, garderobe, spiserom, teknisk rom, dusjrom og garasje, mens andre etasje inneholder kontorer, møterom, arkiv og bad. Bygget har mønehøyde på 8,5 meter og er plassert på kote ca. +3,0 moh, med kommunal vei på ca. +6,1 moh, noe som reduserer visuell eksponering. Det etableres tilhørende brygge/kai for drift og lagring, uten allmenn ferdsel. Tiltaket har fått dispensasjon fra byggeforbudet i 100-metersbeltet og er i samsvar med kommuneplanens arealformål for næring.

Produkter og materialer

Grunnarbeid Fylling og fundamentering

Ny fylling i forlengelsen av eksisterende brygge- og kaistruktur, kote ca. +3,0 moh

Grunnarbeid for bygg og kai

Garasje Garasje og carport

Antall: 1

Garasje på 18,1 m² og carport/parkering på 24,6 m²

Parkering for kjøretøy tilknyttet bygget

Gulv Industrielt gulv og kontorgulv

Gulv tilpasset næringsbygg og kontorfunksjoner

Gulvbelegg og overflater i kontor og lager

Tak Saltak

Saltak med mønehøyde 8,5 meter

Tak med saltakform og tilpasset høyde

Elektro Elektroinstallasjoner

Elektroinstallasjoner prosjektert av Rådg. ing. Elektro

Elektriske installasjoner i bygget

Vinduer Fasadevindu

🧱 Glass med tre/aluminiumsramme

Antall: 14

Fast glass og åpne vinduer i fasade, 3-lags energiglass antatt

Vinduer i fasader for dagslys og utsyn

Rekkverk Balkongrekkverk

Antall: 1

Rekkverk på balkong i 2. etasje

Sikkerhetsrekkverk på balkong

Grunnarbeid Avkjørsel og vei

Avkjørsel til kommunal vei med godkjent avkjøringstillatelse, bredde 4 m, hjørneradius 4 m

Adkomst og parkering for bygget

Dører Ytterdører og glassdører

Antall: 10

Ytterdører i tre og glass, inkludert inngangsdører og dører til lager og tekniske rom

Dører for adkomst og intern bruk

VVS Sanitærinstallasjoner og ventilasjon

Sanitærinstallasjoner, ventilasjon og klimainstallasjoner i bygget

VVS-installasjoner for kontor og landbase

Ventilasjon Ventilasjonsanlegg

Ventilasjonsrom på 6,6 m² og ventilasjonsanlegg for arbeidsmiljø

Ventilasjon for inneklima og luftkvalitet

Tømrer Trekonstruksjoner og montering

🧱 Tre

Montering av trekonstruksjoner, bærende metall- eller betongkonstruksjoner, fasadekledning

Tømrerarbeid for byggkropp og fasade

Betong Plasstøpte betongkonstruksjoner

🧱 Betong

Plasstøpte betongkonstruksjoner for kai og bygg

Betongarbeid for fundamenter og kai

Fasade Trekledning

🧱 Tre

Fasade i tre med saltak, tilpasset maritimt miljø

Yttervegger med trekledning og saltak for næringsbygget

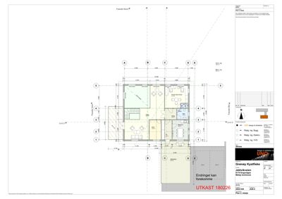
Plantegning

Enebolig 342.7 m²

Etasje 1 174.5 m²

Rom Areal Vinduer Dører
Stue 101 35.2 m² 3 2
Spiserom 102 22.4 m² 1 1
Kjøkken 103 12.1 m² 1 1
Gang 104 8.5 m² 0 3
Bad 105 6.3 m² 0 1
Toalett 106 2.2 m² 0 1
Vaskerom 107 4.8 m² 1 1
Garderobe 108 3.9 m² 0 1
Teknisk rom 109 10.4 m² 0 1
Lager 110 9.6 m² 0 1
Dusjrom/Damegarderobe 111 20.1 m² 0 1
Kleslager 112 9.9 m² 0 1
Ventilasjonsrom 113 6.6 m² 0 1
Materiallager 114 10.3 m² 0 1
Inngang 115 5.1 m² 0 1

Etasje 2 168.2 m²

Rom Areal Vinduer Dører
Stue 101 48.4 m² 2 1
Gang 102 4.8 m² 0 2
Arkiv 103 10.0 m² 0 1
Kontor Nina/Einar 104 21.3 m² 1 1
Gang 105 3.5 m² 0 1
Bad 106 5.3 m² 0 1
Inngang 107 54.2 m² 0 1
Møterom 108 13.0 m² 0 1
Teknisk rom 109 6.9 m² 0 1
Bod 110 1.4 m² 0 1

Fasader

Enebolig

Øst
Materiale
Tre
Taktype
Saltak
Vinduer
5
Dører
0
Balkonger
1
Synlige etasjer
2
Sør
Materiale
Tre
Taktype
Saltak
Vinduer
5
Dører
1
Synlige etasjer
2

Hendelser

14.04.2026 Jektvikveien 62 Supplering av søknad 39/120
30.03.2026 Søknad om dispensasjon for oppføring av næringsbygg gbnr 39/120, Grønnøy, Meløy kommune
12.03.2026 Oppdaterte plantegninger
12.03.2026 Vi innvilger søknaden om samtykke etter automatisk saksbehandling
19.02.2026 Høring - søknad om dispensasjon for oppføring av næringsbygg
16.02.2026 Foreløpig svar - søknad om dispensasjon for oppføring av næringsbygg
12.02.2026 Jektvikveien 62 Søknad om rammetillatelse 39/120