NewConstruction Ferdigattest Naeringsbygg

Nytt kombinert lager- og kontorbygg i Mosseveien 104, Fredrikstad

📍 Mosseveien 104 , 1624 GRESSVIK

Nøkkelinfo

Sakstype
Nybygg
Bygningstype
Naeringsbygg
Bruksareal
809 m²
Kommune
Fredrikstad
Fylke
Østfold
Gnr / Bnr
45 / 171
Saksnummer
2025/11926
Fase
Ferdigattest

Om byggesaken

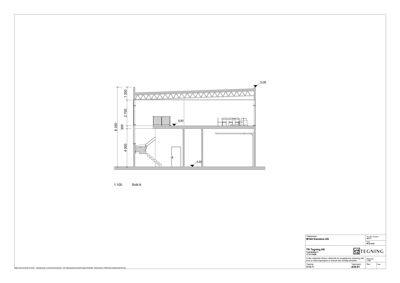
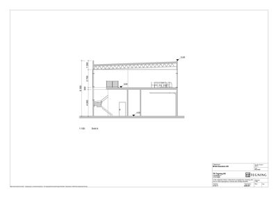
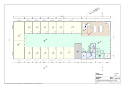
Nytt kombinert lager- og kontorbygg oppføres i to etasjer på Mosseveien 104 i Fredrikstad. Bygget har et bebygd areal på 417,9 m² og et bruksareal på 404,4 m² per etasje, totalt ca. 809 m². Første etasje inneholder to lagerseksjoner, teknisk rom, entre, gang, WC og heis, mens andre etasje er innredet med kontorer, møterom, kjøkken/spiserom, garderober, toaletter og fellesarealer. Bygget har flatt tak og fasader i betong med veggelementer i fargen RAL 7016 og beslag i RAL 2011. Området rundt bygges asfaltert med overvannshåndtering og infiltrasjon. Bygget er tilknyttet offentlig vann- og avløpsnett, og det er installert løfteinnretninger (heis).

Produkter og materialer

Dører Ytterdører og lagerdører

🧱 Ikke spesifisert

Antall: 7

Ytterdører og dører til lagerseksjoner og tekniske rom

Dører for adkomst og lagerseksjoner

Maling Innvendig maling

Innvendige overflater malt iht. standard for næringsbygg

Maling av innvendige vegger og himlinger

Garasjeport Lagerport

🧱 Ikke spesifisert

Antall: 1

Garasjeport på fasade nord for lagerseksjon

Port for vareinn- og utlevering i lagerseksjon

Trapper Innvendig trapp

🧱 Ikke spesifisert

Antall: 1

Innvendig trapp mellom etasjer

Trapp for intern kommunikasjon i bygget

Betong Plasstøpte betongkonstruksjoner

🧱 Betong

Bærende betongkonstruksjoner montert av MASKINENTREPRENØR KARSTEN MIKALSEN AS

Bærende konstruksjoner i betong for bygg

Grunnarbeid Drenering og infiltrasjon

🧱 Drenering og overvannshåndtering

Drenering under og rundt bygg, infiltrasjon av tak- og overvann, asfaltert område rundt bygg

Grunnarbeider for overvannshåndtering og utearealer

VVS Ventilasjon og klima

Ventilasjons- og klimainstallasjoner utført av GK NORGE AS

Ventilasjons- og klimaanlegg i bygget

Elektro El-installasjoner

El-installasjoner planlagt og utført iht. krav

Elektriske installasjoner i bygget

Sanitærinstallasjoner Sanitær og VA

Sanitærinstallasjoner og vannforsyning/avløp utført av RØRLEGGERTJENESTEN FREDRIKSTAD AS

Sanitær- og VA-installasjoner i bygget

Tak Flatt tak

🧱 Taktekking iht. TEK17

Flatt tak med taktekking utført av STRAYE TAK AS

Taktekking for flatt tak på lager- og kontorbygg

Heis Personheis

🧱 Ikke spesifisert

Antall: 1

Heis med 4 m² areal, løfteinnretning iht. TEK

Heis for tilgjengelighet mellom etasjer

Stål Bærende metallkonstruksjoner

🧱 Stål

Bærende metallkonstruksjoner montert av STRAYE STÅLBYGG AS

Bærende metallkonstruksjoner for bygg

Tømrer Innvendige vegger og himlinger

Innvendige konstruksjoner og vegger iht. arkitekttegninger

Innvendige tømrerarbeider for kontor og lager

Vinduer Fasadevindu

🧱 Ikke spesifisert

Antall: 31

Vinduer fordelt på fasader, totalt 31 vinduer i bygget

Fasadevindu for kontor- og lagerbygg

Fasade Veggelementer

🧱 Betong, farge RAL 7016 med beslag RAL 2011

Veggelementer i betong, farge RAL 7016, beslag og belistning rundt dører og omramminger i RAL 2011

Fasadeelementer for lager- og kontorbygg

Utendørs Asfaltering og beplantning

Asfaltering av området rundt bygget, beplantning og grøntarealer i uteareal

Utomhusarbeider med asfalt og beplantning

Fasade Fasadekledning

🧱 Betongelementer

Fasadekledning montert av STRAYE STÅLBYGG AS

Fasadekledning for lager- og kontorbygg

Plantegning

Enebolig 808.8 m²

Etasje 2 404.4 m²

Rom Areal Vinduer Dører
Møterom 201 21.8 m² 0 1
Møterom 202 21.9 m² 0 1
Kontor 203 10.0 m² 0 1
Kontor 204 10.0 m² 0 1
Kontor 205 10.0 m² 0 1
Kontor 206 10.0 m² 0 1
Kontor 207 10.0 m² 0 1
Kontor 208 23.2 m² 0 1
Kontor 209 10.0 m² 0 1
Kontor 210 10.0 m² 0 1
Kontor 211 10.0 m² 0 1
Kontor 212 14.0 m² 0 1
Kopirom 213 10.1 m² 0 1
Fellesarealer 214 84.2 m² 0 0
Fellesarealer 215 46.1 m² 0 0
Kjøkken/spis 216 48.2 m² 0 0
Garderobe 217 0.0 m² 0 0
Toalett 218 2.0 m² 0 1
Toalett/HC 219 6.0 m² 0 1
Kott 220 3.0 m² 0 1
Heis 221 4.0 m² 0 0

Etasje 1 404.4 m²

Rom Areal Vinduer Dører
Lager 101 188.9 m² 0 1
Lager 102 178.4 m² 0 0
Teknisk 103 7.2 m² 0 0
Entre 104 9.2 m² 1 1
Gang 105 3.0 m² 0 1
WC 106 4.8 m² 0 1
Heis 107 4.0 m² 0 0

Fasader

Lagerhall

Vest
Materiale
Betong
Taktype
Flatt tak
Vinduer
3
Dører
1
Synlige etasjer
1
Nord
Materiale
Betong
Taktype
Flatt tak
Vinduer
14
Dører
2
Synlige etasjer
1

Bygg 1

Øst
Materiale
Betong
Taktype
Flatt tak
Vinduer
2
Dører
1
Synlige etasjer
2
Sør
Materiale
Betong
Taktype
Flatt tak
Vinduer
12
Dører
1
Synlige etasjer
1

Hendelser

20.04.2026 Søknad om ferdigattest - Mosseveien 104 - Eiendom 45/171
20.04.2026 Tilbakemelding på søknad om ferdigattest - Oppføring av nytt kombinert lager- og kontorbygg - Mosseveien 104 - Eiendom 45/171
05.02.2026 Midlertidig brukstillatelse - Oppføring av nytt kombinert lager- og kontorbygg - Mosseveien 104 - Eiendom 45/171
03.02.2026 Søknad om midlertidig brukstillatelse - Mosseveien 104 - Eiendom 45/171
29.04.2025 Tillatelse - Oppføring av nytt kombinert lager- og kontorbygg - Mosseveien 104 - Eiendom 45/171
28.04.2025 Mosseveien 104 - Eiendom 45/171 - Kombinert lager-kontorbygg - Uttalelse Teknisk forvaltning - Kommunalteknikk
24.04.2025 Anmodning om uttalelse - Kombinert lager-kontorbygg - Mosseveien 104 - Eiendom 45/171
08.04.2025 Bekreftelse på mottatt søknad - Ett-trinns søknad - Nybygg - annet over 70 m² - Mosseveien 104 - Eiendom 45/171
08.04.2025 Ett-trinns søknad - Mosseveien 104 - Eiendom 45/171 - Oppføring av nytt kombinert lager- og kontorbygg