NewConstruction UnderBehandling Naeringsbygg

Ny produksjonshall med kontordel i Myrvegen, Tysvær

๐Ÿ“ Myrvegen 12 , 5570 AKSDAL

Nรธkkelinfo

Sakstype
Nybygg
Bygningstype
Naeringsbygg
Bruksareal
10,849 mยฒ
Kommune
Tysvær
Fylke
Rogaland
Gnr / Bnr
60 / 174
Saksnummer
2025/1124
Fase
Under behandling

Om byggesaken

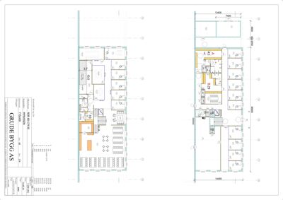
Ny produksjonshall med tilhørende kontorbygg oppføres på eiendommen Myrvegen, gnr. 60, bnr. 174 i Tysvær kommune. Bygget består av en industrihall på ca. 9 400 m² bruttoareal med mesanin på ca. 660 m², samt et kontorbygg over to etasjer med totalt ca. 1 095 m² bruttoareal. Produksjonshallen har stål- og betongkonstruksjoner med stålplate- og betongelementfasader, flatt tak med asfaltbelegg klargjort for solceller. Kontorbygget har tre fasader i tre med flatt tak. Bygget inneholder kontorer, møterom, laboratorium, kantine og tekniske rom. Det er planlagt omfattende brannsikring med brannseksjonering, brannalarmanlegg, røykventilasjon, brannceller og manuelle slokkeutstyr. Utomhusplan viser adkomst, parkering for biler og sykler, laste- og losseområder, samt plassering av avfallscontainere. Bygget er tilpasset gjeldende reguleringsplan og tekniske krav, med godkjente løsninger for vann- og avløp, ventilasjon, elektro, heis og brannsikkerhet. Det er inngått avtale om plassering i tomtegrense mot nabo. Prosjektet har ansvarlige foretak for alle relevante fagområder og er under behandling for byggetillatelse.

Produkter og materialer

Grunnarbeid VA-ledninger og overvannshåndtering

Oppdatert teknisk plan for VA og overvann, godkjent av VA-drift

Vann- og avløpsarbeid, overvannshåndtering i henhold til teknisk plan

Vinduer Brannklassifiserte vinduer

Antall: 30

Vinduer i kontorbygg med brannmotstand EI 60, vinduer i seksjoneringsvegg EI 90

Brannklassifiserte vinduer for kontorbygg og seksjoneringsvegger

Isolasjon Isolasjon i konstruksjoner og tak

๐Ÿงฑ Glava/Rockwool eller tilsvarende A2-s1,d0 klasse

Isolasjon i takkonstruksjon og vegger med brannmotstand og beskyttelse

Isolasjon med brannmotstand i takkonstruksjon og vegger

Elektro Brannalarm- og ledelysanlegg

Brannalarmanlegg kategori 2 med direktevarsling, utføres av Miljø Elektro AS

Brannalarmanlegg og nødlys for sikkerhet og rømningsveier

Dører Brannklassifiserte dører og porter

Antall: 10

Dører og porter med brannmotstand EI2 60-CSa og EI 90 i seksjoneringsvegger

Brannklassifiserte dører og porter i branncellebegrensende konstruksjoner

Tak Flatt tak med asfaltbelegg

๐Ÿงฑ Asfaltbelegg, sandwichløsning med brennbar isolasjon beskyttet iht. brannrapport

Flatt tak klargjort for solceller, taktekking av asfaltbelegg

Taktekking for hall og kontorbygg

Elektro Løfteinnretning

Antall: 1

Heis planlagt, utføres av TKS Heis Kverneland

Heis for tilgjengelighet i kontorbygg

Tømrer Innvendige vegger og overflater

๐Ÿงฑ MDF, OSB-plater, gips, trepanel

Overflater i brannceller med D-s2,d0 og K210 D-s2,d0 klassifisering

Innvendige vegger og overflater i kontorbygg og industrihall

VVS Ventilasjon

Ventilasjonsanlegg med brannspjeld og brannisolerte kanaler, utføres av Lie Ventilasjon AS

Ventilasjonsanlegg for bygget med brannsikring

Betong Stedstøpte betongkonstruksjoner

๐Ÿงฑ Betong og betongelementer

Industribygg med betongelementer og gralbetongelementer, mesanin i industrihall

Betongkonstruksjoner for industrihall og kontorbygg

Annet Brannsikring og sikkerhet

Brannseksjonering, brannceller, røykventilasjon, brannalarmanlegg, brannslanger, håndslokkeapparater, nødbelysning, rømningsvinduer og rømningsveier

Brannsikringstiltak i henhold til brannrapport og branntegninger

Fasade Trepanel og betongelementer

๐Ÿงฑ Tre, betongelementer

Fasader i tre for kontorbygg, betongelementer for hall

Fasadematerialer for kontorbygg og produksjonshall

Stål Bærende stålkonstruksjoner

๐Ÿงฑ Stål

Hoved- og sekundærbæresystem i kontorbygg med R60 brannmotstand, i industrihall R30

Stålkonstruksjoner for bæresystem i hall og kontorbygg

Utendørs Utomhusplan og landskapsutforming

Utomhusplan med adkomst, parkering for 53 biler, sykkelparkering, laste-/losseområder og avfallscontainere

Opparbeidelse av tomt med adkomst, parkering og utearealer

VVS Sanitærinstallasjoner

Sanitærinstallasjoner utføres av Gisle Rør AS

Sanitærinstallasjoner for kontor og produksjonshall

Grunnarbeid Graving, planering og grunnarbeider

Graving, grunn- og terrengarbeider utføres av BIRKELAND AS

Grunnarbeid for fundamentering og opparbeidelse av tomt

Trapper Innvendige trapper

Antall: 2

Interntrapp i kontorbygg og trapp fra mesanin til 1. etasje i industrihall

Innvendige trapper for rømning og intern kommunikasjon

Fasader

Hovedbygg

Vest
Materiale
Tre
Taktype
Flatt tak
Vinduer
1
Dรธrer
1
Synlige etasjer
1
Sør
Materiale
Tre
Taktype
Flatt tak
Vinduer
12
Dรธrer
2
Synlige etasjer
2
Øst
Materiale
Tre
Taktype
Flatt tak
Vinduer
14
Dรธrer
2
Synlige etasjer
2
Nord
Materiale
Tre
Taktype
Flatt tak
Vinduer
3
Dรธrer
1
Synlige etasjer
2

Hendelser

15.04.2026 Gbnr 60/174 - Til uttalelse - Søknad om tillatelse i ett trinn - Produksjonshall - Haugaland Næringspark
09.04.2026 Gbnr 60/174 - Supplering av søknad - produksjonshall - Haugaland Næringspark
01.04.2026 Gbnr 60/174 - Mangelbrev - Søknad om tillatelse i ett trinn - Produksjonshall - Haugaland Næringspark
18.03.2026 Gbnr 60/174 - Supplering av søknad - næringsbygg for lager og industri med kontordel - Myrvegen
12.03.2026 Gbnr 60/174 - Søknad - næringsbygg for lager og industri med kontordel - Myrvegen
18.02.2026 Gbnr 60/174 - Vi innvilger søknaden om samtykke etter automatisk saksbehandling
28.01.2026 Gbnr 60/174 - Svar på nabovarsel - næringsbygg for lager og industri med kontordel - Myrvegen
14.03.2025 Gbnr 60/174 - Referat forhåndskonferanse - Produksjonshall - Haugaland Næringspark
04.03.2025 Gbnr 60/174 - Innkalling til forhåndskonferanse - Produksjonshall
24.02.2025 Gbnr 60/174 - Anmodning om forhåndskonferanse - produksjonshall - Haugaland Næringspark